Состав и содержание эскизного проекта
Состав эскизного проекта указанным выше ГОСТом жестко не регламентируется. Это объясняется тем, что количество и степень проработки документации может варьироваться в серьезных пределах, в зависимости от требований заказчика и особенностей проектируемого объекта. Наиболее часто на практике ЭП состоит из:
- Пояснительной записки. Содержит основные параметры здания и текстовые комментарии к чертежам и изображениям;
- Схемы генплана. Показывает, каким образом здание размещается на земельном участке, соответствие санитарно-экологическим и противопожарным нормам, а также расположение существующих и разрабатываемых инженерных коммуникаций и благоустройства;
Генплан
- Чертежей фасадов и их изображения в цвете. Создают представление о внешнем облике объекта, окружающего его ландшафта, планируемых к применению отделочных материалах;
Чертежи фасадов
- Поэтажных планов постройки. На чертежах по каждому этажу отдельно представлена информация о принятых планировочных решениях. Они определяют:
- расположение помещений;
их примерную площадь;
размещение стен, перегородок, оконных и дверных проемов и других важных конструктивных элементов;

Пример поэтажного плана
Разрезов здания
толщина стен и перекрытий;
. Позволяет понять конфигурацию объекта и важные технические и эксплуатационные характеристики:
тип и структура кровли и т.д.

Пример разреза Современные программные средства визуализации позволяют выполнить 3D моделирование объекта. Оно наглядно демонстрирует как положение здания на земельном участке с учетом особенностей ландшафта, так и вид объекта после выполнения запланированных работ по строительству и благоустройству территории. Поэтому серьезные проектные организации обязательно включают компьютерные презентации проектируемого здания в состав эскизного проекта.
Особенности составления проектов домов: чертежи как основная часть планирования
Определившись с планировкой дома, нужно мысленно представить жизнь семьи в здании, продумать все элементы, чтобы ничего не упустить. Поэтому не стоит спешить с созданием окончательного варианта планировки дома. Готовые чертежи и планы дома должны быть максимально совершенны, чтобы конечный результат удовлетворял всех домочадцев, а построенное жилище прослужило максимальное количество лет без реконструкции и переделок. Конечный вариант эскиза стоит обсудить на семейном совете, учитывая при этом все детали, вплоть до мелочей.
В первую очередь в схеме дома указывают желаемое количество этажей. Это может быть просторный одноэтажный дом, компактный двухэтажный коттедж или роскошный особняк в два яруса с мансардой. Внутренняя планировка, изображаемая на чертежах зданий, должна включать такие зоны:
- жилые комнаты;
- хозяйственные помещения;
- зоны общего пользования;
- дополнительные пристройки.
Одноэтажный дом разграничивают на зоны с помощью перегородок, а также размещая помещения однотипной функциональности в одном крыле. В двухэтажных коттеджах спальни, гостевые и детские комнаты традиционно располагаются на втором этаже, а на первом находятся хозяйственные и служебные помещения общего пользования.
Необходимость в проекте и чертежах дома
Согласно законодательству, возводить частные дома можно как с проектом, так и без него. Однако опыт компетентных в этой сфере людей показывает, что наличие проекта имеет определяющее значение на этапе строительства. Без него работа усложняется, и в алгоритме действий и их точности появляются сбои. Еще сложнее становится, если нет схемы строения и расходной сметы. Более того, проект и эскизы, даже созданные самостоятельно, позволят сэкономить на услугах инженеров и архитекторов. Разобраться во всех аспектах не выйдет, но освоить азы проектирования простых домов под силу всем. Разработаны также специальные программы для составления планов.
Проекты помогают рассчитать расход материалов, описать параметры комнат и зданий, выбрать идеальное место для дверей, окон и балконов, определиться с предназначением помещений и функционалом построек. Подробно расписанный план нужен для расчета конструкции фундамента и кровли. Он играет ключевую роль для прокладки и выбора местонахождения:
- отопления;
- водопровода;
- септика;
- выгребной ямы;
- вентиляции.
Поможем подобрать готовый проект дома.
На странице проетной компании АРХИПЕЛАГ, Вы можете выбрать для себя уже готовый авторский проект дома. Просто воспользуйтесь строкой ПОИСК. Для того, чтобы поисковая система подобрала проект, наиболее точно соответствующий Вашим требованиям и пожеланиям, укажите в специальном поле параметры, которыми должен обладать будущий дом. Этот процесс займет считанные минуты.
Сделав выбор в сторону индивидуального проектирования, подберите и сохраните в свой аккаунт несколько вариантов наиболее понравившихся Вам проектов. Это поможет архитектору понять, чего Вы ожидаете от своего будущего дома. Рекомендуем сохранять не более 5 проектов, чтобы специалисты нашей мастерской смогли конкретнее понять Ваши пожелания.
Почему выгодно начинать с проекта ЭП?
- Эскизный проект позволяет визуализировать ваши архитектурные идеи и наглядно представить облик будущего дома.
- В процессе проектирования планировок вы сможете учесть интересы всех членов семьи, так как сможете обсуждать дом не на уровне идей, а на уровне точных чертежей.
- Эскизный проект даст возможность составить предварительную смету на производство и строительства дома.
- Получив эскизный проект, вы сможете провести тендер между различными строительными компаниями и сориентироваться в рыночной цене строительства.
- ЭП служит основой для любого дальнейшего проектирования, и является базовым техническим заданием для производства дома из клееного бруса.
- Любое проектирование, в том числе эскизное, экономит ваши деньги. Чем более подробно выполнено проектирование, тем меньше ошибок в бюджетировании.
Проектирование: программный метод
После составления и проработки эскиза результат необходимо воспроизвести в масштабе, со строгим соблюдением размеров. Можно перенести план на бумагу, но проще и быстрее (по крайней мере, для непрофессионала) использовать программу для 3d моделирование дома.
Специализированные программы обладают впечатляющим набором возможностей. Они помогут нарисовать план дома в нескольких вариантах, а также посчитать, сколько материалов потребуется для строительства. В программе удобно выбирать материал для отделки пола, стен и потолка, расставлять мебель (тоже в масштабе). Результат можно визуализировать, при этом менять освещение и положение камеры.
Совсем не обязательно устанавливать программу на компьютер, существуют разнообразные онлайн-приложения. Пакеты могут иметь разное назначение:
Профессиональные. ArchiCAD и AutoCAD избыточны для начинающего пользователя, но в них можно спроектировать интерьер, просчитать количество стройматов, увидеть жилье изнутри.

Окно программы Sketch UpИсточник ytimg.com
- Специализированные. Программа HouseCreator заточена на проектирование жилья из бруса. Home Plan Pro поможет спроектировать каркасный дом.
- Общего профиля. Любому человеку по силам создать проект в Google Sketch Up, Sweet Home 3D или Дом-3D. ЛИРА-САПР 2013 или Arcone потребуют предварительного изучения обучающего материала.
При выборе программы-конструктора обращайте внимание на следующие особенности:
- Русификация. Проектирование дома 3d на русском значительно облегчит вашу жизнь и сбережет нервы.
- Комфорт работы. Работать будет проще и интереснее с интуитивно понятным интерфейсом, где все наглядно и под рукой.
Помощь. Хорошо, если производитель озаботился инструкцией или обучающим видео. Приступить быстрее к разработке проекта помогут и ролики на youtube.

Визуализация одноэтажного проектаИсточник pr-dom.ru
О том, как сделать самому проект дома в следующем видео:
Коротко о главном
Проектирование собственного загородного дома не представляется чем-то затруднительным и невозможным, если вы настроены на кропотливую работу. Правильная планировка будущего жилья включает несколько важных составляющих.
Необходимо согласовать габариты постройки с размером участка, а вид фундамента – с типом грунта, рельефом и уровнем грунтовых вод. Также необходимо согласовать проект и получить технические условия для подключения к сетям.
над эскизным проектом дома (нажмите на эту ссылку) ►
►
сперва мы с вами заключаем договор и составляем
Техническое
Задание
(ТЗ) на проектирование;
►
далее в течении
7-10
дней я изучаю ТЗ и выполняю первые эскизы по
проекту: как правило, это планы этажей и фасады (возможно, также разрезы).
Они выполняются без проработки мелких деталей, только основные объемы.
Отсылаю вам их на эл. почту для согласования;
►
Вы изучаете первоначальные эскизы столько времени, сколько вам необходимо,
затем мы созваниваемся (или списываемся по эл. почте), и вы даете свои
комментарии и пожелания к первым эскизам;
►
Учитывая ваши пожелания я вношу в проект соответствующие изменения и высылаю вам новые эскизы. Если в них вас все
устраивает, то мы движемся дальше. (если же нет, то продолжаем работать в
том же режиме до полного взаимопонимания);
►
Далее я строю трехмерную модель здания и отсылаю
вам картинки для согласования. (Если в том есть необходимость, на этом этапе
я предлагаю различные варианты цветового решения и используемых фасадных
материалов);
►
Когда эскизы и картинки с трехмерной моделью полностью будут согласованы, я
приступаю к выполнению итоговых чертежей по проекту. По окончании этой работы, высылаю вам итоговый проект в
формате
pdf
на эл. почту;
►
В течении 3-х дней вы изучаете итоговые чертежи и, если заметите какие-то
замечания или неточности, сообщаете об этом мне, и я в короткие сроки вношу
в проект исправления и высылаю вам исправленные чертежи.
►
На этом
работа над проектом закончена. Однако, если в процессе строительства у вас
возникли какие-то неразрешимые вопросы по проекту, вы можете смело звонить
мне — я обязательно отвечу на них.
____________________________________________________________________________________________
Я
работаю официально (зарегистрирован в качестве ИП) и всегда
заключаю с Заказчиками официальный договор, что позволяет
защитить интересы сторон.
Имею
в своём портфолио более сотни выполненных проектов частных и
общественных жилых домов по России и в других странах Азии и
Европы.
Творческий
подход к работе. Я стараюсь придерживаться девиза «Make
art, not work» — «Занимайся искусством, а не
работой».
Каждый мой проект — уникальные авторские продукт.
Он обладает, прежде всего, интеллектуальной ценностью, и как
следствие – высокой ликвидностью. Проживание в стильном, красивом
и удобном доме будет каждый день доставлять Вам удовольствие.
Индивидуальный подход к каждому
Заказчику.
Я всегда стараюсь как можно лучше узнать, что хочет
Заказчик, чтобы спроектировать дом, который идеально ему подойдёт.
Подробная
проработка чертежей проекта. Итоговый альбом чертежей
содержит всю необходимую информацию, чтобы у строителей было
полное понимание конструкций дома, а у заказчика была
возможность проконтролировать правильность работы
строителей.
Гарантирую
строгое соблюдение сроков. Я ответственно отношусь к
соблюдению оговоренных и прописанных в договоре сроках
выполнения работы.
Имею
опыт не только проектирования, но и реализации /
строительства домов по своим проектам.
Начальный этап
Готовый коттедж
Прежде всего, вам необходимо иметь четкое представление о том, какой дом вы планируете получить по окончанию строительства. Если ранее вам не приходилось сталкиваться с подобными работами, то постарайтесь изучить как можно больше литературы о создании и строительстве частных домов. Вооружитесь блокнотом и карандашом, так как для того, чтобы создать проект собственного дома, вам в обязательном порядке необходимо будет его нарисовать.
Если вы не можете определиться с моделью и формой будущего строения, то просмотрите картинки готовых домов, возможно, что среди них вы найдете именно тот, который вам по вкусу, добавив или убрав некоторые его составляющие элементы. Если вы не любите рисовать и умеете пользоваться компьютерными программами, то сегодня создать проект будущего жилья вы вполне можете с их помощью.
Стоимость и срок изготовления
Цена изготовления поэтажного плана и экспликации квартиры зависит от площади помещения и необходимости выезда сотрудника на место. Чем больше площадь, тем выше стоимость, поскольку времени на изготовление документа будет затрачено больше. Увеличивает цену и необходимость выезда специалиста. Если технический паспорт и план необходимы срочно, цена также может возрасти, поскольку специалисту придется отложить другие заказы, изменить график работы и так далее. Следует отметить, что цель инвентаризации стоимость поэтажного плана БТИ не увеличивает.
Планировка онлайн – это один из современных способов, а главное дешевых сделать экспликации и поэтажный план. Воспользоваться им можно, перейдя на сайт компании, которая оказывает такие услуги, оформить заказ, оплатить его и переслать по электронной почте все требуемые документы. Через некоторое время план здания по этажам будет готов.
Что касается сроков изготовления БТИ экспликации, то они определены законодательно и не могут быть более 10 дней с момента посещения сотрудником непосредственного места расположения объекта. На практике же в среднем документы уже готовы через неделю после подачи заявки, существенно увеличивает длительность, если объект сложный или большой площади.
Что входит в эскизный проект
Отдельно стоит рассказать про состав эскизного проекта. Что же вы получаете, заплатив специалистам приличную сумму?
- Пояснительная записка. Здесь содержится копия технического задания, перечень и очередность работ, выполняемых на объекте, оптимальные строительные и отделочные материалы, а также список информационного и программного обеспечения, которое использовалось при составлении эскиза.
- План фасада. Серьезные компании предлагают несколько вариантов фасада, чтобы клиент выбрал именно тот, который в полной мере отвечает всем его требованиям.
- Планы этажей, чердака, варианты обустройства подвала. Площадь и форма каждого помещения, толщина и местоположение перегородок – все это формирует внутренний вид вашего будущего дома.
- Иллюстрации. Изображение дома изнутри и снаружи. Для создания иллюстраций используются специальные программы, позволяющие разработать 3D изображения коттеджа, которые значительно упрощают восприятие и проведение дальнейших работ.
- Чертежи поперечного и продольного разреза здания. Их количество зависит от требований клиента.
- Кровля. Все расчеты по устройству кровли при использовании выбранного заказчиком материала.
- Генплан участка. Общий чертеж земельного участка, вид сверху. Здесь показано расположение как самого дома, так и всех остальных построек.
- Фундамент. Местоположение, форма и размер фундамента, а также расчеты, подтверждающие его необходимость.
Как видите, эскиз здания представляет собой очень сложный комплекс информации, не располагая которой просто нельзя приступать к строительству дома вашей мечты.
Стоимость услуг проектирования жилого дома
Скидки и акции
Вы можете получить , а также значительные скидки на индивидуальное проектирование в случае, если:
- Заключите с нами договор на строительство коттеджа и внесёте предоплату
- Закажете в нашей студии декоративные бетонные элементы для оформления фасада коттеджа
Прочие скидки и преференции также возможны! Всё обсуждается индивидуально.
Эскизное проектирование
Мы решили упростить подход к этому вопросу максимально.
В эскизный проект входят цветные 3D эскизы и поэтажные планы. Всё это даёт представление о том как будет выглядеть Ваш дом.
Цены на эскизное проектирование
- Маленький дом до 200 м² – 60 000 рублей
- Средний дом до 600 м² – 80 000 рублей
- Большой дом свыше 600 м² – 95 000 рублей
Паспорта застройщика, то есть это тот документ, с которым можно идти получать разрешение на строительство в районную администрацию:
- Маленький дом до 200 м² – 250 руб./м²
- Средний дом до 600 м² – 200 руб./м²
- Большой дом свыше 600 м² – 180 руб./м²
Рабочее проектирование
АР «Архитектурные решения»
- Маленький дом до 200 м² – 260 руб./м²
- Средний дом до 600 м² – 220 руб./м²
- Большой дом свыше 600 м² – 195 руб./м²
КР «Конструктивные решения»
- Маленький дом до 200 м² – 300 руб./м²
- Средний дом до 600 м² – 265 руб./м²
- Большой дом свыше 600 м² – 240 руб./м²
Разделы АР + КР + ОВ + ВК
-
Цены на полный рабочий проект
АР + КР + ВК + ОВ («Архитектурные решения», «Конструктивные решения», «Водоснабжение и канализация», «Отопление и вентиляция»):
- коттедж от 120 до 300 м² – 1110 руб./м²
- от 300 до 500 м² – 1000 руб./м²
- от 500 до 1000 м² – 955 руб./м²
- более 1000 м² – 840 руб./м²
3D-проектирование (визуализация дома в 3D Max) – от 30 000 руб.
Стоимость готового (типового) архитектурного проекта
Цены на наши готовые проекты, со всеми необходимыми разделами, – в диапазоне от 50 до 260 тыс. руб., в зависимости от общей площади коттеджа и сложности самого проекта.
Самые дешёвые проекты – «Эдна» (137 м²) и «Соло» (164 м²). Самый дорогой проект – «Большой дворец» с общей площадью 3413 м².



Звоните нам: +7 (499) 947-03-86. Мы обязательно договоримся!
|
|||||||
| www.dh-art.ru Все права защищены |
Первый этаж и основание дома
План первого этажа
Начните с того, что просчитайте габариты вашего будущего дома. Для этого вам необходимо учитывать территорию имеющегося у вас участка
Следующее на что стоит обратить внимание — это основные строительные материалы, которые будут использоваться для несущих конструкций. Дело в том, что именно от их веса будет в дальнейшем зависеть используемое вами основание или фундамент
Основные помещения, которые расположены на первом этаже любого строения это:
- Прихожая комната, которая может быть совмещена с дополнительным помещением, например кладовой.
- Кухня, возможно, что вам захочется, чтобы она имела дополнительный выход на летнюю веранду.
- Центральная комната или гостиная.
- Спальня в зависимости от ваших личных потребностей может быть не одна.
- Санитарная комната, которая может быть совмещенной или разделенной.
После того как вы определитесь с количеством и формой ваших будущих комнат, вам стоит грамотно рассчитать их размеры. Все расчеты необходимо производить исходя из той площади, которую ранее вы выделили под застройку.
Если вы планируете возводить многоэтажный дом, то план верхних помещений вы сможете подготовить только после того, как окончательно будет готов проект первого этажа, так как именно он является основным.
Как делать проект: подготовительные этапы создания чертежа
Перед тем как сделать чертеж частного дома, нужно определиться с тем, каково будет его прямое предназначение: будет ли он служить загородным местом отдыха в летнее время или жильем для круглогодичного обитания всей семьи. Количество домочадцев тоже необходимо иметь в виду. При этом нужно учесть образ жизни членов семьи, их вкусы, предпочтения и увлечения.
Перед началом создания чертежа нужно определиться с количеством жильцов дома
Если будущие обитатели дома – приверженцы тихого образа жизни, то здание нужно размещать на территории, которая находится подальше от проезжей части и соседних участков. Лучше всего – в глубине сада. Для открытых, общительных людей дом можно построить в начале участка, выставив напоказ фасад коттеджа и красивый ландшафт перед ним. В техническом плане особенно важны геодезические данные, полученные путем исследования территории. Они укажут на особенности поверхности, состав грунта и наличие наклонов, что позволит создать план местности.
Чтобы проектировка дома была упорядочена, процесс условно разделяют на этапы, которые потом отображаются в следующих разделах готового проекта дома:
- эскизном;
- архитектурном;
- конструктивном;
- инженерно-техническом;
- дизайнерском или отделочном.
Определившись с месторасположением и предназначением будущего жилища, можно приступать к проектировке дома. С этой целью делают первоначальные наброски. При наличии элементарных художественных навыков хозяева смогут сделать это самостоятельно, даже без специальной компьютерной программы для постройки дома. На базе набросков составляется основной эскиз. В соответствии с ним подготавливают все остальные подробные чертежи и определяются с планировкой будущей постройки.
Что необходимо учитывать при составлении схемы дома
Уже на этапе составления эскиза нужно четко определиться с количеством этажей, типом кровли, внешним видом фасада и фронтальных частей дома, вплоть до количества окон, балконов, наличия террасы или мансарды. Эскизный проект также предполагает наброски вида здания в продольном и поперечном разрезах, где указываются особенности конструкции и материалы, из которых предполагается возводить дом.
Пример чертежа одноэтажного дома из кирпича с мансардным этажом
Перед тем как нарисовать план дома, необходимо определиться с расположением участка и изучить ориентацию относительно сторон света. Исходя из этих данных, определяется месторасположение комнат. Их количество зависит от того, сколько людей будет жить в здании и как часто будут приезжать гости на длительное время. Размещение помещений и функциональное предназначение каждого из них также является важным элементом.
Далее требуется определить, какие конкретно комнаты будут отведены членам семьи, а какие – гостям и работникам, если предполагается формирование определенного штата. Не следует забывать о планировке помещений, в которых будет собираться вся семья, – это столовая, зал или гостиная.
Важно учесть предпочтения и увлечения обитателей дома, чтобы выяснить необходимость включения в планировку тренажерного зала, бассейна или сауны, зимнего сада либо оранжереи, библиотеки с кабинетом или просторной мастерской
При составление эскизного проекта дома нужно учитывать все пожелания будущих жильцов
Перечень документов эскизного проекта
Составление чертежной документации является не менее важной задачей, чем создание самого проекта. Любая ошибка может стать причиной отказа и привести к потере денежных средств
Правильный комплект бумаг для строительства дома должен выглядеть следующим образом:
Пояснительная записка. Сюда входят технико-экономическая инструкция и главные архитектурные свойства постройки. Описание размеров, внешнего вида, материалов, которые планируются применять при постройке.

Если планируется создать сложную постройку, то пояснительная записка идёт с приложением к эскизному проекту, где обязаны находиться:
- копия ТЗ;
- наименование работ (если требуется);
- список документов, использовавшихся в ходе конструирования;
- литература, которая применялась для составления проекта.
Планы фасадов. Чаще используется около 4 варианты домов с разным окрасом.
Планировка всех помещений(включая ярусы и подвальные зоны). Здесь определяется весь внешний облик здания и главное архитектурное решение. Также эти уставы разбивают на два этапа, один из которых обговаривается с заказчиком. В многоэтажных зданиях, где на всех этажах одинаковая планировка, приводится только один экземпляр.
Трехмерные изображения дома. Это важнейшая часть проектировки. Создавать изображение лучше максимального качества, поскольку это облегчит и удешевит большое количество работ.
Чертеж с горизонтальным или вертикальным разрезом постройки. Разрешено делать в 2-3 экземплярах (всё зависит от архитектурной сложности).
План кровли. Этот этап можно заменить трехмерным изображением дома сверху.
План участка с расположением дома. Панель документация позволяет оценить правильность расположения постройки в соответствии с имеющимися коммуникациями.
Ведомость готового эскизного проекта. Содержит в себе наименование всех конструкторских и рабочих документов. Чтобы ведомость прошла проверку, следует соблюдать правильную последовательность записи:
- пометка об общей документации;
- записи по отдельным сборочным единицам;
- заново разработанная документация;
- применённые акты.



Вышеперечисленные акты рекомендуется сделать в нескольких экземплярах, один из которых в word или другой электронной программе.
Как сделать проект – подготовительные этапы создания чертежа
Первым делом учитывается предназначение будущей постройки: станет она местом для загородного отдыха или же постоянным жильем. До того как начать составление проекта следует учесть количество и потребности всех людей, для проживания которых предназначается здание. Личные предпочтения оговариваются предварительно. Рекомендуется выбирать тихое место вдали от проезжей части. Постройку жилья разделяют на этапы, с соответствующей фиксацией в разделах проекта.
Сначала создается эскизная часть. Потом архитектурный и конструктивный разделы. Следом за ними готовятся инженерно-технические ведомости и далее наступает очередь создания чертежей для отделочного/дизайнерского раздела насчет соответствующего этапа работ. Перед созданием основного эскиза следует делать наброски. Потом же на базе главного чертежа дома рисуются более подробные. Они и станут основой для отображения еще более детальной планировки.
Как согласовать и утвердить проект частного дома
Любой проект загородного дома или коттеджа начинается с выбора земельного участка, на котором будет осуществляться строительство.
Если у вас уже имеется в собственности участок — это хорошо. Но, если вы только собираетесь приобрести землю, то, в первую очередь, необходимо подумать о проблемах, которые могут возникнуть в связи с вашим выбором.
Конечно, самое первое, что вы будете выбирать — это район, в котором будет находиться земельный участок
Но, когда с районом уже решено, важно знать, насколько близко от вашего участка находятся электричество, газ и другие, необходимые для жизни, инженерные коммуникации
Допустим, у вас достаточно средств, чтобы провести к своему будущему дому электричество и газ, на столько километров, на сколько далеко ваш будущий дом будет находиться от всех инженерных сетей. Но не забывайте, что необходимо пройти согласование с соответствующими органами, такими как пожарная служба, «Водоканал», СЭС, КГА, МВК и другими организациями. Согласование и подсчет будущих затрат обычно происходят за дополнительную плату. Причем согласовывать вам придется не только проводку газа и электричества. Также вам необходимо пройти согласование проекта частного дома целиком с местными органами целиком. При согласовании проекта коттеджа должны будут учитываться все архитектурные правила и нормы данного района.
После того как удалось согласовать проект дома, вы получаете ТУ (технические условия), в которых прописываются все работы, необходимые при реализации проекта строительства вашего дома или коттеджа.
И ещё один совет по поводу того, как утвердить проект дома: лучше не заниматься этим самостоятельно или поручать это вашим родственникам или частным согласователям. Также не рекомендуется самостоятельно заниматься проводкой всех необходимых к вашему земельному участку коммуникаций. Так же
Самый лучший вариант, когда услуги по согласованию проекта дома оказывает та же фирма, которая осуществляет создание и строительство вашего проекта. Когда одна фирма осуществляет полный комплекс услуг, то она напрямую заинтересована в том, чтобы все этапы согласования прошли в соответствии с существующими нормами. И в будущем у вас не возникло бы проблем при строительстве.
Размеры помещений и их количество
Чтобы сделать чертежи своими руками, необходимо представлять себе планировку, которая будет у частного дома мечты, а для этого нужно знать количество необходимых помещений с точными размерами.
У каждого понятие о комфорте коттеджей свое. Это зависит от потребностей семьи, их благосостояния и статуса. Кому-то размер и зонирование пространства комнаты в 12 квадратных метров покажется оптимальным, а для кого-то будет неприемлемо тесным.
Планировка двухэтажного коттеджа с гаражом Среднестатистические данные подтверждают, что семье из двух взрослых и двух детей вполне комфортно живется, если есть помещения следующих размеров:
| Помещение | Количество в шт. | Площадь в м2 |
| Спальня | 3 | 12 |
| Гостевая комната | 1 | 12 |
| Гостиная | 1 | 25–30 |
| Кухня | 1 | 15–20 |
| Санузел | 2 | 6 |
| Кладовка | 1 | 10 |
| Гардеробная | 1 | 9 |
| Лестница | 1 | 8 |
| Котельная | 1 | 6 |
| Прихожая + тамбур | 1 + 1 | 12 |
| Общая площадь | 150–160 |
Таким образом, оптимальный размер пятна застройки составляет дом 9 х 9 метров, если дом — двухэтажный или одноэтажный с мансардой.
Планировка дома с мансардой 9×9 Если ставить дом с основанием 8 х 8, то от некоторых помещений придется отказаться, а остальные сделать чуть компактнее. В сети представлено множество готовых проектов и планировок для домов с такими размерами. Листая их, можно выбрать подходящий готовый вариант или подсмотреть интересную идею, и воплотить ее в жизнь в будущем доме своими руками. Разбивку по этажам можно сделать следующим образом. На второй этаж поднять все спальни и гостевую комнату, гардеробную, один санузел и лестничную площадку. Все оставшиеся помещения должны найти свое место на первом этаже.
Когда площадь помещений готова, можно приступать к поиску удачного расположения их на этаже. Для этого стоит учесть, что длина всех строительных материалов кратна шести. Поэтому, чтобы избежать их перерасхода или излишних обрезков, лучше выбирать дом с размерами 9 х 9; 6 х 9; 9 х 12.
Планировка коттеджа 9×12 Дома с размерами не кратными трем и шести тоже строят, например, 6 х 8; 8 х 8; 7 х 9, но нужно приготовиться к тому, что после строительства останется много отходов, а в процессе возведения дома будет очень много работ по подгонке материалов.
Конструктивные решения
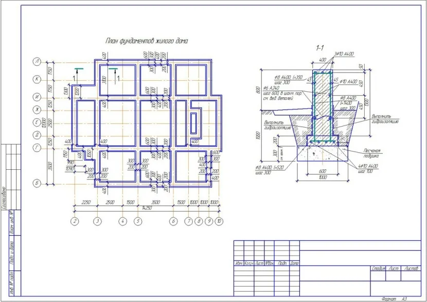
Состав раздела КР ( конструктивные решения ):
- Расчет фундаментов и несущих конструкций;
- План фундаментов;
- Схема устройства перекрытия на отм. 0.00. Спецификация;
- Схема устройства перекрытия на отм. + 3.300. Спецификация;
- Схема устройства перекрытия на отм. + 6.600. Спецификация;
- Конструктивные решения по устройству входных групп;
- Ведомость перемычек;
- Схема устройства крыши;
- Узлы;
- Сечения.
Индивидуальный проект дома
Строительство домов
Полезное видео
В этом видео рассказывается, как происходит процесс проектирования дома по эскизу заказчика.
Бесплатная техническая поддержка
Всегда готовы помочь!
Мы понимаем как важно оперативно получать ответы на возникающие вопросы в процессе строительства. Строительный сезон короток и каждый погожий день на счету!. Отдел технической поддержки оперативно консультирует наших клиентов по всем проектным решениям
Просто позвоните нам по бесплатному многоканальному телефону и получите исчерпывающий ответ
Отдел технической поддержки оперативно консультирует наших клиентов по всем проектным решениям. Просто позвоните нам по бесплатному многоканальному телефону и получите исчерпывающий ответ.
Правда удобно? А еще это бесплатно!
Мы будем консультировать вас на всем протяжении строительства! Мы всегда с вами и готовы помочь!
Стоимость проекта дома по своему эскизу
от 1000 руб, кв. м.
Срок изготовления от 30-40 рабочих дней
Стоимость указана для разделов АР, КР, не является публичной офертой
Заказать проекта дома по своему эскизу
Позвоните или напишите нам!
Помогут подобрать готовый проект, ведь они отлично знаю весь каталог проектов и возможно обратят ваше внимание на подходящий проект, который вы могли пропустить.
Сориентируют по стоимости внесения изменений в проект, если такие изменения необходимы или предложат индивидуальное решение.
Ваша задумка, а наш — опыт и идеи!
Возможно вас заинтересует
Проекты домов разной
этажности
Одноэтажные дома
Двухэтажные дома
Трехэтажные дома
Проекты гаражей
Проекты бань
Проекты домов из разных материалов
Проекты домов из кирпича
Проекты домов из дерева
Проекты каркасных домов
Проекты домов разной площади
Площадь дома от 20 м2 до 100 м2
Площадь дома от 100 м2 до 200 м2
Площадь дома от 200 м2 до 300 м2
Площадь дома от 300 м2 до 400 м2
Площадь дома от 400 м2 до 600 м2
- Заменим материл стен (например: стены из кирпича на стены из пеноблоков);
- Оборудуем мансардой или террасой понравившийся проект одноэтажного дома;
- Добавим или уберем гараж;
- Изменим планировки;
- Выполним пересчет фундамента под геологические условия участка;
Подготовка к разработке: с чего начать
Многие характеристики будущего дома определяются особенностями земельного участка, его размером и рельефом. Поэтому перед тем, как спроектировать дом самому на компьютере, необходимо знать, где будет вестись строительство. Также нужно позаботиться о следующих моментах:
- Площадь застройки не может превышать 30% от площади участка. При этом нужно учитывать противопожарные и санитарные нормы расстояний между объектами.
- Рельеф и вид грунта влияют на тип фундамента и водоотведения. Сложный рельеф потребует расширения бюджета, так как возрастут траты на этапе нулевого цикла, могут потребоваться подпорные стены.

Пример расположения дома на участкеИсточник project-home.ru

Планировка с кухней-гостинойИсточник project-home.ru
- Геологические исследования. Помогают выяснить тип грунта и высоту грунтовых вод, что влияет на выбор фундамента, планирование и расчет подвала. Геологию лучше всего изучать ранней весной или поздней осенью, когда грунтовые воды поднимаются максимально высоко.
- Определившись с типом фундамента, можно выбрать материал для несущих стен и кровли будущего дома.
- Планировка подвала. Ее проводят после исследования геологии. При высоком уровне грунтовых вод целесообразнее построить дополнительное место хранения, чем переплачивать за подвальное помещение с системой защиты и отводом воды (стоимость строительства может возрасти на 20-25%).

План фундамента жилого домаИсточник svayag.ru




























