Проектирование односкатной крыши — что нужно знать?
Наклонные плоскости классифицируют по разным признакам. В частности, это касается упора. Есть две разновидности — с упором на несущие стены разной или одинаковой высоты .
Первый вариант используется чаще, но камнем преткновения может стать отсутствие высокой внешней стены, что исключит установление высокого наклона. Второй концепт этого не предполагает, но на этом, пожалуй, плюсы заканчиваются — он гораздо затратней.
Вопрос наклона является одним из главных. Оптимальный диапазон колеблется в районе 10-30 градусов, крайние рамки 5-60 градусов.
Цифра зависит от следующих факторов:
- Объем осадков;
- Показатели потоков ветра;
- Выбранный материал кровли.
Чем больше осадков в местности, тем больше наклон. К примеру, в регионах с обильным выпадением снега скат должен составлять не меньше 40 градусов. В противном случае есть угроза повреждения несущих конструкций из-за накопленных осадков.
Ниже приведены градусные соответствия типам крова:
- 5-7 градусов для рубероида;
- На 3 градуса выше диапазон у профнастила;
- 25-35 — для металлочерепицы;
- Чуть меньшие требования выдвигаются к шиферу (20-30 градусов), практически те же для фальцевой кровли (18-28).
Не менее актуальным вопросом является определение типа крыши в контексте вентилируемая/не вентилируемая. В первом случае говорится о надежной и прочной домовой поверхности, тогда как второй вариант годится для «легких» помещений аля терраса и через минимальный скат (4-6 градусов) может принести немало забот в зимнее время.
В качестве материала односкатной верхушки безусловным лидером по запросам является древесина «семейства» хвойных. Это обусловлено стойкостью к гниению, плесени и прочей нечисти
Обратите внимание на проценте влажности — показатель не должен превышать отметку 20-22
В качестве профилактики борьбы с вредителями советуем обработать дерево антипиреном и антисептиком.
Двухэтажный проект дома
Проект каркасного дома с плоской кровлей
Кто желает построить жилье в сжатые сроки, стоит обратить внимание на каркасный дом с односкатной крышей – такие проекты экономичные и не сложные по технологии сборки. Классический каркасный дом на этом фото подойдет и для постоянного проживания и в качестве дачного домаИсточник maisonboisnature.com

Классический каркасный дом на этом фото подойдет и для постоянного проживания и в качестве дачного домаИсточник maisonboisnature.com
Для каркаса используют брус твердых пород или же металлический двутавр. Первый вариант менее затратный, поэтому в проектах он используется чаще. Далее проводится обшивка плитами, утепляют стены, и облицовывают их, приводя сооружение в красивый вид.
Чтобы построить каркасный дом за основу берет одну из технологий:
Каркасно-панельная
Такой дом строится из отдельных стройматериалов, которые крепятся в определенной последовательности, от постройки каркаса, до облицовки стен. Работа выполняется специалистами. В результате такое здание ничем не будет уступать сооружению из бруса 150х150 мм. Проект дома подойдет для местности с климатом с суровыми зимами, с проживанием круглый год.

Структура каркасно-панельного домаИсточник comfortoria.ru
Каркасно-щитовая
Для такого вида домов готовится подробный проект, и на производстве по необходимым меркам производятся щиты, панели, состоящие из слоев термо- и гидроизоляции, обшивки внутренней и внешней. После такие панели доставляются на место стройки. Возводится каркас, на него крепятся эти щиты.

Опытные специалисты могут собрать каркасно-щитовой дом за несколько днейИсточник karkasnik-stroy.ru
Далее монтируется крыша. На сооружение кровли может понадобиться дополнительно 2 дня, зависит от конструкции, ее вида.
Особенности плоской крыши
Такую кровлю все чаще используют в сооружении загородных домов, небольших дачных сооружений, коттеджей. Составляя проект одноэтажного дома с покатой кровлей, нужно учесть, что каркас утяжелит большую площадь конструкции. Если внутри будут оборудоваться 2 несущие стены или будут колонны, перекрывается постройка шириной до 16 м., если внутри не предусмотрены ни какие дополнительные опоры, тогда до 6 м.
Уклон
Выбор уклона зависит от особенности климата, где будет располагаться дом. Для регионов, где нет сильных снегопадов, допускается угол наклона 20-25 градусов.

На фото маленький дом с покатой крышей под небольшим наклономИсточник himcomp.ru
Для местности с суровыми зимами и обильным выпадением снега возводится крыша для дома под наклоном 35-40 градусов.
Обратите внимание, для крутого ската придется потратить больше материала, чем кровля с маленьким углом наклона. С увеличением угла, увеличивается площадь покрытия, соответственно и материала придется затратить больше
Парусность
Такой вид крыши, хороший вариант для местности с частыми порывистыми ветрами
Важно правильно поместить кровлю, чтобы защитить от возможного срыва. Для этого нужно расположить ее по наветренной стороне
Односторонний сток
Обильное стекание воды будет постоянно на одну сторону, что может привести к деформации фундамента, размытию почвы. Надо будет обязательно устанавливать усиленный водосток.

Дом с односкатной крышей под большим угломИсточник vip-dom.by
Преимущества каркасного дома с односкатной крышей
Такой вид конструкции имеет много плюсов:
- низкую стоимость;
- по весу лёгкая конструкция не требует больших затрат фундамента, и не дает усадку;
- такие дома быстрые в сборке, опытные специалисты смогут закончить работу очень быстро;
- быстро отапливается;
- Экономичны в отделке, как внутренней, так и наружной;
К минусам относят сравнительно небольшие размеры каркасных домов с односкатной крышей.

Дом каркасный с односкатной крышей и навесом смотрится аккуратно и эстетично.Источник karkasdom-samara.info

Проект одноэтажного каркасного дома с покатой крышей и навесом с размерамиИсточник kak-sdelat-kryshu.ru
Дачный дом с односкатной крышей хорошее решение, особенно если климат, где он будет располагаться, теплый, а крыша под небольшим уклоном. Кровлю можно озеленить, например, как на фото, и небольшое здание будет смотреться сказочно и необычно.

Загородный дом с зеленой крышейИсточник pinterest.ru
Преимущества

- Низкая цена. Стоимость строительства каркасного дома в 1,5-2 раза ниже, чем возведение бревенчатого и брусового сруба. Даже технология «двойного бруса» обойдется дороже из-за высокой стоимость натуральной древесины.
Каркас одноэтажного дома с односкатной крышей
- Легкий вес конструкции. Каркасные дома за счет использования древесно-стружечных панелей имеет небольшой вес. Это позволяет снижать затраты на заливку фундамента. Для такой постройки достаточно неглубокого ленточного или свайного фундамента.
- Быстрота сборки. Одноэтажные каркасные дома с односкатной крышей опытные бригады монтируют за считанные дни. Плюс построек этого типа в том, что они не дают усадку, поэтому чтобы завершить отделку жилища, не нужно ждать целый год. Сооружение каркаса
Обшивка каркаса щитами
- Постройки из дерева, утепленные с помощью современных термоизоляционных материалов, демонстрируют высокий коэффициент энергосбережения, за счет чего можно сэкономить на счетах за отопление. Стены, толщина которых всего 15 см, по сохранению тепла эквивалентны брусу и бревну с сеченым 200х200 мм, имеющих более высокую стоимость. Кроме того, зимой протопить каркасный дом гораздо проще, чем дорогостоящие аналоги.
- Экономия за счет внешней и внутренней отделки. Каркасные постройки требуют минимальной внешней отделки, так как даже без облицовки выглядят презентабельно. На гипсокартон, используемый для обшивки постройки изнутри, можно без предварительной подготовки зафиксировать любой отделочный материал.

Проект каркасного одноэтажного дома с размерами

Обратите внимание! Одноэтажные дома с односкатной крышей, построенные по каркасной технологии, имеют недостатки. Таким образом в основном строятся сооружения небольшого размера
Если вы решите отступить от типового проекта, под который изготовляются щиты, затраты на строительство резко возрастут. Кроме того, чтобы защитить деревянный каркас от образования гнили и плесени, он обрабатывается антисептиком и антипиреном.
Примеры проектов
Выбирая проект будущего дома, полезно обратить внимание не только на его архитектуру, размеры, но и на характер крыши, материал перекрытий, устройство кровли и возможность использования ее как дополнение к общей площади дома
Видео описание
Несколько примеров проектов на видео:
Двухэтажный дом в стиле Hi-Tech
Проект дома хай-тек модерн с плоской кровлей с теплыми стенами из газобетона и керамических блоков. Двухэтажный, среднего размера (до 150 м²), рассчитан на обустройство эксплуатируемой плоской крыши.
Дом средней ценовой категории, компактен, достаточно легкой конструкции, удобен для проживания семьи с одним, двумя детьми.
Ступенчатая конфигурация позволила разделить верхнее пространство, где одна часть крыши используется для размещения технологического оборудования.
Интересно выполнен дизайн фасада, сочетающий гладкие стены и фактурную отделку.

Внешний вид проектаИсточник lagrans.com

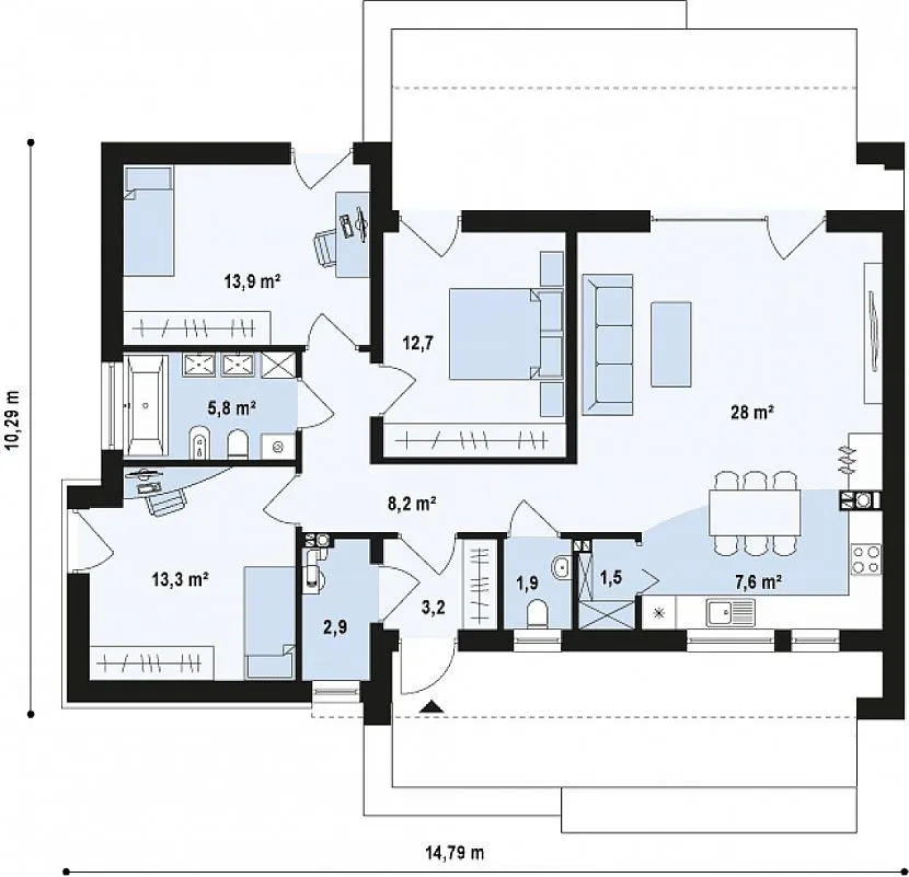
Планировка комнат первого и второго этажаИсточник mainavi.ru
Одноэтажный дом
Небольшая семья со средним достатком удобно разместится в современном одноэтажном компактном домике, крыша которого служит дополнением к общей площади. Панорамные окна, большая кухня, ориентирование жилых помещений на юг, юго-запад поддерживают тепло и уют дома.
Небольшой наклон крыши обеспечивает сток дождевой и талой воды и не мешает безопасно передвигаться по крыше. Расчетная площадь 86 м² увеличивается за счет эксплуатируемой крыши. Монолитное перекрытие и ПВХ мембрана крыши гарантируют длительный срок эксплуатации дома. Плоская крыша подчеркивает объемы помещения, придает всему строению современный вид.

Фото проекта современного дома с плоской крышейИсточник pinterest.com

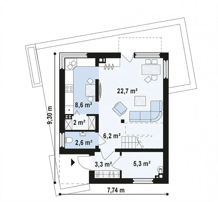
Планировка расположения комнатИсточник dom4m.ru
Большой двухэтажный дом
Дом для большой семьи соответствует представлениям о современном строительстве. Хорошая тепло- и гидроизоляция крыши позволяет обустроить дополнительные места для отдыха или тренировок. Стены из газобетона и монолитные перекрытия сохраняют тепло в помещениях.

Несмотря на значительную площадь здания (более 300 м²), благодаря плоской крыше оно выглядит легким и аккуратнымИсточник assz.ru

Планировка первого этажаИсточник domo.com.pl

Планировка второго этажаИсточник interistroy.ru
Дом кубической формы
Квадратный дом с плоской крышей в стиле кубизма для семьи с двумя детьми выглядит стильно за счет отсутствия высокой шатровой крыши.
Аккуратный, объемный, с угловым остеклением двухэтажный дом прочно стоит на участке, притягивая к себе внимание. Дом интересен со всех сторон, при этом крыша служит его продолжением, подчеркивая кубический архитектурный стиль
Строить такой дом предлагается из сэндвич-панелей, которые обеспечивают достаточную теплоизоляцию и прочность конструкции.

Кубический двухэтажный домИсточник rosstroycom.ru

Планировка первого этажаИсточник doma-omsk.ru

Планировка второго этажаИсточник rosstroycom.ru
Деревянный двухэтажный дом
Далеко не все предпочитают при строительстве использовать исключительно современные материалы, предпочитая проверенную временем классику. Деревянный дом с плоской крышей не просто правильное решение с точки зрения экологичности постройки – это еще и просто очень красивая конструкция.

Необыкновенно красивый деревянный дом современной планировкиИсточник yandex.kz

Такой кухне будет рада любая хозяйкаИсточник fireswirl.co
Особенности и правила эксплуатации
При проектировании дома с такой кровлей, нужно учесть некоторые моменты:
Если здание будет возводиться без чердака и крыша будет совмещена с потолком, крыться она должна материалами высокого качества. В итоге кровля должна быть герметичной с хорошей теплоизоляцией.

Если нет чердачного помещения, то качеству материалов надо уделить больше вниманияИсточник etaplius.lt
Крыши одноэтажных домов с небольшим углом, как на фото ниже, нужно будет чаще очищать от снега, и поэтому необходимо постоянно следить за состояние кровли, и своевременно ремонтировать ее.

Односкатная кровля может быть практически плоскойИсточник apex-arch.cz
В одноэтажных домах с плоской кровлей под большим углом можно интересно обыграть интерьер внутри помещения. Часть комнаты, где потолки около 150 см можно использовать под обустройство шкафами, полками. Если не «давят» потолки, то здесь можно расположить спальное место.
Стоит ли делать частный дом с односкатной крышей?
Не смотря на то, что в большинстве случаев аналогичные задумки не получают одобрения у профессионалов, есть ситуации, когда дом с таким видом кровли — разумное и безопасное решение.
ОСТОРОЖНО!
Крыша с одним скатом сложно переносит сопротивление осадков.
Следовательно, нет осадков — нет проблем, поэтому находясь в местности с сухим климатом эту идею можно смело внедрять в жизнь.
Наклон в такой ситуации нужно установить в пределах 5%. В свою очередь, регионы с холодным или умеренным климатом, который больше или меньше проводят под снежными осадками, не очень подходят для практически плоского крова.
Вот только если 10-20 лет назад географический «диагноз» воспринимался как приговор, сейчас же просто возьмутся за повышение прочности будущей крыши. Если еще добиться наклона в интервале 90-100%, тогда идея действительно целесообразна. В нынешнее время много возможностей в строительной сфере, но будьте готовы к дополнительным расходам.
Устройство
Фундамент «каркасника», построенного по классической финской технологии, может быть выполнен по одной из этих технологий:

Утепленная шведская плита. Предполагается создание чаши из пенопласта высокой прочности, в которую заливается тонкая бетонная плита. Для большей надежности в последней предусмотрены ребра жесткости из арматуры.

В результате подобных действий удается утеплить фундамент уже на этапе его создания. Кроме того, в плиту можно сразу заложить все коммуникации (например, необходимые для организации теплого пола).

Особенностью кровельной системы является сохранение в ней вентиляционного зазора. Кровля представляет собой многослойный «пирог» – вне зависимости от того, будет ли она холодной или с организованной внутри мансардой. Он включает утеплитель, монтируемый на каркас, гидроизоляционный слой и контр-обрешетку, на которую набивается кровельное покрытие. Возможны разные варианты (широко распространены черепица, фальцевая кровля) – кроме ондулина.

Деревянный каркас должен собираться только из хорошо высушенной древесины. Строгих регламентов относительно используемых материалов не существует. Обычно применяется клееный брус или ЛВЛ (брус из клееного шпона).

Узел стен приходится на точки соединения боковых и фасадных стен, пола и стен, укосину. Именно эти зоны нуждаются в дополнительном укреплении ребрами жесткости.

Если сравнивать с американской технологией, где для обшивки применяются обычно OSB-плиты, можно отметить, что финская методика предполагает использование других материалов, отличающихся лучшими показателями пароизоляции.

Наибольшее распространение получили следующие типы обшивки:

- мягкие древесно-волокнистые плиты (МДВП), обладающие высокими теплоизоляционными свойствами (по своим теплопотерям соответствуют минеральной вате), обеспечивающие шумоизоляцию и ветрозащиту;
- фасадный гипсокартон (не пользуется большой популярностью в России);
- обшивка плитными материалами высокой жесткости (например, фанерой) только углов здания.

Отделка фасада каркасного дома по финской технологии в 90% случаев предполагает использование дерева. Остальная часть (около 8%) – это оштукатуренные поверхности. Очень популярные в Америке сайдинговые панели используются финнами крайне редко.

Деревянные фасады почти всегда окрашиваются укрывной (непрозрачной) краской. Для нее характерна долговечность (обновлять слой краски на традиционных финских «каркасниках» приходится лишь раз в 10-15 лет) – благодаря особенной технологии производства.
Основные разновидности плоских крыш
Необычная конфигурация плоской кровли не только функциональна, красива, но и разнообразна. Не вдаваясь в детали, изначально они условно делятся на две большие группы – эксплуатируемые и неэксплуатируемые. Каждая из них, в свою очередь, конструктивно выполняется по традиционной (классической) или инверсионной технологиям.
Разделение по способу использования
Эксплуатируемые. Используются хозяевами дома как дополнительная площадь дома
Для этого важно, чтобы поверхность была прочная, ровная и гладкая. Небольшой уклон до 5°, нужный для стока воды, не мешает свободно передвигаться и практически не ощущается
В большинстве случаев, дом с эксплуатируемой кровлей предпочтителен за счет дополнительных возможностей.

Часть плоской крыши может быть прозрачнойИсточник domsireni.ru
Неэксплуатируемые. Конструктивно более простые, так как отпадает потребность в жестком основании для гидроизоляции и жестком утеплителе. Для ухода за кровлей на ней располагают трапы и мостки, чтобы не создавать неравномерную нагрузку. Этот тип плоских крыш дешевле в строительстве, но из-за этого и расчетный срок эксплуатации меньше, чем более сложной в конструкции эксплуатируемой плоской крыши.
Конструктивные различия
Любая плоская крыша представляет собой своеобразный «пирог», в котором чередуются гидро-, термо- и пароизоляция. В отдельных вариантах еще добавляются слои для повышения общей прочности покрытия.
Классическая (традиционная) плоская кровля известна также как «мягкая». Ее особенность это расположение гидроизоляционного слоя, который вынесен наружу. Мягкость такого покрытия обусловлена битумосодержащей составляющей гидроизоляции.
Особенно разрушительно их влияние с началом заморозков, когда ночью температура может быть уже минусовая, а днем воздух еще хорошо прогревается. Как итог, гидроизоляция со временем разрушается и влага от дождей и тающего снега попадает на бетонное основание и через щели в стыках плит вовнутрь здания.

Пирог классической плоской крышиИсточник pronovostroy.ru
Крыша инверсионная или облегченная, разработана с учетом печального опыта использования классической. У нее значительно бо́льший срок службы за счет инверсии (переворачивания) расположения слоев «пирога», что исключает быстрый выход из строя гидроизоляционного покрытия. Здесь бетонное основание изначально гидроизолируется, затем идет слой прочного гидрофобного (не смачиваемого водой) утеплителя, на котором уже расположено «рабочее» покрытие, по которому можно ходить. В качестве последнего часто применяют гравий, щебенку или брусчатку. Качество изоляции инверсионной крыши позволяет даже обустроить на ней травяной газон или положить тротуарную плитку.

Пирог инверсионной кровлиИсточник dom-steny.ru
Крыша для одноэтажного дома
Конструкций крыш гораздо больше, чем просто плоская и классическая двускатная. Есть одно- и многоскатные, вальмовые и полувальмовые, мансардные и эксплуатируемые зеленые. Любители более экстравагантных экстерьеров могут сделать купольные, конические и шатровые конструкции или совместить несколько вариантов в одном.
Для эксплуатируемых и крыш сложной конфигурации подходит битумное покрытие. Это мягкие рулонные материалы, которые принимают любую форму, не боятся ливня, снега, солнца или грибка и обладают высокими изоляционными свойствами. Только укладывать битумное полотно должны специалисты, чтобы не испортить плиты горелкой и изолировать все стыки.
Черепица всех видов и мастей относится к штучным материалам. Она всегда аккуратно и красиво смотрится, подходит для крыш разной формы, но ее сложнее выкладывать. Это и элегантная огнеупорная керамочерепица, и неприхотливый композит, эффектный сланец или бюджетные цементо-песчаные плиты.
Металлочерепица и шифер относятся к бюджетным и простым в укладке листовым материалам. Долговечность и разнообразие расцветок обеспечивает полимерное покрытие поверх. Но такой вариант годится только для кровель простой конфигурации.
Односкатные крыши: идеи дизайна
Идей для дизайна таких кровель масса. В зависимости от предпочтений и финансовых возможностей, можно подобрать самый оптимальный вариант. Так, один из самых распространенных – это дом с чердаком. Такая конструкция имеет высокие показатели шумо- и теплоизоляции. Окна, которые в ней устанавливаются, небольших размеров. Дизайн при этом самый простой, поэтому и стоит дешево. Но вот обслуживание кровли немного сложнее. Его необходимо проводить изнутри. При этом чердак невысокий, поэтому использовать его непросто.
Также такая крыша может быть на втором этаже над жилым помещением. Там реально обустроить несколько комнат: спальня, гостиная и другие. При этом необходимо тщательно продумать, какую из них разместить под наклоном крыши. Специалисты рекомендуют спальное место. Это самый оптимальный и удобный вариант. При этом для кровли используют только качественные материалы. Это позволит обеспечить ее герметичность и высокую теплоизоляцию. Что касается цветовой гаммы, то она может быть подобрана в соответствии со всей постройкой и окружающей ее атмосферой. Таким образом, участок будет гармоничен и завершен.
Советы по обустройству сада проекта дома с узким участком
Для оригинальности и привлекательности сада вытянутого участка эксперты рекомендуют:
- Разграничить владение на зоны арками, шпалерами, зелёными насаждениями, оставляя эти места открытыми наполовину без полного изолирования между собой. Чтобы узкий участок не стал территорией с маленькими тесными частями.
- Провести извилистые тропинки, благодаря этому создастся визуальное увеличение сада, а прогулка станет продолжительнее. Каждый поворот тропинки будет иметь свою видимость сада.
- Посадка зелёных насаждений выполняется группами в треугольные образования, разделяемые извилистыми тропинками. В противном случае, высадка ряда деревьев вдоль длинной стороны, придаст участку ещё более вытянутую форму.

Высаженные в ряд деревья визуально удлиняют участокИсточник stroite-sami.ru
Удлиненная форма территории имеет много вариантов оригинального обустройства своей территории. Сейчас на рынке предлагается большое изобилие вариантов популярных коттеджей для узких территорий, а за дополнительную плату, возможно сделать индивидуальный заказ дизайна.
Достоинства и недостатки домов с односкатными крышами
Здания, в которых оборудуется крыша такого плана, имеют много положительных сторон.
Плюсы:
- Если сравнить двускатные и более крыши с односкатными конструкциями, второй вариант экономичнее. На неё уйдет значительно меньше материала.
- Крыша не очень сложная в монтаже.
- Подходит для регионов с частыми и сильными ветрами.
- Не сложная в уходе, при надобности легче будет сделать ремонт, потому что покрытие имеет один наклон и обычно с небольшим углом.
- Во время природных осадков, вода, снег будут стекать в одну сторону, поэтому нужно будет оборудовать только эту сторону водостоком, снегозадержателем, но стоит учесть, что вся вода будет стекать именно на одну сторону. Поэтому оборудование должно быть усиленным.
- Хорошие условия для установки солнечных батарей.
- Если есть желание спроектировать мансарду с большими окнами, например как на фото, такого вида кровля хороший вариант.

Покатая крыша на мощных балкахИсточник houzz.com
Минусы:
- Если в проекте крыша с небольшим уклоном, тогда необходима будет усиленная гидро и теплоизоляция.
- Слабый уклон может стать причиной застоя снег на ней, и соответственно разрушения крыши.

Покатая кровля хорошо себя показывает в заснеженных местахИсточник stylemotivation.com
Планировка проектов домов для узких участков
Схема здания на длинный участок обладает индивидуальными особенностями:
- на одной из стен отсутствуют окна, что позволяет расположить здание в предельной близости к границе земельного участка;
- хозяйственно-технические помещения часто имеют продольное расположение, благодаря чему гостиная и спальня располагаются в торце здания с достаточным освещением.
Каталоги строительных компаний содержат индивидуальные и типовые архитектурные проекты домов для узких участков. В домах отсутствуют окна по длинным сторонам постройки, но в жилых комнатах присутствует хорошее освещение.
У проектов узких домов для узких участков вход располагается с фронтальной или с боковой стороны, поэтому дом размещают при ограничениях в ширине и глубине участка.
Чтобы наиболее эффективно использовать удлиненную территорию, оптимально будет разместить дом впритык к границе участка теневой стороны, предельно освободив территорию перед домом. Если возле участка проходит дорога с оживленным движением, то, постройку располагают в глубине территории, огородив свой дом от проезжей части с помощью зелёных насаждений.
Гараж тогда стараются расположить на фронтальной границе территории, чтобы проезд к нему не занимал много места на участке.

Архитектурный проект узкого дома – гараж вынесен впередИсточник www.remontbp.com

Планировка узкого дома, первый этаж и мансардаИсточник rekoweb.ru

Задний дворИсточник www.domamo.ru
Предварительно продумывают планировку дома на вытянутом участке, расположение дополнительных построек, а также проведение инженерных коммуникаций (оросительные системы, скважины, септики, освещение участка), для обеспечения их удобной эксплуатации. Доработка при строительстве повысит денежные затраты.
Варианты проектов домов с гаражом и баней
Перед выбором проекта необходимо собраться всей семьёй и обсудить, что и где будет находиться, выслушать предложения каждого. И только потом принять единственно правильное решение. Для этого потребуется предварительный план участка в масштабе на клетчатом листе бумаги.
На нём нужно нарисовать границы участка и отметить объекты, которые уже есть и не планируются к сносу (как сделать планировку участка своими руками, читайте в статье).
Определение положения дома поможет понять, каких габаритов и формы строение может быть. После этого окунаемся в многообразие проектов творческих мастерских. Наша редакция сделала подбор нескольких вариантов
Рассмотрим их и узнаем, на какие моменты нужно обращать внимание
Любой проектировщик внесёт изменения в разработанный ранее проект, если это требуется для заказчика. Кто-то делает это за доплату, а кто-то добавляет такую возможность для своих клиентов в качестве дополнительной опции, если изменения не глобальные.






























