What you can make in RoomToDo
In our program you can:1. Creating 2D plans. Here you’ll find all instruments which you need for creating complex planning projects which include putting a wall at different angles and making walls with uneven thickness. All these things will help you create a professional model and make it easy.2. Draw your project on the top of your drafting. For making the process easier, you can download your plan and draw the contour of your rooms. This will save your time and when you’ll finish your project will be ready for design in 3D.3. Doors and windows for everyone. Here you’ll find thousands of different door and window styles. Moreover, in our program, we also have different columns, arches, and other elements.4. Make experiments with the wall, floor, and ceiling decorating materials. Create your walls? It’s time to decorate them. In RoomToDo you can find different materials for walls, floors, and ceiling. Here you can big variety of wallpaper, laminate, tile, mosaic, wood and stones.5. Furniture and accessories. When the main part of your project is done, it’s time to play around with some furniture arrangement. In our program, you’ll find hundreds of different furniture models, which you also can customize. You can change sizes, materials, and colors, so it will be only your original style.6. Different viewing options. In the program, you can change the view type for more comfort. You can use:
- drafting – for creating your walls;
- 2D and 3D – for decoration and furnishing;
- first-person view – for the presentation of your work.
Как делать проект: подготовительные этапы создания чертежа
Перед тем как сделать чертеж частного дома, нужно определиться с тем, каково будет его прямое предназначение: будет ли он служить загородным местом отдыха в летнее время или жильем для круглогодичного обитания всей семьи. Количество домочадцев тоже необходимо иметь в виду. При этом нужно учесть образ жизни членов семьи, их вкусы, предпочтения и увлечения.
Перед началом создания чертежа нужно определиться с количеством жильцов дома
Если будущие обитатели дома – приверженцы тихого образа жизни, то здание нужно размещать на территории, которая находится подальше от проезжей части и соседних участков. Лучше всего – в глубине сада. Для открытых, общительных людей дом можно построить в начале участка, выставив напоказ фасад коттеджа и красивый ландшафт перед ним. В техническом плане особенно важны геодезические данные, полученные путем исследования территории. Они укажут на особенности поверхности, состав грунта и наличие наклонов, что позволит создать план местности.
Чтобы проектировка дома была упорядочена, процесс условно разделяют на этапы, которые потом отображаются в следующих разделах готового проекта дома:
- эскизном;
- архитектурном;
- конструктивном;
- инженерно-техническом;
- дизайнерском или отделочном.
Определившись с месторасположением и предназначением будущего жилища, можно приступать к проектировке дома. С этой целью делают первоначальные наброски. При наличии элементарных художественных навыков хозяева смогут сделать это самостоятельно, даже без специальной компьютерной программы для постройки дома. На базе набросков составляется основной эскиз. В соответствии с ним подготавливают все остальные подробные чертежи и определяются с планировкой будущей постройки.
Что необходимо учитывать при составлении схемы дома
Уже на этапе составления эскиза нужно четко определиться с количеством этажей, типом кровли, внешним видом фасада и фронтальных частей дома, вплоть до количества окон, балконов, наличия террасы или мансарды. Эскизный проект также предполагает наброски вида здания в продольном и поперечном разрезах, где указываются особенности конструкции и материалы, из которых предполагается возводить дом.
Пример чертежа одноэтажного дома из кирпича с мансардным этажом
Перед тем как нарисовать план дома, необходимо определиться с расположением участка и изучить ориентацию относительно сторон света. Исходя из этих данных, определяется месторасположение комнат. Их количество зависит от того, сколько людей будет жить в здании и как часто будут приезжать гости на длительное время. Размещение помещений и функциональное предназначение каждого из них также является важным элементом.
Далее требуется определить, какие конкретно комнаты будут отведены членам семьи, а какие – гостям и работникам, если предполагается формирование определенного штата. Не следует забывать о планировке помещений, в которых будет собираться вся семья, – это столовая, зал или гостиная.
Важно учесть предпочтения и увлечения обитателей дома, чтобы выяснить необходимость включения в планировку тренажерного зала, бассейна или сауны, зимнего сада либо оранжереи, библиотеки с кабинетом или просторной мастерской
При составление эскизного проекта дома нужно учитывать все пожелания будущих жильцов
Идеи планировки двухэтажного дома
Определить конструкторские решения будущего коттеджа с первого раза удаётся не всегда. В большинстве случаев на это уходит много времени, так как разработка планировки двухэтажного дома имеет много особенностей, которые должны учитываться с предпочтениями каждого проживающего. Сделать это можно самостоятельно или обратиться к услугам специалистов. В качестве примера представляем несколько оригинальных идей.
Проект № 1
- Общая площадь: 170,7 м2.
- Жилая площадь: 70 м2.
- Площадь первого этажа: 92 м».
- Площадь второго этажа: 17,7 м2.
- Размер дома: 9,9*15,5 м.
Проект двухэтажного дома площадью более 150 м2Источник innstroy.ru
Лаконичный коттедж эконом-класса, укомплектованный всем необходимым для комфортного проживания семьи из четырёх человек. Планировка первого этажа показывает наличие просторной гостиной, расположенной в заднем крыле дома. Помещение объединено с кухонной рабочей зоной и столовой. Строгая прямоугольная форма станет причиной зонирования большого зала на несколько частей. Делать это придётся внутренними элементами отделки (обоями, кафелем, мебелью). Небольшое пространство совмещённого санузла (4,4 м2) станет проблемой для монтажа ванной. Владелец будет вынужден решать между душевой кабинкой или уголком.
Проблема первого этажа решается благодаря увеличившемуся санузлу на втором. На 5,8 м2 уже удастся разместить небольшую ванную и остальную сантехнику. Оригинальным может показаться решение второго кабинета с аналогичными характеристиками. Вы скажете, — «Для чего на втором этаже 2 туалета!». Ответ очевиден – дети. Они растут по одному принципу: захотел один, побежал и второй. Поэтому на данном примере планировки эта проблема устранена.
3 спальни могут использоваться для членов семьи, оставшаяся внизу – в качестве гостевой. Бросающимся в глаза недостатком является отсутствие кладовой или гардеробной.
Проект № 2
Проект двухэтажного дома площадью более 150 м2Источник www.faulaconstruction.com
Проект первого этажа дома площадью более 200 м2Источник drevkostroy.ru
- Общая площадь: 236,38 м2.
- Жилая площадь:212,69 м2.
- Площадь первого этажа: 141,4 м2.
- Площадь второго этажа: 95,3 м2.
Оригинальный, а самое главное – стильный и современный дом, относящийся к стилю хай-тек. Огромные, во всю стену, панорамные окна, зал для занятия тяжёлой атлетикой или фитнесом на первом этаже. Преимущества планировки двухэтажного дома в следующем:
- Наличие просторной общей зоны, образованной объединением гостиной, столовой и кухни.
- Дополнение первого этажа спортзалом.
- Классная веранда на втором.
- Сближающие с природой панорамные окна, через которые отлично просматривается ухоженный ландшафт участка.
- Отдельный вход в санузел из главной спальной второго этажа.
Такая планировка нацелена на людей, предпочитающих современный стиль, спортивный образ жизни и не принимающих старую добрую классику.
Проект № 3
Проект двухэтажного дома площадью более 250 м2Источник demo2.sbsite.ru
- Общая площадь: 287,8 м2.
- Жилая площадь: 95 м2.
- Площадь первого этажа: 118,7 м2.
- Площадь второго этажа: 111 м2.
Дом в классическом стиле с отдельной котельной, поделённой кухней, раздельным санузлом, большой террасой и спальней на первом этаже. Последнюю, при необходимости, можно использовать как гостевую. Благодаря наличию всего этого, планировка предстаёт в индивидуальном стиле и подойдёт для утончённых, любящих оригинальность людей.
Уникальность и отличие заканчиваются после подъёма по лестнице. Второй этаж коттеджа предстаёт в стандартном виде:
- Несколько спален.
- Санузел.
- Гардеробная.
Проект № 4
Проект двухэтажного дома площадью 182 м2Источник myhome.nifty.com
- Общая площадь: 182,1 м2.
- Жилая площадь: 53 м2.
- Площадь первого этажа: 95,9 м2.
- Площадь второго этажа: 87,2 м2.
Дом со вторым этажом мансардного типа, построенный в стиле шале. Планировка просторного первого этажа полностью отдана под так называемые нежилые помещения и гостиную, площадью 26,78 м2. На входе гостей встречает небольшая прихожая с дверью в кладовую, чуть дальше санузел и рабочий кабинет главы семейства. В отсутствии необходимости такого помещения допускается перепланировка под другие цели, например, детская игровая комната, просторная гардеробная или что-то иное.
Хотя кухня и гостиная размещены в одном большом зале, разделение происходит благодаря зонированию внутренней отделкой и небольшому «притоплению» в заднее крыло дома. Здесь же выход на террасу.
Второй этаж дома спроектирован по классическому принципу: 3 спальни, коридор с лестницей в центре и просторный санузел.
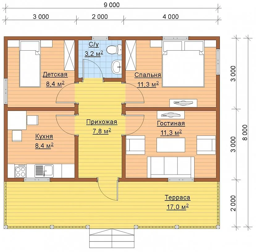
Проекты одноэтажных домов до 150 м2: фото и особенности
Практически любая планировка одноэтажного дома площадью 150 кв м позволит разместить следующие виды помещений:
- не меньше 3 спальных комнат (иногда 4 или 5, если дом с мансардой);
- большую гостиную, столовую и просторную кухню площадью от 8 до 15 кв. м. Эти же помещения могут быть объединены в одно общее;
- два санузла – первый внизу, второй в мансарде.
Размещение других комнат – строго индивидуальное. При наличии в семье человека, работающего на дому, в их состав может быть включён кабинет. На первом этаже располагают баню, бойлерную и, иногда, гараж. Хотя в здании общей площадью от 120 до 150 кв. м вообще может не быть мансарды.
Планировка одноэтажного частного дома площадью до 150 кв. м
Планы одноэтажного дома 10 на 12 и 12 на 12: хороший выбор для больших семей
В большинстве случаев на плане одноэтажного дома с тремя спальнями 10×12 отмечается просторная гостиная, санузел, столовая и кабинет. Часть комнат может объединяться. Например, кухня и столовая обеспечат больше пространства при отсутствии между ними перегородок. А для дополнительного увеличения пространства стоит предусмотреть расположение жилой зоны в мансарде. Здесь же будет уместно смотреться ещё один санитарный блок и гардеробная для хранения вещей, не подходящих по сезону.
Планировка дома 10 на 12
При планировке зданий такого размера – при этом параметры дома могут немного изменяться в большую или меньшую сторону (примерно так же планируются постройки 10 х 12 метров) руководствуются такими факторами:
- расположение комнат вдоль сторон света. Желательно, что стены детских и спален смотрели на юг, а большая часть их окон – на запад, чтобы утреннее солнце не будило жильцов слишком рано;
- комнаты «дневной зоны» (гостиную и столовую) можно располагать ближе к выходу или к веранде, если она включена в план;
- форма жилых помещений должна быть прямоугольной.
Нежелательно делать любую из спален или гостиную проходными. А расчёт оптимальной площади выполняется в соответствии с нормой в 8 кв. м на одного ребёнка. Для супружеских пар достаточно спальни размером около 15 кв. м. Если же в здании проживает 2 семьи, можно предусмотреть для него отдельный вход.
Фото дома 10 на 12
План одноэтажного дома 12 на 12: аналог небольшой двухэтажной постройки
Любая выбранная по типовому или индивидуально разработанному проекту планировка одноэтажного дома 12×12 м представляет собой отличную возможность расположить комнаты в соответствии с требованиями жильцов и рекомендаций специалистов. Особенности такого здания:
- комфортное размещение от 2 до 6 человек даже без мансардного этажа;
- удобное расположение жилой зоны в верхней (мансардной) части и хозяйственных помещений внизу;
- возможность временного использования мансарды только в летнее время, а, при увеличении размеров семьи, перевод её помещений в полностью жилую зону.
Размеры одноэтажного дома 12×12 м позволяют разместить внутри и веранду, и гараж на один автомобиль, и мастерскую, и бойлерную. Санузлов для такого здания может быть и два, и даже три – если количество проживающих здесь постоянно семейных пар тоже равно трём. При этом для каждой семьи может делаться отдельный вход. Ведь при устройстве ломаной крыши общая площадь дома может превышать 200 кв. м, то есть быть примерно равной трём 2-х или 3-х комнатным квартирам.
План дома 12 на 12
План одноэтажного дома 11 на 11 и разнообразие вариантов
Вместительный одноэтажный дом 11 на 11 м с мансардой легко заменит собой не меньше двух полнометражных городских трехкомнатных квартир. Если же добавить к мансардному ещё и цокольный этаж, постройка позволит с комфортом проживать в ней семье из 6–8 человек. При этом у каждой пары будет собственная спальная, а у ребёнка – детская. Средний размер гостиной такого дома – от 20 до 30 кв. м, кухни – не меньше 10 кв. м. Из-за того, что наличие мансарды позволяет не экономить на пространстве, в хозяйственной зоне можно предусмотреть небольшую сауну и даже встроенный в дом гараж. А дополнением к жилой части станет кабинет и просторная веранда.
Проект дома 11 на 11
Проекты такого размера редко применяют для дачного строительства. Но, если дача 11 на 11 всё же будет строиться, в ней не обязательно предусматривать мансарду. Для большого частного дома мансардный этаж практически обязателен, так как позволяет эффективнее использовать подкрышное пространство. Большая часть проектов предполагает создание мансарды, делающей дом почти двухэтажным.
Фото дома 11 на 11
Статья по теме:
Особенности деревянных коттеджей
Дерево — это традиционный материал, используемый для возведения загородных домов. Оно является натуральных, экологически чистым и безопасным, а также обладает превосходными эксплуатационными характеристиками. Помимо этого, данный материал превосходно сохраняет тепло, что позволяет неплохо экономить на отоплении жилья.
Деревянные коттеджи смотрятся очень привлекательно, поэтому внутреннее пространство комнат можно никак не отделывать. Чаще всего люди предпочитают оставлять комнаты в первозданном виде, поскольку так они смотрятся натурально и наполнены особой атмосферой и домашним уютом.
Помимо натуральности, древесина обладает небольшим весом, поэтому при строительстве зданий не нужно укреплять фундамент. Хватает даже обычного лестничного не слишком заглубленного основания. Что касается строительных материалов, то чаще всего используют бревно и цельный или клееный брус.
Достоинства и недостатки
Дома-шалаши обладают своими плюсами перед типовыми постройками, но их владельцам все же придется столкнуться с некоторыми трудностями.
Преимущества
Достоинства домов-шалашей касаются и их вида, и функциональных особенностей.
- Шалаши привлекают своим видом, архитектурным решением и дизайном, поэтому они идеально подходят для молодых семей, людей с творческим мышлением, тем, кто устал от типичных строений. Однако они понравятся и любителям уюта – такие дома обладают особой атмосферой, способствуют комфортному отдыху и спокойствию
- Универсальный вид вписывает дом в любой ландшафт – в лес, в сад, в сельскую местность, в частный сектор. Он будет выглядеть контрастно по сравнению с обычными зданиями и гармонировать с природными элементами
- Простая конструкция сокращает время строительства и экономит на материалах. При наличии необходимых инструментов его можно построить вручную за короткий срок. Также для небольшого здания не обязательно делать объемный фундамент – можно обойтись ленточным, расположенным только под стенами
- Двускатная крыша подойдет для регионов с большим количеством осадков. Она не будет скапливать влагу и защитит почву возле фундамента от размытия
- Шалаши хорошо вписываются в небольшой земельный участок. Они обладают компактными формами и дают возможность спроектировать красивый дом, не занимая большое пространство. Такие строения не дают большую тень, поэтому не мешают растениям, а треугольная крыша позволит разрастаться деревьям
Большое количество разновидностей конструкций и внутренних планировок дают большое пространство для воплощения идей и дают возможность создать дом, идеально соответствующий всем запросам его владельцев.
Недостатки и возможные трудности
Шалаш как дачный домик имеет минимум недостатков, но если приспосабливать его под место постоянного проживания, придется столкнуться со сложностями:
- низкая теплоизоляция и морозоустойчивость
- потеря полезной площади из-за сужения
- необходимость покупать нестандартные материалы
- небольшое количество готовых проектов планировки
В целом, минусы дома-шалаша можно компенсировать за счет качественной планировки.
Дом-шалаш – отличное оригинальное решение, которое будет хорошо смотреться в сочетании с любым ландшафтом. Он представляет из себя тихий уголок, располагающий к спокойствию и отдыху. Простота конструкции значительно облегчает строительство и экономит время и материалы, а результат удивляет своим видом и функциональностью.
Дом Шалаш по Каркасной Технологии / A-frame house / Дачный летний дом
Дом-шалаш (А-образный дом): проекты, размеры, обустройство планировки, достоинства и недостатки | (75+ Фото & Видео)+Отзывы
Детская площадка на даче своими руками: игровая, спортивная | (100 Оригинальных Фото Идей & Видео)
Особенности домов-шалашей
Дом-шалаш или А-образный дом
Дома-шалаши отличаются от типичных построек и видом и формой, и особенностями возведения и расположения комнат.
Внешний вид и интерьер
В домах-шалашах особое внимание привлекает необычный внешний вид, который будет выделяться среди остальных строений
Чаще всего они обшиваются деревом – такое решение создает ощущение естественности и хорошо сочетается с садом или древесными насаждениями. Высокая крыша покрывается черепицей, профнастилом или битумными листами.
Часто шалаш, или a-frame house, оснащают большими панорамными окнами, чтобы обеспечить достаточную освещенность и компенсировать две полностью закрытые стены. Таким образом, он получает даже больше света, чем обычная постройка, а решение хорошо смотрится и изнутри, и снаружи.
Иногда окна размещают на крыше – это освещает второй этаж и добавляет ему ощущение свободного пространства.
Интерьер дома-шалаша создается на основе желаний хозяев или решения дизайнера. Он может быть выдержан в стиле современных технологий, а может основываться на эко-стиле и передавать природную натуральную атмосферу. Чаще всего стены обшивают деревом, украшают элементами кирпича, устанавливают камин или его имитацию.
Функциональность
Шалаш с пристройками
Правильно спланированный каркасный дом-шалаш по функциональности мало отличается от стандартных построек. В зависимости от его предназначения подбираются размеры, позволяющие разместить все необходимые постройки.
Помимо этого, при необходимости к шалашу добавляются пристройки – они не портят его облик, но позволяют разместить в них необходимые комнаты – например, кухню или санузел.
Часто шалаши оснащаются верандами или террасами – это позволяет визуально увеличить его размеры и перенести некоторую часть функциональной нагрузки за пределы дома. Если там будет установлена система отопления, они могут использоваться не только в теплое, но и в холодное время года.
Проекты дачных домиков для 6-10 соток: 120 фото, описание и требования | Самые интересные идеи
Что учитывают при рисовании чертежей?
На этапе планирования приходится продумывать все основные моменты. У новичка на это уходит в несколько раз больше времени, чем у профессионала, но все же это реально. Перед тем как нарисовать дом, обдумывают три основных момента:
- Функционал. В большей степени комфорт зависит от того, насколько удобным окажется жилье. По этому критерию у обычного человека проект иногда получается даже лучше, чем у архитектора, поскольку он прекрасно понимает, чего он хочет добиться.
- Внешний вид. Разумно составленный проект становится не только практичным, но и красивым. Если планируется регулярное проживание или частое посещение дома, то эстетикой тоже не стоит пренебрегать.
- Простые решения. Лучше не пытаться вписать в чертеж дома сложные дизайнерские решения, если опыта в этой работе нет. Лучше сконцентрироваться на простых, но универсальных вариантах.
https://youtube.com/watch?v=kGQx-nZc7j0
Эти принципы ложатся в основу проектирования. С учетом этого люди выбирают участок, ориентируются по размерам постройки, просчитывают примерную стоимость и бюджет, запрашивают данные по геологии, а затем создают проект.
Двухэтажные коттеджи с мансардой и верандой
Если вы хотите, чтобы в вашем жилище было чердачное помещение и дополнительная открытая или застекленная зона отдыха, то в этом случае требуется правильная планировка для 2-этажного дома 10 х 10 метров. Как показывает практика, подобные проекты являются одними из лучших с точки зрения функциональности, практичности и комфортабельности проживания. Если на земельном участке планируется огород, то также в строении можно обустроить подвальное помещение, предназначенное для хранения собранного урожая.
Независимо от проекта, основная зона — это вместительная гостиная и кухня. Последняя может быть как классической, так и совмещенной. К столовой примыкает веранда, переход на которую осуществляется через отдельный выход. Благодаря этому использовать ее можно будет не только в теплое, но и в холодное время года при условии, что она будет застеклена.
Предназначение чердачного помещения может быть различным. Его используют как для хранения различных вещей и предметов, так и для обустройства спальных комнат.
Помимо этого, очень часто мансарду отводят под следующее:
- гостевая;
- бильярдная;
- спортзал;
- кабинет и т. д.
Проекты 2-этажных домов (10х10 планировка предоставляет большие возможности) могут быть различны. Но, независимо от этого, любой из них предполагает, что первый уровень должен обладать укрепленной конструкцией, чтобы выдержать большую весовую нагрузку. Чтобы уровень безопасности был достаточно высоким необходимо очень серьезно подходить ко всем расчетам.
Продумывая планировку, следует учитывать множество нюансов. Особенно это касается мансарды. В большинстве случаев ее используют в качестве основной или гостевой спальни, а также детской комнаты. Чтобы чердачное помещение было максимально комфортным, нужно возвести подходящую кровлю. Наиболее распространенными при возведении двухэтажных коттеджей являются следующие типы конструкции крыш:
- односкатная;
- двускатная;
- ломаная.
Второй вариант более предпочтителен, поскольку намного проще в возведении и требует меньших финансовых затрат. Что касается первого и второго этажа, то их назначение определяется с предпочтениями будущих владельцев дома. По традиции, на цокольном находится большая гостиная, в которой также можно возвести камин для создания большего уюта, зона приготовления и приема пищи (могут быть совмещены или разделены), а также полноценная ванная с туалетом. Второй этаж отводится под кабинет, гостевую спальню, гардеробную и детскую комнату. Попасть во все помещения можно из длинного холла, проходящего через все здание.
Разновидности домов 8х9 и их преимущества
Далеко не всегда земельный участок достаточно большой, чтобы возвести большой по площади дом. Чаще приходится подбирать проект, исходя из размера и формы участка. В этом случае на помощь приходят компактные проекты 8х9; строительными компаниями предлагаются следующие их разновидности:
Одноэтажный. Постройка будет комфортной для круглогодичного проживания 1-2 человек, ее также удобно использовать в качестве дачного дома.

Типовая планировка одноэтажного домаИсточник scmtropics.appspot.com
Одноэтажный с мансардой. Жилье с увеличенной полезной площадью станет оптимальным выбором для небольшой семьи. Чтобы постройка была пригодной для постоянного проживания, потребуется грамотное проектирование и утепление мансардного этажа.

Мансарда просто создана для спальниИсточник dekorrehberim.com
Двухэтажный. Полноценное загородное жилье. Как и предыдущие варианты, проект адаптируется под регион строительства и может быть выполнен по любой технологии. Планировка дома 8 на 9 в двухэтажном варианте отличается большим разнообразием, и вносить изменения в нее проще.

В современном стилеИсточник houzz.fr
Немаловажно, что все три варианта вписываются в небольшие участки прямоугольной, квадратной или нестандартной формы. Постройка небольшого периметра ценна тем, что сокращает расходы
Экономия получается на закладке фундамента, стоимость которого занимает львиную долю в бюджете любого строительства. Также дешевле обходится небольшая площадь кровли и упрощенная планировка комнат. Чтобы избежать переделок и доработок, с этажностью дома необходимо определиться на этапе проектирования.

Планировка одноэтажного дома с террасойИсточник ewt-money.ru




























