Проект Г-образного дома
СК «Стройудача» предлагает интересные варианты проектов домов и бань, среди которых вы найдете домик своей мечты. Всевозможные формы и комплектации, этажность и площадь. Здесь все, что душе угодно.
Полезная площадь дома – 100 кв. м. На первом этаже расположены: кухня, комната, гостиная и санузел. Небольшое крыльцо-терраса перед домом украшает строение. На мансардном этаже предусмотрена спальная зона: 2 спальни одинакового размера и коридор. Г-образная форма позволяет удобно спланировать помещения: на первом этаже – санузел отделен от основных помещений, на мансардном этаже – коридор отделен от спален.
В зависимости от назначения, дома могут быть как небольшими, рассчитанными на временное проживание и сезонный отдых, так и просторными – для постоянного проживания семьи. Возможны и варианты с двумя входами, такие дома оборудованы двумя входами. Требуют дополнительного утепления и шумоизоляции, обустройства долговечного фундамента, проведения коммуникаций.
Дом г-образной формы позволяет рационально использовать небольшую придомовую территорию. Такие дома чаще всего можно встретить на угловых участках. Г-образные дома не только функциональны, но и красивы, если в отделке используются современные отделочные и кровельные материалы. Как правило, такие строения имеют два входа. Для строительства угловых домов в стиле кантри и шале часто используется клееный брус. Очертания дома образуют внутренний двор, который удобно использовать для зоны отдыха.
Освещение и мебель
Правильное освещение помогает не ограничивать эксплуатацию только светлым временем суток. Яркие лампы устанавливаются только в рабочей зоне (если такая предусмотрена). Площадка для отдыха освещается мягким светом, это способствует отдыху и релаксу. Выбирайте энергосберегающие лампы (экономия гарантирована). Осветительные приборы должны иметь высокую защиту от влаги, не мешать при передвижении по площадке, освещать зону отдыха, обеденную группу.

Мягкий свет способствует отдыху и релаксу
Проведите дополнительные розетки. Они пригодятся для садовых электрических приборов (газонокосилок, электропилок). В холодный период на террасе можно установить УФО и в комфорте наслаждаться общением.
Мебель не обязательно должны быть бюджетной пластиковой. Деревянные, металлические комплекты так же применимы. В специализированных магазинах представлены гарнитуры из лозы, венге. Во время дождя съемные чехлы, подушки снимают и заносят, в мебель может выдержать небольшую влажность.

Чаще всего используют плетеную мебель
Современные Люстры и светильники: Какие подходят для зала/кухни/спальни? 205+ Фото Вариантов с натяжными потолками
Освещение и мебель
Правильное освещение помогает не ограничивать эксплуатацию только светлым временем суток. Яркие лампы устанавливаются только в рабочей зоне (если такая предусмотрена). Площадка для отдыха освещается мягким светом, это способствует отдыху и релаксу. Выбирайте энергосберегающие лампы (экономия гарантирована). Осветительные приборы должны иметь высокую защиту от влаги, не мешать при передвижении по площадке, освещать зону отдыха, обеденную группу.

Мягкий свет способствует отдыху и релаксу
Проведите дополнительные розетки. Они пригодятся для садовых электрических приборов (газонокосилок, электропилок). В холодный период на террасе можно установить УФО и в комфорте наслаждаться общением.
Мебель не обязательно должны быть бюджетной пластиковой. Деревянные, металлические комплекты так же применимы. В специализированных магазинах представлены гарнитуры из лозы, венге. Во время дождя съемные чехлы, подушки снимают и заносят, в мебель может выдержать небольшую влажность.

Чаще всего используют плетеную мебель
Заборы для частных домов и приусадебных территорий (+390 Фото Идей). Красивые ограждения и критерии выбора
Бунгало в Турции
Домик находится в обычной турецкой деревне и предназначен для сдачи в аренду. Сюда приезжают на выходные, чтобы насладиться тишиной и природой, сбежав от городского ритма жизни. Простая конструкция компенсируется продуманностью и функциональностью, а также необычной террасой на деревянных сваях.
Фасад бунгало покрыт краской глубокого синего цвета. На террасе, которая также служит крыльцом, расположены шезлонги и столик, окрашенные в цвет фасада и объединяющие композицию. Сваи, ограждения, рамы и лестница оставлены в натуральном цвете и отлично смотрятся на фоне синего. Под пристройкой, украшенной ампельными цветами, расположена клумба и место для хранения дров.
Гостиная в бунгало объединена с маленькой кухней. Санузел с душевой расположены отдельно, а спальня находится на втором ярусе. Из панорамного окна открывается роскошный вид на окрестности. Горячую воду обеспечивает проточный водонагреватель, а вечерами домик согревается электрическим обогревателем.
Какой проект выбрать
Терраса может находится совсем рядом с баней — примыкать одной или несколькими сторонами к стенам здания, а может быть вынесенной на некоторое расстояние от дома. Если еще один вариант — сделать большую площадку впритык к дому и небольшой вынос, соединенный дорожкой, под установку барбекю — чтобы дым не мешал.
Терраса с барбекю вынесена на некоторое расстояние от юани. Соединяется со зданием дорожкой
Кровля может быть у террасы и дома общей, а вот фундаменты делают обязательно независимыми. Между основанием дома и площадки, если они находятся совсем рядом, прокладывают слой утеплителя. Он служит разделителем. Благодаря такому варианту усадка бани и террасы может проходить независимо.
Готовый вариант террасы с барбекю: полторы стены выложены кирпичом, остальные открыты. Под такую террасу нужна армированная плита
Так как усадка может быть неравномерной, то при варианте планировки дома и барбекю под одной крышей, стропильную систему делают плавающую. Она имеет возможность до определенного уровня компенсировать неравномерность происходящих изменений.
Почему мы предлагаем одноэтажные дома с террасой
Частный дом становится тихой пристанью или местом для творчества и развития бизнеса, уголком для релакса и местом веселого время препровождения. И при этом никто из соседей не станет стучать по батареям, или обрывать звонок с претензиями о шуме. Но почему именно одноэтажный с террасой?
Терраса – уголок для релакса
Такие дома – подходят для загородного отдыха, молодежи, людей старшего возраста. Основным девизом становится единение с природой. Дома замечательно вписываются в любой ландшафт. Их проще возводить на проблемных грунтах: с высоким стоянием грунтовых вод, песчаниках. Не нужно сооружать сложные фундаменты. Обилие света в помещениях гарантировано. Что еще дарит такая входная зона? Возможность организовать:
Отличный вариант для летней кухни
- Летнюю кухню.
- Столовую на свежем воздухе.
- Место для мангала.
- Детскую площадку.
- Сушку белья.
На небольших участках можно без беседки и сэкономить финансы на ее строительстве. Открытая площадка поднимает статус жилья. Она выглядит стильно, чем традиционные веранды.
Открытая площадка выглядит стильно
Современный дизайн прихожей в квартире и доме в 2019 году. ТОП-8 советов + 200 ФОТО
Сложности планировки двухэтажных домов
Существуют и другие моменты, увеличивающие стоимость строительства. Рассмотрим их более подробно:
- за счет большого веса двухэтажного дома необходимо дополнительное усиление межэтажных перекрытий, в противном случае проживание в помещении будет довольно опасным;
- коммуникационная система и отопление в таких постройках имеет более сложную разветвленную схему, требующую прокладки дополнительных водопроводов, канализационных стоков, установки специального циркуляционного насоса, который способствует нормальному передвижению теплоносителя внутри контура, для обеспечения полноценного отопления;
- строительные, отделочные и фасадные работы требуют установки лесов, для обеспечения возможности подъема материалов на нужную высоту;
- для семей с детьми и пожилыми людьми разрабатываются специальные проекты, где комнаты, принадлежащие указанным жильцам, и необходимые помещения располагаются на первом этаже, так как перемещение по лестницам для них может быть опасным и проблематичным;
- увеличиваются затраты на покупку утеплителя, потому как возрастает ветровая нагрузка на стены.
Но, несмотря на перечисленные минусы, при наличии достаточных средств для строительства можно на небольшом участке земли соорудить действительно надежное и очень комфортное жилье. Для этого можно подобрать бесплатный проект или воспользоваться услугами специализированной компании, которая занимается проектными разработками.
Особенности и рекомендации по оформлению
Сегодня дачный домик все реже ассоциируется с огородными работами, теперь это место для отдыха от городского шума. Обустраивать дачный интерьер нужно исходя из его задач и будет ли дача использоваться зимой. В любом случае он должен отличаться от интерьера квартиры.

Советы для создания уютной атмосферы в дачном интерьере:
Не стоит захламлять дачный дом отжившими себя вещами.
Важно провести разграничение между зонами отдыха и работы.
Лучше использовать натуральную ткань для штор с добавлением полиэстера для большего срока службы.
Для отделки подойдут светлые тона, которые с вагонкой будут выглядеть гармонично. Ярких цветов можно добавить с помощью декора.
Можно использовать старую мебель, предварительно сменив обивку и покрасив ее.
Живые цветы и пряные травы в горшочках поддержат тематику дачного интерьера на кухне.
Для веранды подойдет плетеная меблировка из ротанга или лозы.
От пластиковых окон, ПВХ и прочей синтетики лучше отказаться.
Для уютных зимних каникул стоит построить камин или печь.
Деревянный сундук, вязаные подушки, льняная скатерть и винтажные часы сделают дачу более привлекательной.
О различных видах проектов домов с террасой
Все проекты условно делятся на три большие категории, каждая из которых обладает своими плюсами и минусами. И до того, как выбрать конкретный проект или приступить к его созданию, следует решить, какая именно разновидность входной зоны будет применяться.
Люди нередко пристраивают террасы, но в большинстве случаев это открытые конструкции, позволяющие создавать эффект неограниченности пространства. Кроме того, проекты с открытыми террасами универсальны, потому подойдут для любого дома, а примыкающие помещения беспрепятственно получают естественное освещение.
Из-за тени от навеса в комнате, которая выходит окнами на террасу, будет не очень светло
С другой стороны, крытые конструкции практичнее, так как могут эксплуатироваться вне зависимости от времени года. Они защищены от атмосферных осадков и солнечных лучей. А если террасу еще и должным образом обустроить, то она может использоваться как комфортная зона отдыха или веранда.
Типовые проекты
Что такое типовой проект? Это, с точки зрения архитекторов, строение со стандартными параметрами, имеющее террасу и гараж. Подобные решения целиком готовы к использованию. Вам же остается только нанять строителей, которые построят дом по выбранному проекту.
Проект дома с террасой со встроенным гаражом
К достоинствам типовых проектов можно отнести:
- высокую скорость строительных работ (рабочие не будут ни под что подстраиваться, они просто прибудут к вам с уже готовой схемой и элементами строительства);
- простоту монтажа (реализацию выбранного проекта можно начинать сразу же);
- доступные цены (на разработку проекта тратиться не придется).
Все эти достоинства и являются причинами того, что большая часть владельцев загородных участков предпочитает именно типовые одноэтажные дома.
Важным преимуществом одноэтажного дома с объединенным гаражом в том, что это сочетание экономит территорию
Лучшие индивидуальные проекты
Для разработки индивидуального проекта потребуются дополнительные расходы и время, однако результат будет действительно стоить того.
Дом с террасой выглядит очень необычно и красиво
К преимуществам данного решения можно отнести:
- внешнюю привлекательность готового дома;
- уникальную планировку;
- шанс воплотить желаемые дизайнерские решения.
Индивидуальное проектирование – оптимальный вариант для тех, кто хочет получить дом, который полностью соответствует всем личным предпочтениям. В процессе разработки будут учтены все ваши пожелания (при условии, что они соответствуют требованиям безопасности).
Компоновка и эскизный проект одноэтажного домаЭкстерьер дома в стиле минимализмОдноэтажный дом с террасойЭкстерьер маленького деревянного дома
Есть и другой вариант – это способ комбинации. Речь идет о некоторых изменениях уже готового бесплатного проекта, который понравился больше всего. Результат – частично оригинальный, частично стандартный проект. Это своего рода «золотая середина» по вполне приемлемой цене.
Программы для проектирования домов
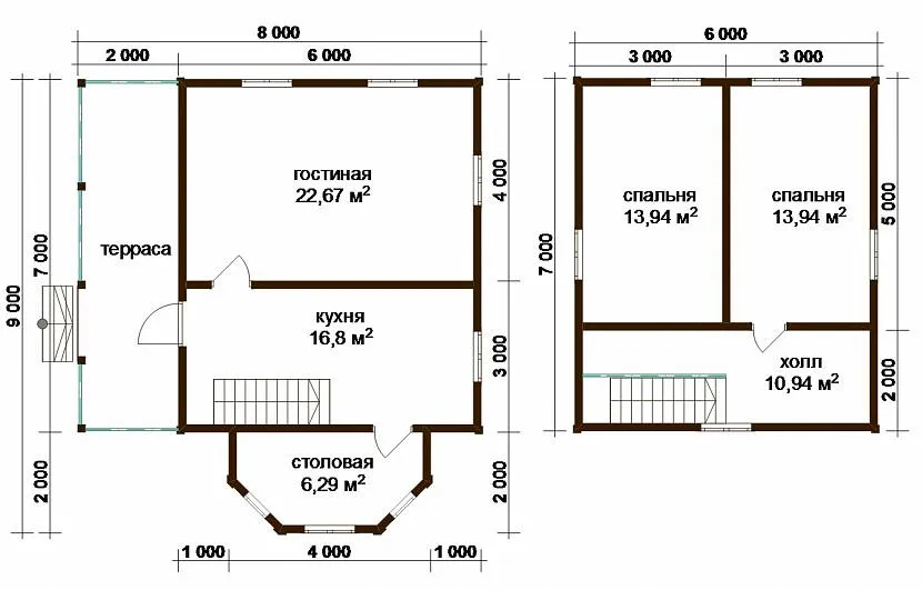
Дом 8*8 с внутренним крыльцом
Очередная вариация Стандартного проекта. На фоне предыдущих, существенно выделется более выразительным фасадом. Точно также к нему могут быть пристроены: котельная, терраса, веранда и даже гараж. Высотные отметки дома стандартные. Дом может быть выполнел из любого вида бруса, но наиболее популярен в варианте из бруса 200*150 мм., а также из профилированного бруса. На первом этаже, как правило, размещается просторная кухня-гостиная, на втором — 3-4 спальни, санузел (достаточного размера) и гардероб. Наличие глухой стенки первого этажа позволяет без труда сделать навес под автомобиль или гараж.
Планировки дома
|
|
|
*По данной акции строительство осуществляется в кп. Верхние протасы. Возможно строительство в других коттеджных поселках нашей компании или на вашем участке в лубой точке Пермского края.Доступные коттеджные поселки: Хохловские берега, Лунежские горы, Луговское — 2, Верхние протасы, Мокино (с 2020 г.)
Как выбрать проект
Архитекторы и дизайнеры предлагают большое количество проектов таких строений. Выбор зависит от:
- Размера участка.
- Предпочтений владельцев.
- Количества проживающих.
- Финансовых возможностей.
- Региона строительства.
- Выбранных материалов.

Проект будет исходить от ваших пожеланий и особенностей участка
Изучив эти вопросы, архитекторы предлагают вариант проекта. При необходимости его дорабатывают или изменяют в соответствии с желаниями заказчика.
Если дом используется эпизодически: только для отдыха во время отпуска или на выходных стоит подумать, нужна ли большая постройка? В этом случае он состоит из 2 спален, гостиной, которая объединена с кухней.

Небольшая постройка идеальна для эпизодического использования
Наличие в семье машины также отражается на выборе. Лучший вариант ее хранения – гараж. Она будет в безопасности и не подвергается коррозии
Важно подумать, как обыграть необходимость гаража и террасы на миниатюрном участке
Если в семье маленькие дети, а дом стоит на возвышении, террасу огораживают парапетом, чтобы предотвратить падения и травмы.

Ограждение убережет детей от падения и травм
Учитывайте рельеф участка
Терраса предназначена для отдыха, поэтому располагайте с видом на горы или озеро, лес или море. Если он строится в городе, подумайте о ландшафтном дизайне, который украсит участок. Если терраса примыкает, расположенному на склоне, то может возводиться не на сплошном фундаменте, а колоннах. Для песчаных грунтов сооружаются ленточные фундаменты. Иногда проектанты предлагают «врезать» дом в склон лесного или горного кряжа, чтобы подчеркнуть единение с природой.

Побеспокойтесь чтобы было видно красивый ландшафт
В чем преимущества и есть ли недостатки?
Перед выбором проекта важно взвесит, что подарит такой проект и какие могут быть «подводные камни»? Разберем подробней:

Терраса — это отдых на природе без выезда из дома
- Эстетическая красота. В отличие от 2 – 3-х этажных домов визуально не перегружают маленькие участки.
- Дешевле больших домов в несколько этажей. Можно без дополнительного строительства на участке беседки, места для мангала, барбекю.
- Не требует сооружения мощного фундамента. Строения не дает большую нагрузку на почву.
- Лучшая возможность для организации отдыха с близкими.
- Стоимость. Меньше нужно финансовых вложений и времени на строительство.
- Большой диапазон выбора стилевых направлений. Владельцы могут экспериментировать с размерами, материалами и цветом.
- Не препятствует передвижению по дому.
- Обеспечивает отдых на природе, без выезда за город или в лес.
- Увеличивает размер дома и помогает создать открытые функциональные зоны.
Есть ли недостатки. Да, но немного и несущественные:

Отдых на открытой площадке зависит от погодных условий
- Нужно заказывать анализ грунта. На влажных участках необходимо организовывать вентиляцию фундамента.
- В северных регионах можно использовать только в течение лета или устанавливать панорамное остекление.
- Отдых на открытой площадке без крыши зависит от солнца и дождя, снега и тумана. Нередко временное укрытие: тенты и зонты не спасают.
- На участках с ограниченной площадью не хватает места для комфортной (большой) террасы.

Отдых в тени плетеных растений
Дом бывает большим или маленьким, богато украшенным или лаконичным. Выберите удобный проект. Вам захочется возвращаться в него, принимать гостей, растить детей, любить и радоваться жизни. Поэтому выбирая, подумайте, какой вы видите свою жизнь завтра, через месяц, 10 или 50 лет.

Внутренний дворик в черно-белых тонах
https://www.youtube.com/watch?time_continue=19/hqdefault.jpg»>
Дом с баней в России
Несмотря на компактные размеры, этот коттедж, стоящий в густом сосновом лесу Ленинградской области, представляет собой многофункциональный комплекс. Дом, построенный на берегу искусственного водоёма, напоминает небольшой корабль — с круглыми окнами, деревянными сваями и имитацией бруса на фасаде.
Постройка из готовых сандвич-панелей была возведена всего за 2 месяца. Фасад дома выкрашен в серо-бирюзовые цвета, благодаря чему органично вписывается в окружающий ландшафт. Морская тематика поддерживается и в интерьере: полосатыми шторами, обивкой, голубым полом. Значительную часть первого этажа занимает баня, а на втором ярусе располагается спальня и мини-кухня.
Терраса дома является продолжением гостиной и в солнечную погоду служит столовой: владельцы выносят сюда обеденный стол и наслаждаются лесными видами.
Проектирование таунхауса иди дуплекса с эркерами
Этот вид таунхауса обладает довольно сложной конфигурацией, поэтому и итоговая стоимость строительства немного выше. Но затраты полностью окупаются эффектным внешним видом строения. Внутреннее оформление танхауса в эркерах тоже довольно оригинальное и привлекательное.
В домах на 2 семьи зачастую строится общая котельная, что позволяет сэкономить небольшое количество площади. Коридор достаточно просторный, поэтому может выступать в качестве продолжения гостиной.
Кухня выступает в качестве отдельной изолированной комнаты. При наличии открытой планировки, когда кухня соединена с залом, дуплекс кажется более уютным и просторным. Но выделение отдельного помещения для кухни имеет определенное преимущество, главное из которых заключается в защите гостиной от въедливых запахов еды.
Двухэтажные дома 8х8: проекты из бруса и пеноблоков
Для возведения просторного и функционального жилища идеально подходит двухэтажное строение. Площадь позволит легко разместить несколько просторных спален, кухню-столовую, гостиную, два санузла, кабинет, гардеробную. Специально выделенная зона для хранения одежды позволит освободить пространство в других помещениях, в комнатах не нужно будет устанавливать громоздкие шкафы.
![]()
Жилое строение 8 на 8 Источник roof-tops.ru
Кухню всегда размещают на первом этаже для удобного проведения коммуникаций.
Немаловажным является выбор материалов для строительства жилого дома. Используют:
- кирпич;
- камень;
- пеноблоки;
- деревянный брус;
- древесно-стружечные панели.

Двухэтажная постройка 8 на 8 Источник krovv.ru Одним из наиболее популярных строительных материалов являются бетонные блоки. Основная причина, по которой предпочтение отдают блокам, — доступная цена. Размеры материала позволяют производить постройку в кратчайшие сроки.
Использование пенобетонных блоков обеспечивает высокую тёпло- и звукоизоляцию. Прочность материала позволяет строить здания высотой до 9 м. Низкая плотность облегчает транспортировку и работу по возведению постройки. Главным преимуществом является низкая теплопроводность, пеноблоки хорошо сохраняют тепло.

Постройка из пенобетонных блоков Источник lanirovkainfo.ru
![]()
Постройка из пенобетонных блоков Источник чеховдомстрой.рф На первом этаже данного проекта находится просторная кухня-столовая, жилая комната, холл, санузел, техническое помещение и тамбур. Второй этаж разделили на три спальни и кладовую.
Удобство использования пенобетонных блоков заключается в том, что материал не требует дополнительного утепления и сложной отделки, подойдёт простая шпатлевка или декоративная штукатурка.
![]()
Постройка из пеноблоков Источник expodom-kudrovo.ru
В большинстве случаев, на первом этаже размещают наиболее важные функциональные зоны, а на втором личные комнаты членов семьи. В данном случае, кроме двух спален на втором этаже находится кабинет.
В отличие от пеноблоков, деревянный брус имеет намного больше преимуществ. Материал отличается:
- экологичностью;
- скоростью возведения здания;
- повышенной звукоизоляцией и теплопроводностью;
- долговечностью;
- возможностью монтажа в любое время года;
- отсутствием необходимости возведения громоздкого фундамента.

Деревянная постройка 8 на 8 Источник doma-karkas.by Дышащий натуральный материал создает в доме хороший микроклимат.
![]()
Деревянный жилой дом Источник domizbrusa.by
В этом проекте при входе находится санузел, затем кухня, детская и гостиная комната. В гостиной установили лестницу, ведущую на второй этаж, здесь находится спальня, кабинет, холл и балкон. Удобный проект для проживания семьи с ребёнком.
У натурального материала есть недостатки, во-первых, это высокая стоимость, не каждый может позволить себе такой дом. Во-вторых, цельный брус подвержен образованию трещин. Швы между брусьями необходимо защищать специальным материалом от попадания влаги. Не рекомендуется возводить брусчатые постройки в условиях повышенной температуры окружающей среды, например, для неклеенной древесины этот показатель не должен превышать 50 °С.
![]()
Строение из бруса Источник brus-ru.ru
На первом этаже деревянного строения находится терраса, которая ведёт в кухонное помещение, рядом с которым расположена гостиная, с другой стороны кухни разместили столовую необычной формы. Площадь кухонного помещения позволила установить здесь лестницу. На верхнем уровне находится холл и две спальни одинаковой площади. Несмотря на то, что помещения большие, натуральный материал обеспечивает хорошую сохранность тепла в любое время года.
Дом 7 на 7 двухэтажный: планировка, фото
Двухэтажные дома 7х7 прекрасно подойдут для проживания семьи, которая состоит из 5-6 человек. Такой коттедж очень гармонично сочетает все удобства для постоянного проживания за городом. Готовые проекты такой площадью пользуются среди частных застройщиков большой популярностью.
Рассмотрим один из классических вариантов.
Планировка дома 7 на 7 (двухэтажный проект) достаточно функциональная и включает все необходимые для комфортного проживания семьи помещения.
Первый этаж помещения отведен для приема гостей.
Здесь расположена:
- гостиная;
- столовая;
- кухня;
- полноценный санузел;
- прихожая и гардеробная.
При желании можно существенно увеличить полезную площадь, соединив для этого пространство нескольких комнат (например, гостиную, кухню и столовую).
Двухэтажный дом, планировка которого рассматривается, имеет два крыльца. Первое служит в качестве парадного входа с улицы. При входе в помещение через прихожую сразу же расположена гардеробная, в которой можно оставить обувь и верхнюю одежду. Другое крыльцо расположено с другой стороны здания, на выходе из гостиной.
Такой вариант выгоден по многим причинам. На заднем дворе всегда можно разбить зону для отдыха или цветник. Также на заднем дворе можно расположить для детей игровую зону, куда они смогут выходить через гостиную. При этом не нужно обходить вокруг здания.
В планировке такого небольшого двухэтажного дома учтены потребности всей семьи.
Как рассчитать оптимальную высоту потолка при проектировании и ремонте
Как видно из описания различного жилья, стандартная высота потолка может быть различной, ее можно уточнить и сравнить в приведенной ниже таблице.
Таблица 1. Стандартная высота пололка в разных типах домов.
| Тип строения | Средняя высота потолка, м |
|---|---|
| «Сталинки», дома старой постройки | 3,0-3,6 |
| «Хрущевки» | 2,5-2,7 |
| «Брежневки», квартиры улучшенной планировки | 2,6-2,7 |
| Панельные и блочные дома | 2,5-2,75 |
| Современные многоквартирные дома | 2,7-3,2 |
| Частные дома, малоэтажное строительство | От 2,5 и выше согласно проекту |
Кроме стандартной, существует и такое понятие, как оптимальная высота потолка. Она учитывает не только требования СНиП к микроклимату и безопасности, но и эргономику помещений, сочетание габаритов по всем трем измерениям. Следует отметить, что оптимальная высота потолка не должна быть ниже регламентируемой.
Опытные застройщики рекомендуют выбирать оптимальную высоту потолков с учетом нескольких факторов, описанных в таблице.
Таблица 2. Выбор оптимальной высоты потолков в различных помещениях.
| Условия, иллюстрации | Краткое описание |
|---|---|
|
Условие 1. Микроклимат и воздухообмен |
Для жилых комнат и кухни оптимальная высота потолка в чистовой отделке должна быть не меньше роста самого высокого члена семьи плюс 1 метр. Это связано с тем, что в верхнем метровом слое воздуха в помещении содержится максимум пыли, бактерий и вредных газов, образующихся при дыхании и работе отопительных приборов. Чтобы обеспечить хорошее самочувствие, нужно исключить вдыхание воздуха из этого слоя воздуха. При среднем росте в 170 см потолки в чистовой отделке выполняют высотой 2,7 метра. |
|
Условие 2. Отопление и затраты на него |
Не следует чрезмерно завышать высоту потолка – это существенно удорожает отопление. Так, для дома площадью 100 м2 увеличение расстояния от пола до потолка на 30 см грозит увеличением кубатуры здания на 30 м3, что потребует установки более мощного отопительного оборудования и повысит затраты на обогрев. |
|
Условие 3. Этажность и планировка |
Для двух- и трехэтажного дома слишком высокие потолки тоже нежелательны, причем не только из-за увеличения затрат на строительство. Лестница на верхние этажи при увеличенной высоте потолка займет большую площадь либо будет иметь слишком крутой уклон, что неудобно и порой небезопасно. Если вам хочется просторную гостиную или зал в двухэтажном доме, используйте планировку со вторым светом, как показано на картинке. В таком доме высота потолка в гостиной или зале занимает оба этажа. |
|
Условие 4. Назначение помещения |
Бессмысленно делать высокие потолки в помещениях с временным пребыванием: в кладовой, гараже, небольшом коридоре. В них вполне достаточно высоты 2,2-2,5 метра. Также не следует делать высокие потолки в бане и сауне – так сложнее будет протопить до нужной температуры. В них достаточно 2,2-2,3 м. |
|
Условие 5. Площадь комнат |
Основное правило: чем просторнее комната, тем уместнее в ней высокие потолки. Так, для гостиной или столовой с площадью от 20 м2 подходит высота потолков 3,0-3,5 метра; для кухни, спальни и детской достаточно 2,7-3,2 метра; для санузла – 2,7-3,0 метра. Добиться различной высоты в разных комнатах можно за счет подвесных или натяжных конструкций и отделки потолка. Под ними, кроме того, можно скрыть коммуникации и вентиляционные системы. |
Расчет лестницы на второй этаж
Несмотря на то, что стандартная высота потолка регламентируется нормами, ее значение может сильно различаться. При покупке нового или вторичного жилья этот параметр нужно уточнить в техническом паспорте на квартиру или дом либо измерить самостоятельно. При частной застройке лучше руководствоваться личными потребностями и предпочтениями, ведь правильно выбранная высота помещений позволит не только создать в доме нужный стиль и интерьер, но и обеспечить там комфортную обстановку.
Нюансы строительства домов с террасой
Такие дома весьма популярны в загородном строительстве. Они идеально сочетаются с красивым ландшафтом, причем вне зависимости от его происхождения (искусственный или природный). Именно поэтому такие здания пользуются среди застройщиков немалым спросом.
Большинство проектов одноэтажных домов с террасой имеют дополнительный выход из гостиной или кухни на террасу
Оригинальные проекты домов подойдут для владельцев загородных участков, стремящихся жить в комфорте и желающих получить максимум плюсов в ходе строительного процесса. Как следствие – человек получает стильное и оригинальное жилище, имеющее удобную и неповторимую планировку.
Отличия террасы от веранды
Проекты одноэтажных домов с террасой чаще всего востребованы в более южных и теплых регионах
Варианты расположения входной зоны (террасы)
В Интернете можно отыскать самые разные дизайнерские решения, однако чаще всего терраса пристраивается со стороны кухни или гостиной. Это, прежде всего, объясняется комфортностью и практичностью. В 9 случаев из 10 терраса находится с противоположной главному входу стороны. Это классический вариант обустройства одноэтажных домов, находящихся в южных областях.
При разработке проекта учитываются также и стороны света. От правильности расположения террасы будет зависеть то, обретет ли она нужные характеристики. Если она ориентирована на юг, то тепла и света в ней будет значительно больше.
Схема одноэтажного дома с террасой
Также заметим, что террасу нередко располагают и с западной стороны. Это подходит больше для тех, кто будет пользоваться входом преимущественно во второй половине дня. Причем даже закрытая терраса, которая защищает помещение от западных ветров, все равно будет получать свою «порцию» солнечного света, благодаря чему будут обеспечиваться комфортные условия для отдыха.
Особенно эффектно дом с террасой смотрится на фоне красивого ландшафта
А вот проекты, в которых терраса располагается с востока – это идеальный вариант для людей, предпочитающих завтрак на свежем воздухе. Утром данные конструктивные элементы отлично прогреваются, но при этом в послеобеденное время хорошо защищают от жаркого солнца.
В случае расположения террасы с северной стороны получается эффект рассеянного солнца. Следовательно, эта часть дома послужит оптимальным местом для мастерской или же обеденной зоны. Если так, то рекомендуется сделать террасу открытой, еще она должна в достаточной мере освещаться солнцем.
Когда в проекте будет предусмотрена терраса, то она в летнее время может заменить столовую или же здесь может быть размещена зона отдыха
Каковы достоинства домов с террасой?
Вне зависимости от того, из какого материала построен дом с террасой, у него имеются многочисленные преимущества. Так, благодаря входной зоне можно организовать объекты, перечисленные ниже:
- летняя кухня;
- детская площадка;
- зона барбекю с мангалом;
- место для сушки белья;
- столовая (чтобы обедать на свежем воздухе).
Проект террасы открытого типа
Также заметим, что одноэтажные дома являются более экономичными, нежели двухэтажные. То, какой фундамент нужно обустроить, зависит от типа грунта на участке. Хотя в большинстве случаев достаточно и простейшего основания, благодаря которому экономится время и сокращаются денежные расходы.
Мнение эксперта:
Масальский А.В.
Задать вопрос эксперту
Еще при обустройстве террасы улучшаются теплоизоляционные свойства дома. Появляется своего рода ограждающий барьер, который надежно защищает от ветра. А это, в свою очередь, позволяет сэкономить на утеплении и отоплении загородного дома.
Терраса является удобным местом как для пикников, так и для отдыха в летнюю жару
Помимо того, терраса позволяет тесно связать окружающий ландшафт с частным домом. Причем вы сами решите, на что именно будете смотреть – на сад, на лес, на озеро и проч. С террасы намного удобнее созерцать окружающие красоты, чем из окна.
Еще благодаря террасе увеличивается жилая площадь здания. Летом здесь можно отдыхать с семьей, принимать гостей или, к примеру, играть в настольные игры.
Благодаря террасе связи между помещениями будут гораздо удобными и практичными
Иногда одноэтажные дома более предпочтительны, нежели многоэтажные. Так, они будут отлично сочетаться с участком большой площади. Еще при строительстве двухэтажного дома потребуется сооружение лестницы, что влечет за собой не только дополнительные расходы, но и некоторые неудобства. Ведь если в семье инвалид или, скажем, пожилой человек, то у него с подъемом на второй этаж будут возникать определенные сложности. Еще лестница может представлять опасность для маленьких детей – не стоит забывать об этом.
На террасе можно принимать гостей в теплое время года
Крыша для двухэтажного дома
Для двухэтажного дома подойдут все классические виды крыш: плоские, одно- и многоскатные, шатровые и купольные, вальмовые и полувальмовые, конические, мансардные и комбинированные. При выборе ориентируйся на стиль дома и архитектурный проект в целом. Например, чтобы обустроить на чердаке жилое помещение, продумать мансардную крышу придется заранее.
Листовые кровельные материалы отличаются простотой монтажа и быстрой укладкой, но они не подходят для сложных конфигураций. Это очень прочный профнастил либо металлочерепица с полимерным покрытием, универсальный и недорогой шифер, легкий и неприхотливый ондулин.
Штучные материалы смотрятся эффектнее и подходят для крыш любой формы и конфигурации, но и работать с ними дольше и сложнее. Это неприхотливая огнеупорная керамическая черепица, более дешевая, но тяжелая цементно-песчаная, элитный сланец, долговечный, но пока что редкий композит.
Мягкие битумные покрытия с повышенными теплоизоляционными свойствами не боятся грибка и ультрафиолета. Листы герметично сплавляются, поэтому не протекают зимой и во время ливней. Их можно укладывать даже на купольные крыши
Но принципиально важно соблюдать технологию монтажа, чтобы не деформировать плиты горелкой
































