Сделать котельную или гараж?
Домовладельцы, которые плохо разбираются в строительстве, вряд ли заметят серьезную разницу между высоким подполом и нулевым этажом. Однако, планировка и предназначение у этих помещений разные.
На цокольном этаже можно расположить газовую котельную, а также другое оборудование, которое обычно выносится за пределы загородного дома. Кроме того, план цокольного этажа зачастую предусматривает наличие ванн и туалетов, кладовых, мест для стирки и других помещений, крайне полезных в бытовом плане.

Гараж под жилыми комнатами нуждается в тщательной изоляции.
Также план этажа может предусматривать место для парковки автомобиля, иными словами, подземный гараж. Однако, такой план имеет большое количество противников, которые говорят о неэкологичности наличия гаража под жилыми комнатами. Основная проблема заключается в том, что в доме после парковки автомобиля начинают появляться специфические запахи, которые остаются в жилых помещениях надолго и от них крайне сложно избавиться. Кроме того, если гараж расположен намного ниже грунта, то подъезд будет иметь значительный уклон, что очень неудобно, в особенности в гололед, когда не будет возможности выехать из гаража на работу.
Подвал как помещение для бизнеса: преимущества и недостатки
Ошибочно думать, что если открыть в подвале бизнес, то он будет убыточным. У таких помещений масса положительных сторон:
- Широкий выбор – каждый многоквартирный дом оснащен подвалом. Более 80% площади до сих пор не занято по каким-либо причинам. Именно поэтому у предпринимателя имеется шанс выбрать подвальное помещение в понравившейся части города.
- Легкость в оформлении – открыть бизнес в подвале не представляет сложностей. Достаточно получить согласие жильцов дома, оформить стандартные документы и приступить к работе. Несомненно, помещение необходимо привести к соответствующему виду на основании действующих санитарных норм, а также провести ремонт в зависимости от выбранной деятельности.
- Оригинальность – размещение бизнеса в подвале не настолько популярно, чтобы можно было встретить 2 одинаковые торговые точки. И если большинство магазинов выглядит однотипно, то на цокольном этаже можно организовать индивидуальную планировку.
- Невысокая арендная плата – действительно, подвалы не пользуются популярностью, поэтому собственники снижают цены до минимума, лишь бы иметь хоть какую-то прибыль.

Минусы бизнеса в подвальном помещении:
- Сырость – в зависимости от возраста дома, коммуникаций и особенностей расположения подвал может оказаться сырым с распространением грибка. Это определяется при первом осмотре помещения. Думать, что после обработки ситуация изменится, ошибочно, потому что придется либо обрабатывать подвальное помещение всего дома, либо проводить мероприятия с регулярностью раз в месяц. Постоянная сырость негативно сказывается на здоровье человека (продавцы, администраторы, предприниматель), вызывая серьезные заболевания.
- Технические работы – учитывая, что в подвале жилого дома сконцентрированы важные узлы водопровода и канализации, выбранное помещение может оказаться центром регулярных сантехнических работ. Это отвлекает бизнесмена от прямых обязанностей, вынуждая закрывать заведение на неопределенное время.
- ЧП – прорыв труб, затопление сверху, задымление. Подвал опасен возникновением чрезвычайных происшествий.
Если грамотно подойти к организации бизнеса, то минусов легко избежать. К примеру, тщательно выбирать помещение, чтобы коммуникационные узлы не пересекались с торговой точкой, исключать зараженные грибком и сыростью дома.
Особенности проектирования
Существует всего два пути составить проект дома с гаражом, чертежи которого вам понравятся: сделать все самостоятельно или обратиться в соответствующую строительную организацию за разработкой индивидуального проекта. Во втором случае вы получите:
- Полное техническое описание объекта;
- Полные чертежи с описаниями;
- План строения со всеми подробностями.
Эти же пункты включает в себя и типовые проекты домов одноэтажных с гаражом.
Типовой проект дома с гаражом
Если вы выберете типовой проект, то это может быть как простой проект 6 х 10 м, так и очень сложный и красивый проект, но нужно помнить, что типовые разработки не всегда подойдут именно для вашего участка и ваших финансовых возможностей. Готовые решения лучше использовать на участках с ровным рельефом и без особенностей ландшафта и грунта. Иначе проект придется корректировать.
При самостоятельной разработке проекта, если вы не архитектор, проще всего воспользоваться компьютерной программой, например, ArchiCAD. Такой смелый подход позволит вам претворить в жизнь все ваши фантазии, вплоть до мельчайших деталей, а проект получится оригинальным и уникальным.
Разработка проекта в программе ArchiCAD
Главные правила при создании проекта одноэтажного дома с гаражом:
- Правильная планировка инженерных коммуникаций;
- Максимальная функциональность гаражного помещения;
- Рационализированное общее свободное пространство;
- Правильная планировка, предусматривающая разделение и максимальное удаление жилой и хозяйственной части;
- Разбивка и благоустройство приусадебного участка и автомобильного подъезда.
Проект дома и гаража на разных уровнях
Даже множество архитектурных и дизайнерских вариантов проектов можно условно поделить на два класса:
- Гараж-пристройка к жилью;
- Подземный гараж.
При строительстве подземного гаража значительно возрастают затраты на землеройные работы плюс вывоз грунта, углубление, усиление и гидроизоляция фундамента. Также понадобится правильно оборудовать въезд в гараж с углом наклона 12°. Именно отдельный въезд намного уменьшит площадь вашего участка и потребует дополнительной защиты от снега, дождя, наледи, и т.д.
Архитектурные решения
Простейший проект имеет прямоугольную форму с примыкающим гаражом к боковой стене жилого строения (см. рисунок ниже). Преимущества такого варианта – максимальное использование пространства.
Прямоугольный проект
План и место дома на участке
- Такие проекты предполагают размещение здания на возвышенности участка, если она существует, для максимального и более продолжительного естественного освещения. Если ваш участок расположен в низине или имеет ровную поверхность, то дом строится на северо-востоке, чтобы дом освещался солнцем максимально долго;
- Фасад дома должен выходить на юг, при этом проект дома с гаражом можно дополнить террасой;
- Чем ближе въезд в гараж к воротам, тем лучше;
- Перед въездом необходимо оборудовать парковку для кратковременной стоянки или для других автомобилей.
Расположение дома с гаражом на участке
Внутренняя планировка дома и гаража:
- Гараж с подсобными помещениями должен находиться со стороны севера;
- Гостиная в доме должна располагаться с южной стороны;
- Восток идеально подойдет для спален, детских и гостевых комнат.
- На западе – столовая, общая или игровая комната.
Следите за правильным расчетом площади гаража, чтобы открывающиеся двери автомобиля не задевали стены и позволяли свободно выйти из машины.
Для максимально комфортного проживания в таком доме и для оптимально удобной эксплуатации гаража рекомендуется обустроить небольшой тамбур между пристройкой и жилыми помещениями. Тамбурная пристройка сократит потери тепла в неотапливаемом гараже, и станет препятствием для проникновения посторонних шумов в дом из гаража. Также гараж – очень удобное место для расположения котла и другого отопительного оборудования, подальше от перехода между помещениями.
Еще один проект
Стиль дизайна дома в один этаж с пристройкой-гаражом можно выбирать любого направления – это зависит только от хозяина. При этом нужно учитывать архитектуру дома, форму кровли, экстерьер приусадебного участка. Если у вас большой участок, то дизайн рекомендуется в классическом или старинном стиле, на маленьком участке лучше будет выглядеть дом в минималистическом стиле или хай-тек.
Неважно, типовой проект одноэтажного дома с гаражом вы выдерете, или закажете индивидуальный вариант со своими решениями. Если вы будете придерживаться наших рекомендаций, то в результате получите комфортный и функциональный загородный дом с удобным гаражом
Виды домов и возможные планировки
Несмотря на разнообразие материалов, дом площадью 6х9 кв. м может быть трех видов.
Одноэтажный
Это самое простое строение, имеющее одноуровневое размещение всех помещений, суммарная площадь которых составляет 54 кв. м. Такой дом довольно экономичен в плане обустройства его отоплением, системой канализации и прочими коммуникациями.
Здесь достаточно будет запланировать только один санузел, поэтому можно будет иметь только один ввод воды и канализационный сток.

Для отопления такого дома достаточно установить печь или камин, с подключенными к нему радиаторами, также подойдет котел с небольшой мощностью. Здесь можно будет обойтись даже без насоса, так как напора воды будет вполне хватать, чтобы обогреть такое небольшое помещение.
Так как площадь жилища довольно маленькая, то лучше всего воспользоваться стандартными рекомендациями.


В первую очередь следует определиться с расположением жилых и нежилых помещений. Так, для спальни, кухни и гостиной лучше выбирать южную сторону строения, тогда ваши комнаты будут максимально освещаться солнцем, и вы сможете сэкономить на электроэнергии.

Для того, чтобы холод не попадал сразу в жилище, рекомендуется оборудовать так называемые сени или тамбур. Но и это помещение можно использовать. Обычно его оборудуют под прихожую, размещая там шкаф для верхней одежды и полки для обуви. Помните, что между самим домом и тамбуром должна быть плотно закрывающаяся дверь, тогда вы сможете максимально сохранять тепло в своем жилище.


В таком небольшом доме нельзя попусту тратить квадратные метры, организуя большой холл или множество коридоров. Здесь должно быть довольно компактно все устроено.
Обычно дом в один этаж позволяет разместить гостиную, кухню, одну или две спальни, санузел и прихожую-тамбур.


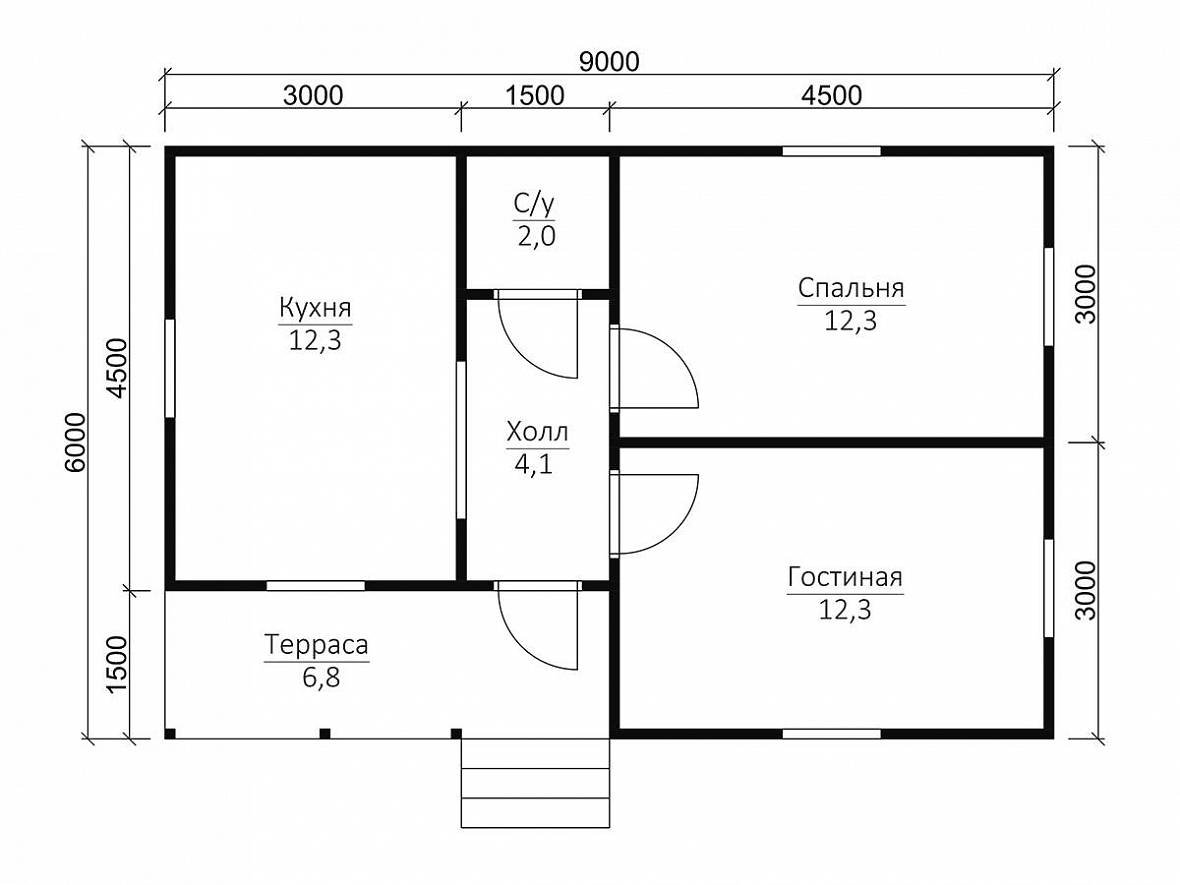
Вот несколько примеров различных планировок.
Здесь предлагается сделать гостиную, спальню и кухню одинаковых размеров в 12,3 кв. м. Относительно холла кухня располагается с одной стороны, спальня и гостиная – с другой. Санузел расположен прямо по коридору. Такая планировка хорошо подойдет для людей пенсионного возраста, у которых бывает не так много гостей, чтобы можно было их разместить в небольшой гостиной. Кроме того, в такой планировке всегда можно зал переделать под еще одну спальню, а гостей принимать на довольно вместительной кухне.




Двухэтажный
Такой дом представляет собой строение из полноценных двух этажей с прямыми стенами и горизонтальным потолком.


Площадь двухэтажного строения увеличивается в два раза и составляет 108 кв. м. Такой дом уже подойдет для большой семьи. Здесь вы сможете выделить несколько отдельных спален, сделать столовую и кабинет.


Здесь планировка может быть следующей:
Планировка первого этажа практически не отличается от одноэтажного строения, только в холле имеется лестница, а санузел размещается под ней. На втором этаже располагаются две достаточно просторные спальни. В такой планировке рекомендуется детскую комнату располагать на первом этаже. Это будет безопаснее для детей, которые могут заиграться и упасть с лестницы.


Пример двухэтажного дома 6*9 метров предлагамем посмотреть на видео.
Дом с мансардой
Планировка дома с мансардой мало чем отличается от двухэтажного строения. Единственно, что следует учесть, это то, что комнаты второго этажа чуть меньше по площади, чем первого. Это происходит за счет того, что внутренняя сторона скосов крыши выравнивается вертикально установленными стенами, а в образованных нришах чаще всего размещают места хранения вещей.






Проекты домов и коттеджей из поризованных керамических кирпичей
Разумеется, поризованная керамика не дешева, однако, изучая проектную документацию в этой технологии, вы отметите, как много можно сэкономить на отоплении и звукоизоляции. Трудно найти лучший тепло- и звукоизолятор, чем современный керамический поризованный кирпич и строительство ведется с учетом его уникальных строительных качеств. Проекты кирпичных домов отличаются большим разнообразием архитектурных стилей популярных в малоэтажном строительстве. В этом разделе сайта вы можете выбрать любой проект частного дома из силикатного или керамического кирпича исходя из собственных индивидуальных пожеланий и потребностей.
Вопросы по проектам домов из кирпича
Вопрос: Что собой представляют ваши готовые проекты кирпичных домов?Ответ: Вся наша проектная документация, в том числе строений из кирпича, состоит из архитектурных и конструктивных чертежей (разделы АР и КР). В архитектурной части представлены общие данные проектируемого объекта, фасады здания, поэтажные планы, экспликация помещений, маркировочные или кладочные планы этажей, разрезы, экспликация полов, спецификация дверей, схемы оконных блоков со спецификациями, план кровли. В конструктивной части показаны конструкционные решения по фундаментам, перекрытиям, стационарным вент. каналам и шахтам, конструкция крыши, перемычек, террас, навесов и крылец. В обязательном порядке в каждом проекте дома из кирпича есть спецификации и расход необходимых материалов на возведение коробки здания от фундамента до крыши.
Кроме этих основных разделов ко многим проектам кирпичных домов и коттеджей дополнительно можно приобрести инженерный раздел проектной документации (ИС). Этот раздел состоит из схем и расчетов по водоснабжению, канализации, отоплению и электрооборудованию жилого здания.Вопрос: Есть ли у вас бесплатные проекты домов из кирпича?Ответ: Бесплатных проектов у нас нет, но вы можете заключить договор на строительство с нашими партнерами строителями, которые компенсируют вам стоимость приобретённой проектной документации.Вопрос: Если в проектах домов из кирпича указан материал для несущих стен поризованный кирпич или крупноформатный камень, можно его заменить на обыкновенный красный кирпич?Ответ: Да, вы можете сделать такую замену, так как фундаменты, к проектам домов из кирпича, проектируются с запасом прочности исходя из расчета нагрузок оказываемых зданием построенным из обыкновенного рабочего кирпича.
Вопросы по строительству коттеджей и домов из кирпича
Вопрос: Какой тип фундамента вы рекомендуете при строительстве из кирпича?Ответ: Фундамент для любого жилого здания должен быть разработан на основании полученного отчета по геологии участка застройки. Но, к сожалению, чаще всего застройщики пытаются сэкономить на геологических изысканиях и строят на основании каких-либо других сторонних факторов. В общих чертах можно сказать, что малозаглубленные монолитные железобетонные фундаменты являются универсальными при строительстве практически на любых грунтах. Очень близкими к ним по надежности являются ленточные монолитные ж/б фундаменты, заложенные на глубину промерзания грунтов в регионе строительства. Во всех остальных случаях, особенно в отношении свайно-ростверковых буронабивных и щелевых ленточных малозаглубленных фундаментов, при строительстве по проектам домов из кирпича мы рекомендуем в обязательном порядке провести геологические изыскания.Вопрос: Какой дом дешевле построить, из обыкновенного кирпича или поризованного керамического крупноформатного камня?Ответ: Если исходить из современных нормативных показателей по теплосбережению, которыми руководствуются авторы проектов домов из кирпича, то строительство из поризованного камня дешевле. Так как стены сложенные из этого материала по толщине значительно меньше, чем аналогичные по теплоэффективности стены из обычного кирпича. Но если убрать за скобки параметр энергоэффективности дома, то здание построенное из обычного кирпича будет дешевле. Выбор за вами. Но как нам кажется, в наше время, когда источники энергии все время дорожают это очень важный фактор при выборе строительного материала на возведение стен любого современного жилища.Вопрос: Строите ли вы дома из кирпича, проекты которых продаете?Ответ: Мы сотрудничаем с опытными и надежными строительными компаниями, имеющими огромный опыт в строительстве любых малоэтажных зданий и сооружений, в том числе и кирпичных. Мы можем вам их рекомендовать. Выбор всегда остается за вами. Вы можете купить у нас без подряда готовый проект кирпичного дома и своими силами строить его. Мы не навязываем вам строительные услуги.
Порядок проведения строительных работ
В первую очередь, нужно подготовить необходимые материалы и инструменты:
Схема усиления кирпичных стен.
- сборные панели;
- теплоизоляционный материал;
- молоток;
- болгарку;
- гвозди;
- шурупы;
- гипсокартон;
- деревянные брусья;
- перфоратор.
Перед тем как построить второй этаж, необходимо демонтировать кровлю и подготовить дом к строительству надстройки. Вначале избавляются от черепицы, после этого разбирают стропильную конструкцию. Перед дальнейшими работами необходимо убрать строительный мусор. Стеновую панель поднимают наверх с помощью лебедки или строительного крана. После монтажа торцевые стены соединяют с помощью продольных балок и укрепляют вертикальными элементами. После этого к горизонтальным балкам крепят стропила.
Теперь можно переходить к утеплению стен второго этажа с обеих сторон. Для этого используются сендвич-панели из гипсокартона с утеплителем. После обшивки стены оштукатуривают. На каркас крыши устанавливается обрешетка, крыша кроется выбранным материалом. После установки стеклопакетов можно заняться внутренней отделкой помещения, подводкой коммуникаций и монтажом розеток и светильников.
При желании построенное помещение можно разделить с помощью гипсокартонных перегородок. Не забудьте предусмотреть в перекрытии проем для монтажа лестницы. Если вы строите полноценный второй этаж, она должна располагаться в гостиной либо прихожей.
Вход в мансарду можно оставить снаружи. Узнав, как пристроить второй этаж к кирпичному дому, вы без проблем сможете выполнить все строительные работы. Как надстроить мансарду?
Совмещение дома и гаража: особенности проектирования
Объединение дома и гаража широко используется современными архитекторами. Реализация такого проекта требует большого вложения денежных средств, при этом можно воспользоваться как уже готовыми планами застройки, так и заказать индивидуальный вариант, соответствующий запросам будущих жильцов.
Гараж очень часто совмещается с домом
Такое объединение имеет ряд преимуществ:
- Экономия денежных средств. Одно здание будет стоить значительно дешевле двух отдельных построек.
- Рациональное распределение площади. В условиях современной нехватки свободной земли и стоимости её покупки безупречным вариантом будет частный дом со встроенным гаражом, который займёт минимальное пространство.
- Сокращение потребления тепловой и электрической энергии вследствие необходимости прокладки одного источника отопления. В случае с раздельным проведением коммуникаций система будет намного сложнее, что приведёт к увеличению счетов за поставку тепла.
- Комфорт при эксплуатации. Если гараж построен под одной крышей с домом, то очень удобно перемещаться из одного помещения в другое. При желании он может быть оборудован в качестве кладовой или мастерской.
От запаха топлива и смазочных материалов, преобладающих в гаражных блоках, можно избавиться с помощью изолированных дверей. Большим спросом при строительстве пользуются одноэтажные здания. Конструкция может возводиться с крытым переходом между помещениями, допускается даже строительство нескольких гаражных отсеков.
Совмещённое строительство довольно экономично
При объединении жилплощади с гаражом появляется несколько положительных моментов:
- Фундамент закладывается облегчённый, поэтому можно упростить его конструкцию.
- Упрощается монтаж кровли.
- Затрачивается меньшее количество стройматериалов.
- Существенно сокращается бюджет на строительство.
Чаще всего гараж является пристройкой к дому
Строительство двухэтажного дома и гаража в одном проекте
На втором месте в рейтинге самых востребованных проектов на рынке занимает такой тип жилья. Возведение двухэтажного здания обойдётся дороже одноэтажного аналога, но при этом появится ряд дополнительных плюсов:
- Экономия средств. Квадратный метр жилплощади двухэтажного дома дешевле одноэтажного строительства. Объяснением этого служит меньшая площадь фундамента и крыши на каждый квадратный метр.
- Компактное размещение. Один и тот же земельный участок допускает возведение как одноэтажного коттеджа, так и двухэтажного. Этот факт особенно важен для владельцев небольшой территории, где ещё хочется разбить сад или оборудовать цветочные клумбы.
- Увеличение вариантов разделения дома на зоны. Большая площадь предполагает возможность создания в доме отдельных мест для сна, приёма гостей, детских игр.
Если строительство гаража было запланировано ещё на этапе проектирования, то его можно расположить на первом этаже
Также можно построить дом с мансардой или полноценным вторым этажом. Первый случай подразумевает изменение уклона кровли, что приводит к снижению высоты потолков и, следовательно, к возможности сэкономить на строительстве и отделке стен.
Плюсы объединения гаража с баней
К преимуществам примыкания гаража и бани относятся такие моменты:
- При правильно разработанном проекте, печка обогревающая баню, может находиться так, чтобы отдавать тепло в гаражное отделение. Тем самым будет происходить большая экономия при обогреве комнат.
- Окажется удобным, участок гаражной комнаты использовать под хранение дров. Когда во время банных процедур не хватит дровишек – за ними не придётся выбегать на улицу, намного удобнее взять их из отапливаемого гаража.
- Есть случаи, когда такие здания венчают мансардой и комплекс гаража с баней дополняется ещё и комнатой для гостей. Появляется возможность увеличить применение помещения, прибегая к экономии площади.

Особенности юридического оформления

Для того чтобы гараж и пристройки можно было использовать для прописки нужно, чтобы это помещение перевели в разряд жилого фонда. Это возможно, если в гараже есть все необходимые коммуникации (водопровод, канализация, электрика) подключенные и согласованные с коммунальщиками. Также нужно получить разрешение от коммунальных служб на проживание в гараже.
Когда все разрешения получены, обращаемся с заявлением и копиями всех согласовательных документов в исполком. Данное согласование возможно, если у Вас есть право собственности на гараж и проект перепланировки постройки, согласованный с отделом архитектуры города или поселка.
При постройке дополнительной комнаты над гаражом надо быть уверенным, что к вам не возникнет претензий от надзорных органов по архитектуре и строительству.
Интересный бюджетный вариант обустройства комнаты над гаражом можно посмотреть в видео сюжете.
Как выбрать проект
Выбор проекта – самый первый шаг навстречу дому своей мечты. Перед тем, как остановится на каком-то одном варианте, нужно учесть множество факторов. Помните, что значительно поменять проект в процессе строительства невозможно.
Прежде всего, стоит определиться с количеством необходимых помещений. Сколько необходимо спален? Нужен ли рабочий кабинет? Понадобится ли отдельная столовая, или достаточно большой просторной кухни? Во время планировки стоит учитывать и обустройство цокольного этажа: гардеробную, кладовку или мастерскую можно перенести из жилой зоны в цоколь.
Подумайте о компоновке дома: сколько должно быть выходов? Где они будут находиться? Какие комнаты должны быть смежными, а какие располагаться как можно дальше друг от друга? Если это вызывает какие-то сложности, можно найти в интернете готовые типовые проекты и выбрать те, что похожи на дом вашей мечты.
Какие материалы используют для входа в цоколь
Варианты материалов, которыми выполняется отделка входа, варьируются в зависимости от качества и цены.
Существует несколько видов материала для входа в цоколь
Дерево популярно в силу своей низкой цены и широкого ассортимента. Эксплуатация его достаточно проста, способов обработки дерева различными покрытиями множество. Помимо этого, важным нюансом является эстетический вид.
Бетон – традиционное сырье для уличных лестниц. Покрытие это долговечное, прочное и качественное. При правильной укладке и хорошем качестве смеси срок эксплуатации будет весьма длительным. В течение этого времени ступени не потеряют своего вида. Один из вариантов – дополнительная облицовка другими материалами.
Однако вся эта конструкция для входа достаточно тяжела, что оказывает лишнюю постоянную нагрузку на основание дома. Альтернатива – монтаж готовых маршей.
Последний вид материала – металл. Он достаточно прочен и имеет сравнительно малый вес. Слабая его сторона – подверженность коррозии. Это можно исправить нанесением качественного покрытия против ржавчины, что существенно увеличит срок его службы.
Мансарда над гаражом или коробчатая надстройка?
У нас принято считать, что мансардная пристройка дешевле, нежели коробчатая надстройка. В то же время строители, основываясь на практике, утверждают об обратном, поскольку современные расходники для утепления подобного рода сооружения обходятся достаточно дорого.
В некоторых случаях добротная жилая мансардная надстройка выходит по финансам дороже 4-угольного короба с наплавляемой крышей.
Выбирая проект двухэтажного гаража, следует руководствоваться такими критериями:
- Эстетика. В сравнении с коробчатой надстройкой мансарда будет иметь более гармоничный и привлекательный вид.
- Функционал. Мансардная пристройка может использоваться как в качестве дополнительного места для хранения инструментов, так и для проживания. Правда, в последнем случае придется потратиться на утепление возводимого сооружения, что может потянуть немалые затраты. Поэтому целесообразно в качестве жилья использовать коробчатую конструкцию.
Выбор типа надстройки зависит от финансовых возможностей, специфики возводимого сооружения и его назначения.
Вывод
Одноэтажные дома с цокольным этажом являются отличным вариантом экономного строительства. Причем, они позволяют не только сэкономить, но и получить просторное и комфортное жилье. К тому же, большое разнообразие существующих проектов позволяют удовлетворить любые пожелания хозяев ().
Дополнительную информацию по данной теме можно получить из видео в этой статье.
Цокольный этаж
– это этаж, который находится ниже уровня жилья. Обычно подобные помещения используются для технических нужд. Главное отличие цоколя от подвала – высота стен цокольного этаж
а должна быть минимум 180 см. По документам цокольный этаж
считается надземным, а дом будет считаться двухэтажным.





























