Планировка дома 6 на 6
При проектировании компактного дома учитывается его назначение. Это может быть загородная дача для летнего отдыха или дом для круглогодичного проживания небольшой семьи. В первом случае в планировке больше места отводится под личные помещения хозяев, а зона дневного пребывания планируется с минимальной площадью. При этом предусматривается достаточно просторная терраса или обустроенная площадка у дома, которая будет служить открытой зоной отдыха.
Если дом с площадью около 36 кв. метров будет использоваться как постоянное жилище, при его проектировании территории дневного пребывания уделяется больше внимания. Кроме того, в круглогодичном доме необходимо предусмотреть место для размещения техпомещений. По возможности в них планируют кладовые и гардеробные, которые помогают сохранять порядок.
Планировка маленького домаИсточник doma-medved.ru
Одноэтажный дом
Одноэтажные строения 6 на 6 идеальны для пожилых людей, а также для молодых семей, у которых еще нет средств для строительства большого частного дома. Преимущества таких домов не только в том, что они недорогие в строительстве, но еще и в том, что они очень экономичны в эксплуатации. Они не требуют больших расходов на отопление и ремонт, к тому же за таким домом совсем несложно ухаживать.
Часто одноэтажные дома 6х6 проектируются по типу квартиры-студии. В них предусмотрено минимум внутренних перегородок и максимум открытого пространства. При таком решении коттедж внутри кажется более просторным и светлым. Но спальня все равно зачастую планируется изолированной. Обязательно изолированным должен быть санузел. Желательно иметь закрытую буферную зону в виде прихожей или небольшого тамбура у входной двери.
Одноэтажный коттедж 6 на 6Источник yandex.ru
Двухэтажный дом
Двухэтажные загородные дома любой площади могут быть мансардными или с полноценным вторым этажом. Обычный и мансардный верхний уровень имеют несколько важнейших отличий:
- в обычном этаже больше полезной площади;
- мансарду дешевле построить;
- кровлю мансарды должны обустраивать высококвалифицированные специалисты;
- мансардный этаж добавляет минимум веса к общей конструкции здания.
Стоит отметить, что маленькие дома лучше строить мансардными. В этом случае они получаются более пропорциональными, что благоприятно сказывается как на внешнем облике здания, так и на его конструкционных характеристиках.
Двухэтажный дом 6 на 6, это уже вполне полноценное жилище, в котором может расположиться семья из 2-4 человек. Конечно, в нем нельзя выделить место под дополнительные помещения, такие как кабинет или бильярдная. Но запланировать пару спален и полноценную зону отдыха вполне возможно.
В двухэтажном доме спальные помещения обычно располагают на втором этаже. Если планировка дома 6 на 6 одноэтажного типа предполагает размещение одной спальни рядом с гостиной, то в двухуровневом коттедже спальни составляют отдельную тихую зону второго этажа, предназначенного только для хозяев.
Двухэтажный коттедж 6 на 6Источник dom-team.ru
Необходимо отметить, что в двухэтажном строении часть внутренней площади будет отведена под межэтажную лестницу и лестничные площадки. То есть территория нижнего этажа маленького дома получается значительно меньше. Поэтому если в увеличении жилплощади за счет второго уровня острой необходимости нет, лучше строить простой одноэтажный домик.
Планировка в 3D программе
Начав работу в программе для дизайна интерьера, вы увидите список опций:
- ✓ «Создать проект». Данный вариант предлагает с нуля выстроить проект квартиры по размерам или на базе готового чертежа (достаточно залить в редактор отсканированный кадастровый план);
- ✓ «Типовые планировки». Опция мало полезна для коттеджей, но способная сильно помочь в проектировании квартир: «хрущевок», «брежневок». Нужно просто выбрать вариант из каталога, а программа предложит готовый макет;
- ✓ «Открыть проект». Кликните данный вариант, если ранее уже работали в программе и имеете сохранённый проекты домов с планировкой.

Стартовое окно программы
Рабочее окно программы включает:
- ✓ 2D-редактор, плоский вид сверху, представляющий собой план дома. Здесь рисуем стены, меняем размеры помещения, добавляем комнаты, перегородки и т.п.
- ✓ 3D обзор, где показана трехмерная модель коттеджа. Можно вращать, отдалять и приближать камеру для поиска оптимальной точки обзора. Под этим окном открывается доступ к «Виртуальному визиту»: возможности просмотра комнат изнутри от первого лица. Также перейти в виртуальный просмотр можно через вкладку, расположенную на левой панели.
- ✓ Главная панель инструментов, где присутствуют три вкладки: «Проект» (кнопки для добавления элементов дизайна), «Этажи» (возможность переключаться между уровнями) и «Свойства» (изменение размеров, текстуры, цвета и прочие настройки).
В качестве первых шагов в в программе «Дизайн Интерьера 3D» лучше выбрать планировку обычной квартиры с небольшим количеством комнат. Но вы вполне можете сразу перейти к дизайну интерьера загородного дома. Всё равно каждый этаж оформляется отдельно, и процесс мало отличается от проектирования квартиры. Разница состоит лишь в том, что по завершении работы необходимо соединить этажи с помощью лестницы. Установить её очень просто, достаточно выбрать нужный вариант из каталога и найти подходящее место. Программа снабжена справочными материалами, которые помогут, если возникнут затруднения. Далее мы пошагово разберём, как подготовить проект в программе:
Шаг 1. Создание макета первого этажа
Создайте новый проект. Нарисуйте комнаты, коридоры, кухню и санузлы в соответствии с реальными размерами. Добавьте окна и двери.

Создаем макет первого этажа
Шаг 2. Добавление этажей
Чтобы создать следующий уровень, нужно кликнуть по кнопке «Добавить этаж», расположенной в поле 2D редактора, либо перейти во вкладку «Этажи» и выбрать соответствующую функцию там. Второй уровень будет полностью дублировать первый: если была выполнена планировка дома 6 на 8, новый этаж тоже будет 6 на 8, с идентичными размерами и расположением комнат.

Добавляем второй этаж
Как только вы создадите второй уровень, редактирование переключится на него. Если понадобится вернуться на первый и внести правки, перейдите туда с помощью вкладки «Этажи». Установите лестницу между уровнями, для этого нужно нажать кнопку «Лестницы и вырезы» и подобрать вариант в каталоге.

Выбираем лестницу из каталога
Несмотря на то, что изначально надстройка дублирует первый этаж, вы сможете произвольно редактировать верхнюю часть. Меняйте параметры стен и размеры комнат, создавая необходимую планировку.

Добавляем лестницу в проект
Шаг 3. Отделка
Вы можете настроить вид обоев, материал пола и потолка. Это делается с помощью вкладки «Свойства». Выполните выполните внешнюю и внутреннюю отделку. Материалы можно взять как из встроенного каталога, так и загрузить свои.

Выполняем внутреннюю отделку
Шаг 4. Меблировка
Когда макет будет готов, необходимо наполнить его предметами интерьера. Это делается ровно так же как в одноуровневых квартирах. Во вкладке «Проект» нужно выбрать соответствующую категорию: «Добавить мебель», «Добавить освещение». В каталоге программы найдите подходящие предметы и расставьте по комнатам.

Выбираем мебель из каталога
Настроить материал и размер мебели и люстр можно во вкладке «Свойства». Выберите объект (например, диван или шкаф), затем отрегулируйте его габариты, расцветку, точное местоположение и другие характеристики.

Настраиваем внешний вид мебели
Вот и всё, проект дома готов! Останется сохранить его и распечатать.
Достоинства двухэтажных домов
Почему стоит остановиться именно на строении с двумя этажами? Это оптимальный вариант для личного пользования по ряду причин:
- ✓ Большая суммарная площадь жилища. Загородные здания могут иметь размеры до 150 кв м и выше. У вас будет полная свобода в планировке и возможность сделать все необходимые комнаты, санузлы и хозяйственные помещения.
- ✓ Подходят даже для маленьких участков. Благодаря наличию второго этажа, вы можете перенести часть комнат наверх. Таким образом уменьшаются размеры дома по сравнению с типовым одноэтажным, где все необходимые помещения приходится располагать на одном уровне. Строение получается более компактным и займёт мало места на участке, позволив добавить другие строения, например, баню.
- ✓ Экономия материалов. Так как общая площадь строения разносится по двум этажам, вам потребуется меньше ресурсов для крыши и фундамента, чем в случае с одноэтажным домом той же площади.
- ✓ Привлекательность. Двухэтажный частный дом выглядит по-настоящему солидно и основательно. Кроме того здесь можно сделать балкон или даже эркер, в то время как в одноэтажном строении доступна лишь терраса или веранда.

Дом в два этажа имеет массу преимуществ
Материал для строительства
Домашнему мастеру, решившему возводить дом из сруба своими руками, необходимы хотя бы первоначальные знания о строительном брусе. Он производится двух видов:
- Стройматериал квадратного или круглого сечения, изготовленный из цельного бревна;
- Клееный брус, который состоит из досок, скрепленных специальным клеем.
Для строительства зданий используются следующие разновидности обработанной древесины:
- Профилированный брус, который для стыковки и ускорения сборки имеет специальные выемки и пропилы;
- Пиломатериал из прессованных склеенных досок;
- Оцилиндрованные круглые бревна.
Профилированный брус в отличие от обычного бревна имеет определенную форму как результат его высокотехнологичной обработки.
Планировка деревянного дома с мансардой размером 6×8
А если внешняя сторона профиля имеет форму полуовала, то небольшой дом 6х8 или жилище средних размеров 8х8 будет выглядеть как сказочный терем из круглых бревен. Клееный пиломатериал также широко применяется в строительном деле, хотя стоит дороже обычного бруса. Массово производить его стали не так уж давно. Он прочнее цельного бревна. В отличие от него дает небольшую усадку постройки — менее 1 %. Теплоизоляция стен не требуется. Многие фирмы предлагают проекты современных домов из этого нового материала.
Проект с планировками всех этажей двухэтажного дома из бруса 10×10
Бревно, которое после обработки на спецоборудовании имеет по всей длине одинаковую толщину, называется оцилиндрованным. Чертеж его сечения — идеальный круг. На стройматериале нет коры, сучков, трещин. Поэтому стены из него без дополнительной отделки имеют аккуратный эстетичный вид. Для ускорения сборки бревно продается с готовыми укладочными пазами по всей длине. Это сокращает весь период строительства.
Стандартная длина бруса — 6 м. Поэтому при планировке дома 6х9, как и 6х8, технология укладки разных по длине брусьев должна быть такой. У каждого венца продольной стены две детали. Слева основная часть — стандартная шестиметровка, справа — недостающие 3 или 2 м для девяти- или восьмиметровой стороны.
Планировка деревянного коттеджа 8×10
Для построек 8х8 или коттедж площадью 9х9 брус соответствующей длины можно заказать на пилораме. Тогда прочность стен будет обеспечена без чередования частей каждого венца. Но при сооружении дома 8х9 десятиметрового бруса на деревообрабатывающем предприятии может не оказаться.
Проект дома 10×10 с планировками всех этажей
Где можно взять бесплатные проекты одноэтажных домов
Самый доступный и простой способ найти бесплатный типовой план в интернете и скачать его – тематические блоги, форумы, в которых люди, построившие собственный жилье, выкладывают в свободный доступ проектную документацию. Делают это люди далекие от архитектуры для того, чтобы профессионалы помогли выявить и устранить возможные ошибки, найти моменты, переделка которых позволит сэкономить, либо просто поделиться своим опытом с другими.
Огромное преимущество подобных проектов – можно увидеть реальный дом, возведенное по этим чертежам, задать вопросы хозяину, чтобы уточнить все важные моменты.
Бесплатную проектную документацию можно найти и скачать на следующих ресурсах:
- Портал «Чертежи». Содержит библиотеки учебных и рабочих планов. Здесь можно найти проекты одноэтажных домов бесплатно с чертежами, но и схемы всех инженерных коммуникаций.
- Строительный форум «Форум Хаус». Представлено много планов.
- Типовые проекты можно найти на сайтах строительных компаний, которые заинтересованы в привлечении клиентов. Это позволяет значительно сократить время на первоначальном этапе работы с клиентом.
- Библиотеки готовых чертежей содержат много проектов, которые можно скачать. Однако неточности в описаниях, отсутствие наглядной информации, необходимость использовать сторонние программы для открытия файлов, значительно усложняет изучение документации.
- Крупные производители строительных материалов заинтересованы в привлечении клиентов, поэтому на официальных сайтах компании бесплатно размещают типовые проекты одноэтажных домов с фото.
На аналогичных ресурсах представлены разные проекты, которые можно использовать для строительства дома. Перед использованием того или иного плана, скачанного из интернета, лучше проконсультироваться со специалистом, который сможет выявить ошибки и недоработки. Строительство – затратное мероприятие, поэтому лучше устранить все недочеты на этапе проектирования.
Из чего строить дом
Из-за многообразия современных материалов бывает непросто определиться, какие именно выбрать для строительства. Что же больше подходит?
✓ Кирпич. По прежнему остаётся популярным материалом благодаря надёжности и долговечности
Если нужны высокие теплоизоляционные свойства и меньшую массу, стоит обратить внимание на пустотелый кирпич. К минусам данного материала стоит отнести большой вес готовой конструкции и необходимость ждать усадки перед тем, как приступить к внутренней отделке.
✓ Газобетон или пеноблок
Одни из лучших материалов на сегодняшний день. Они очень лёгкие и при этом обладают низкой теплопроводностью, «дышат» и являются огнеупорными. Стоят относительно недорого, а недостатков у них практически нет.
✓ Дерево. Натуральный материал, который выглядит эстетично и придаёт дому классический вид. В нём приятная атмосфера, строение «дышит». Однако качественный брус и брёвна имеют большую цену при высокой пожароопасности.
✓ Комбинированные материалы. Вы можете совместить вышеперечисленные варианты. Например, сделать цоколь дома из кирпича, а верхнюю часть — из древесины. Это будет смотреться весьма оригинально и эффектно.

Деревянный дом это красиво, но дорого и непрактично
Рисуем чертеж
На начальном этапе определяются все постройки дома с учетом мансарды. Чтобы у домов не было прогиба, определяется форма и сечение стропильных брусьев. Для правильного расчета толщины стропил требуется знать следующие параметры:
- Угол наклона кровли;
- Особенности климата.
Кроме этого, немаловажное значение имеет материал, из которого сделана кровля. Это могут быть:
- металлочерепица;
- шифер;
- медь;
- профнастил.
Следующим шагом будет определение числа стропил, которые станут основой каркаса и конструкции крыши.
Проект дачного домика с мансардой и балконом
Для дачных домов нужно подобрать подходящий вариант планировки крыши дома. Она изготавливается наклонной или плоской.
Когда стропильная система домов имеет наклонную крышу, стропила крепятся к двум несущим стенам. Для большей надежности брусья стропил укрепляют дополнительными колоннами, иногда ставят среднюю перегородку.
В чертежи дачных домов также входит показ обрешетки для крепления крыши. Она может иметь несколько видов:
- сплошной;
- промежуточный.
Когда делается расчет обрешетки, необходимо учитывать:
- Наклон кровли;
- Материал;
- Крепежные детали;
- Вспомогательные упоры.
Учитывая все перечисленные особенности, можно будет создать проект будущего дачного домика, и выполнить чертеж и конструкцию каркасного дома.
Примеры проектов
Несмотря на то, что вариантов планировки маленького частного домика не так уж много, их архитектурные разработки достаточно разнообразны. Рассмотрим несколько вариантов удобных и красивых домиков 6 на 6.
Проект одноэтажного дома со спальней в мансарде
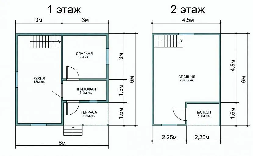
Данный вариант показывает, что если построить мансардный дом 6 на 6 для одной семейной пары, можно получить жилье с просторными помещениями. В указанный формат уместились даже терраса и балкон
Однако при выборе такого проекта следует обратить внимание на то, что в нем гостиная отделена от других помещений первого этажа
На схеме показана довольно большая кухня, но на самом деле это общее помещение, часть которого нужно будет отвести под прихожую, пусть и без разграничительных перегородок. Еще один нюанс – лестница а втором этаже выходит прямо в спальню. Такой проектировочный подход позволяет сэкономить место в мансарде. Но спальня при этом лишается комфортной изолированности от остальных помещений дома.

Проект двухэтажного компактного коттеджаИсточник vilzabota.ru
Проект дома с террасой
Очень функциональный и комфортный коттедж. Уютная угловая терраса, а также квадратный балкон над ней повышают комфортабельность проживания. На террасе можно обустроить летнюю обеденную зону.
Прихожая полностью изолирована. Это очень удобно, так как в зимний период сквозняки с улицы не будут проникать в жилые комнаты. Там, где на схеме обозначена кухня, на деле будет размещена еще и гостиная со столовой. В доме есть 2 спальни. На втором этаже спальное помещение довольно просторно. При желании его можно поделить перегородкой, и сделать 2 детские. А можно обустроить полноценную детскую зону с игровой, оставив для родителей спальню на первом этаже.

Проект дома с террасой и 2 спальнямиИсточник vilzabota.ru
Одноэтажный дом 6 на 6
Представленный проект одноэтажного дома 6 на 6 демонстрирует большие возможности маленьких домов. По планировке этот дом очень похож на городскую квартиру. Но при этом он имеет свои явные преимущества – трехстороннее освещение, собственный двор, свой чердак, который станет хранилищем для различных вещей. Из минусов стоит отметить отсутствие места под общую гостевую зону. Жильцы в таком доме могут общаться только за обеденным столом. Однако если немного изменить расположение кухонного оборудования и столовой мебели, можно освободить место под для удобного мягкого уголка с телевизором.

Проект одноэтажного дома 6 на 6Источник profstroy32.ru
Дом с рациональной планировкой
На представленной ниже иллюстрации можно увидеть как будет выглядеть хорошо запроектированный маленький дом со всей необходимой мебелью. В отличие от предыдущего варианта здесь с максимальной рациональностью использован каждый квадратный метр. Именно поэтому места хватило для кухни, столовой и гостиной. А также для двух удобных спален, одна из которых станет детской, а вторая – личной комнатой родителей.

Комфортный маленький домИсточник archeton.ru
В торце кухонной перегородки предусмотрено место для размещения камина. Это может быть стильный современный элемент интерьера, который станет дизайнерским акцентом всего дома.
Пример проекта и планировки коттеджа 6×6 в следующем видеоролике:
Внутренняя планировка дома
Все упомянутые дома размером в 8х10, могут вместить помещения, необходимые для комфортного проживания среднестатистической семьи. Если площади 6х6 или пространства 6х8 маловато, то на этих квадратных метрах возможно возведение двухэтажного дома. А еще полезную жилую площадь можно увеличить утепленной мансардой.
Обычно таких ограниченных размеров воздвигают дачные постройки. А у них своя специфика. Например, если здесь планируется проживание только в теплый сезон, то наличие тамбура необязательно.
Пример планировки дома из бруса с мансардой 9×9
- Спальня, одна или несколько;
- Кухня как помещение для готовки, приема пищи;
- Гостиная или общая комната для сбора всех членов семьи и приема гостей;
- Санузел;
- Возможная пристройка дома с гаражом.
Строение 6х6, как правило, больше подходит для дачи, в которой можно проводить время в теплый сезон года. Это бюджетный вариант одноэтажного дома. Его возводят на небольших дачных участках. Его чертеж простой — разделение всей площади на три помещения: одно — 16,5 м2, второе — 10, 5, а третье — 5,7 м2.
На даче хозяева, их дети и гости основное время проводят на воздухе. Если супруги приехали сюда одни, то муж весь день провозится с гаражом. А жена в это время будет копаться на огороде. В комнатах, как правило, никто не сидит. В связи с этим самое большое жилое пространство выделяют спальне.
на оборудование санузла в домеКладовка вместе с гаражом может располагаться в подваледом с мансардой
Изменение схемы вызовет также лестница на второй этаж дома, без которой в таких строениях не обойтись. При планировке комнат на первом месте должна стоять функциональность, а не дань моде и советы фэншуй. А для защиты от плесени, грибков не обойтись без соответствующей обработки. Это можно сделать также своими руками, используя современные консервационные и дезинфицирующие растворы, которые всегда можно купить на местном рынке.
Вариант планировки коттеджа из бруса размером 6×8
Проекты одноэтажной постройки 6х8, или 6х9 практически ничем не отличаются от рассмотренного здесь домика 6х6. Только больше пространства можно выделить прихожей, а санузел оснастить кабинкой для душа. А вот планировка дома 8х8 позволяет увеличить количество спален.
Другое дело квадратный дом 9х9, или прямоугольный 8х10. У них, даже если строения одноэтажные, значительно больше возможностей для комфортного проживания. По занимаемой площади 80 м2 равнозначны четырехкомнатной квартире. Здесь уже можно увеличить кухню, гостиную, число спальных комнат. А санузел оснастить ванной. Появится возможность рядом с кухней поместить кладовку.
Планируем первый этаж
Для того чтобы грамотно создать проект дома на компьютере, необходимо определить все нюансы первого этажа. Для этого нужно точно знать:
- Габариты дома;
- Каков материал для строительства;
- Расположение окон;
- Расположение дверей;
- Число комнат первого этажа;
- Устройство и расположение лестницы;
- Расположение входа в подвальное помещение.
Затем размеры будущих комнат рассчитываются в соответствии с толщиной стен
Очень важно такие расчеты выполнять с максимальной точностью. Первые этажи дачных домов можно приравнять к миниатюрной двухкомнатной квартире, имеющей несколько особенностей
Возможно, это красивая лестница на второй этаж, а, может быть, камин, отапливающий все помещение.
Когда строится камин, обязательно делается разводка воздуховодов. На чертежах отражается путь воздушных трубопроводов. Когда планировка и расчет первого этажа закончены, приступают к проектированию других этажей.
Проект и планировка дачного домика 6х4 с верандой
Из вышесказанного можно сделать вывод: первым этапом проектирования дачного дома является первый этаж. Только после этого приступают к созданию фундамента. Для него делается чертеж опалубки с указанием материала и всех необходимых размеров. От того, каким будет фундамент, зависит, насколько долго будет нормально функционировать дачный домик.
Оптимальные размеры двухэтажного дома
Современный коттедж 6 на 6, 8 на 8, 9 на 9 или 14 на 14 метров – большое пространство, которым нужно верно распорядиться. Именно здесь кроется основная сложность – оптимально расположить жилые помещения и грамотно выбрать стиль оформления. Что стоит учесть, составляя проект дома в 2 этажа?
✓ Если площадь коттеджа не слишком велика, нужно подумать, как сэкономить пространство. Это можно сделать благодаря объединению кухни с гостиной
В результате получится просторное помещение, где можно выделить зоны под приготовление пищи, столовую и место для отдыха.
✓ Если прилегающая к коттеджу территория имеет достаточную площадь, можно присоединить к дому отдельное помещение под гараж.
✓ Когда выполняется планировка двухэтажного дома, важно помнить, что достаточно много места займёт лестница, и учитывать это при проектировании помещений. Чтобы часть свободных метров не пропадала, используйте подлестничное пространство под удобную кладовку.

Не забудьте, что достаточно много места займет лестница
FloorPlan 3D
Очень удобная программа, в которой можно:
- Сделать перепланировку;
- Дизайн комнат;
- Провести реконструкцию существующих помещений.
В программу заложены профессиональные приложения. Не имея дизайнерского опыта, любой человек, работая в этой программе, может очень быстро спроектировать модель дачного дома.
Пример проекта дачного домика разработанного в FloorPlan 3D
Одним из преимуществ такой программы считается возможность получения точной 3D-модели любого помещения.
Для работы, программу обеспечили специальными библиотеками. В результате она поможет:
- Расставить в комнате мебель;
- Выбрать нужную текстуру;
- Подобрать электробытовое оборудование;
- Выбрать сантехнику;
- Создать складную лестницу;
- Смонтировать освещение.
Программа подскажет, какие потолки лучше всего подходят к комнате. Кроме того, FloorPlan способна разработать дизайн прилегающей территории.
- забор;
- дорожки;
- клумбы.
Конечно, в статье показаны не все подобные программы. Однако использование приведенных выше программ поможет быстрее провести проектировочную работу.
Мансарда и дачный дом
Чтобы обустроить мансарду, нужно установить монолитные перекрытия, поддерживающие первый и верхние этажи. Они в основном устанавливаются там, где планируется наличие санузла в доме или какой-нибудь комнаты. Такое монолитное перекрытие заливают в виде монолитного пояса, расположенного между этажами. Когда проектируется чертеж дома с мансардой, за основу берется проект первого этажа, из которого удаляются все лишние детали. В результате получается чертеж мансардного этажа.
Например, мансарда может иметь вид маленькой комнаты. Ее легко превратить в гардеробную или обустроить спальню.
Проект и планировка мансарды и первого этажа дачного дома 7х7
Если на мансардном этаже планируется установить камин, необходимо заранее предусмотреть выход каминной трубы. Для эстетичного вида, можно сделать на мансардном этаже небольшой открытый балкон. После того как будет готов чертеж других этажей и мансарды, делается проект крыши с базированием на всех особенностях мансарды.
Совершенно отдельно вычерчивается фасад дачного дома, показывается внешний вид строения. На основе такого чертежа подбирается угол наклона кровли, рассчитывается нужное количество окон. На последнем этапе выбирается материал, и производится расчет его необходимого количества.
Заключение
Стоит освоиться в программе «Дизайн Интерьера 3D», и вы заметите, что планировка двухэтажного дома с гаражом больше напоминают увлекательную компьютерную игру, чем работу. Добавив основные предметы интерьера, вы обнаружите, что ещё столько мелочей нуждаются в вашем внимании! Можно даже создавать собственные объекты, благодаря базовым фигурам овальной и прямоугольной формы. Не терпится попробовать? Скачать редактор можно тут. Творите в удовольствие, создавайте своими руками уютный дом мечты!
Эконом-дизайн частного дома с фото
Дизайн интерьера загородного дома: 10 лучших идей с фото
Дизайн интерьера гостиной в современном стиле: новые идеи





























