Геологическая разведка участка дома
С чего начинается «работа над проектом дома своими руками»? В первую очередь, при работе над проектом дома самостоятельно, необходимо провести геологическую разведку участка – оценить характер местности, почвы и узнать уровень стояния грунтовых вод. Лучшее время года для этого – весна, тогда их уровень находится максимально высоко и есть возможность с максимальной достоверностью определить этот показатель
Сделать это очень важно исходя из того, что именно данный показатель имеет наибольшее значение при закладке фундамента частного дома

Для определения глубины залегания грунтовых вод рекомендуем обратиться к специалисту
Запланированное количество человек (семей), проживающих в доме
Для чего это:
Имея ответы на первые два вопроса (лучше записать их где-нибудь, для того, чтобы в процессе выбора постоянно видеть/помнить какой именно дом Вы планируете построить), можно приступать к дальнейшим действиям:
- Готовые проекты делятся на «проекты для одной семьи» и «проекты для двух семей». Проекты для двух семей, представляют собой сблокированные дома, с отдельными входами и могут иметь или не иметь общие помещения.
- Чем больше жителей предполагается в доме, тем больше в нем должно быть спален и санузлов, а также просторней должны быть «общие» комнаты, типа гостиной, столовой.
- Если в доме планируется поселить несколько поколений, (например, родители- дети- взрослые внуки), то это предполагает специфические требования к планировке. Желательно сделать территорию каждой семьи как можно более «автономной» (как минимум свой санузел, и спальня, а как максимум – отдельный вход). Причем помещения для пожилых родителей лучше располагать на первом этаже. Готового проекта под такие требования может не оказаться, их немного.
- Если планируются «регулярные гости», то можно предусмотреть гостевые комнаты, но нужно помнить, что эти комнаты нужно будет отапливать и убирать круглогодично независимо от того, живет ли в них кто-нибудь и как часто.
Высота хрущевки. Характеристики домов
Хрущёвки представляют собой возводимые по типовым проектам многоквартирные дома в стиле функционализма . Были панельными , кирпичными , реже крупноблочными . Наиболее известными являются панельные хрущёвки. Они получили широкое распространение благодаря высокой скорости возведения из заранее изготовленных железобетонных панелей. Как правило, такие дома имеют низкую теплоизоляцию наружных стен и плохую шумоизоляцию внутри дома. Кирпичные дома чаще всего строились в городах, не имеющих собственных домостроительных комбинатов . Для их возведения обычно использовался силикатный кирпич и железобетонные изделия заводского производства: плиты перекрытий, балконов, перемычки, лестничные марши. Скорость возведения хрущёвок была очень высокой, из-за этого нередко страдало качество домов.
Высота подавляющего большинства хрущëвок — 4 или 5 этажей. Это связано с тем, что 5 этажей — максимальная высота дома, в котором по строительным нормам не требуется лифт . Хрущёвки могли иметь меньше этажей — 2 или 3, чаще они встречались в сельской местности, а также в небольших городах. В некоторых сериях хрущёвок имеется мусоропровод .
Квартиры в хрущëвских домах в основном одно- и двухкомнатные, трёхкомнатные редки. Высота потолков — 2,48-2,6 м, в блочных домах некоторых серий — 2,7 м. Площадь кухни — 4,9-7,1 м² (до 7,5 м² в некоторых квартирах домов серии II-18 ). В наиболее распространенных сериях хрущёвок санузел смежный во всех квартирах, кухня имеет площадь 5,5-6 м², в двух- и трёхкомнатных квартирах имеется проходная гостиная комната. Квартиры-хрущёвки обеспечены основными коммунальными удобствами: центральным отоплением, холодным водоснабжением, канализацией, естественной вытяжной вентиляцией, кухонной плитой . Горячее водоснабжение могло быть как центральным, так и индивидуальным, с использованием газовых колонок или водонагревателей на твёрдом топливе.
Панельные хрущёвки подразделяют на сносимые и несносимые. Хрущёвки сносимых серий предназначались для временного решения жилищной проблемы и были рассчитаны на 25 лет, но часть из них до сих пор не выведена из жилфонда. Хрущёвки несносимых серий имели расчётный ресурс 50 лет; поздние исследования показали, что ресурс может быть продлён до 150 лет (при своевременных капитальных ремонтах). Кирпичные хрущёвки относятся к несносимым сериям и имеют срок службы не менее 100—150 лет. Тем не менее, отдельные дома могут прийти в негодность намного раньше из-за плохого техобслуживания или низкого качества строительства.
Удобства
Более ранние проекты сталинских домов сильно различались по обеспеченности коммунальными удобствами. В сталинках «номенклатурного» типа обязательно предусматривались центральное отопление, холодное и горячее централизованное водоснабжение, отдельная от туалета ванная комната, при этажности выше 5 этажей в здании был лифт и мусоропроводы . В то же время в домах «рабочего» типа, предназначавшихся для широких слоев населения, нередко отсутствовала ванная комната , санузел состоял из умывальника и унитаза , а для мытья жильцов использовались общественные бани . Для приготовления пищи использовались плиты на дровах , при наличии ванны горячая вода нагревалась в накопительном водонагревателе , топливом которого также служили дрова или иной вид твёрдого топлива . В проектах малоэтажных сталинских домов предусматривались версии с печным отоплением квартир, существовали даже проекты домов без водопровода и канализации , с люфт-клозетами . Перекрытия в «рабочих» и некоторых «номенклатурных» сталинках были деревянными, кроме лестничных клеток в многоэтажных домах и санузлов. В сочетании с применением печей деревянные перекрытия были достаточно пожароопасны .
Секреты экономии пространства
Главное правило проживания в маленьком доме – всегда поддерживать в комнатах порядок. Чем меньше на видных местах вещей и предметов, тем просторнее кажется помещение. Поэтому в таких домах предусматривается встроенная мебель, куда можно убирать все лишнее.

Встроенный шкаф в маленьком доме Источник enotes.info
При оформлении интерьера следует придерживаться принципа рационального минимализма. В комнатах должна быть только самая необходимая мебель. Причем подбирать нужно мебель в одной светлой очень ограниченной цветовой гамме. Лучше просто выбрать один цвет для всех предметов интерьера и для отделки стен.
Мини дом в светлой цветовой гамме Источник remont-samomy.ru
Идеальный вариант – трансформирующаяся мебель, которую можно сложить или убрать в специальную нишу на время, пока она не нужна. Применение такой мебели должно быть запланировано еще на этапе проектирования. Вообще при разработке проектов мини-домов интерьер должен продумываться сразу. Архитектор должен знать, как будет расставлена мебель, и в соответствии с этим рассчитывать планировку всех помещений.
Если места на участке совсем мало, нужно строить двухэтажный мини-дом. Но в этом случае проектирование должно быть еще более тщательным. Часть пространства займет межэтажная лестница, и это нужно учитывать. Правильно запроектированные двухэтажные мини коттеджи более функциональны, в них больше пространства для размещения жилых помещений. К тому же на участке они более солидно выглядят.
Двухэтажный мини дом Источник tomjaks.com
Планировка таунхауса на четыре хозяина
Такие дома на четыре семьи отличаются большой площадью остекления, а также малым количеством внутридомовых перегородок. Таунхаусы на четыре семьи очень часто возводят в поселках с хорошо продуманной инфраструктурой, где без труда можно найти образовательные учреждения, продуктовые и прочие магазины, а также собственные инженерные коммуникации.
В таком месте можно обосноваться для постоянного проживания и ездить в город лишь на работу или по делам. Преимущества перед обычными частными коттеджами очевидны, и в современном мире такие варианты все чаще привлекают покупателей. Возведение таунхаусов — набирающая популярность отрасль в частном строительстве, которая имеет отличные перспективы. Подтверждением тому является заинтересованность правительства в малоэтажной застройке городов. Являясь равноценными аналогами городских квартир, таунхаусы привлекают все большую целевую аудиторию.
Проектирование
Выбирая проекты на фото, привязываются к условиям конкретного участка. Изучают подвод инженерных коммуникаций, ориентируют дом с учетом возможности оптимального подключения.
Обязательно учитывают уровень грунтовых вод. Его определяют на основании геологических исследований. При высоком уровне потребуется дополнительная гидроизоляция. В поэтажный план дома не включают цокольный этаж. Исключен подвал. В условиях наличия грунтовых вод, при возведении здания стоимость строительства увеличивается на 30%.
В проект дома входит стандартный набор помещений:
- зал;
- кухня;
- спальни;
- ванная и санузел;
- тамбур;
- хозяйственные помещения.
План частного дома на стадии проектирования можно менять и экспериментировать: добавлять новые комнаты, объединять помещения. Для увеличения площади в планировке предусматривается слияние кухни, столовой, зала в единую студию. Современная вентиляция сможет защитить зону отдыха от пищевых запахов.
Одноэтажный
Одноэтажный дом выбирают дружные семьи, предпочитающие проживать на одном уровне, не желающие много перемещаться по лестничным маршам. Это универсальная планировка для большого загородного участка.
Преимущества одноэтажного жилого дома:
- Здание имеет небольшой вес, что упрощает возведение фундамента. В проекте не потребуется усиление стен.
- Проживание на одном уровне исключает строительство лестницы, которая забирает полезную жилую площадь.
- При необходимости улучшения жилищных условий к дому легко пристроить дополнительные помещения.
В одноэтажном доме комнаты располагаются последовательно, функционально разделяя пространство.
Двухэтажный
Планировка дома в несколько этажей позволяет четко разделить зоны. Для распределения площади на комнаты потребуется в масштабе начертить план дома.
На первом этаже размещают в непосредственной близости столовую и кухню. В проекте рядом с комнатой для приготовления пищи выделяют место для кладовки, чтобы хранить пищевые запасы. Согласно планировке отводят место для санузла, размещают душевую кабинку и раковину с ориентацией на гостей.
В проект второго этажа включают спальни, гардеробные, общий холл. Под санузел отводят большее, по сравнению с первым этажом, помещение, оборудуют ванной. По планировке гардеробные устанавливают на первом и втором этажах.
С цокольным
Планировка частного дома с цокольным этажом часто используется в строительстве. Такой вариант возможен только при низком уровне грунтовых вод. В проекте на дополнительной площади можно разместить спортзал, винный погреб или бильярдную. Высота помещения не должна быть менее 1,8 м.

С мансардой
Современные жилые дома часто строятся с мансардой, альтернативой двухэтажной конструкции. В проекте получается много места, его используют под зону ночного отдыха. Высота мансардного этажа – не менее 2,3 м.
За счет покатой кровли площадь помещения уменьшается, при ее вычислении пространство высотою менее 1,6 м учитывается с коэффициентом 0,7. Строительство дома с мансардой обходится дешевле, чем обустройство цокольного этажа.

Ванная комната и туалет в доме
При достаточной площади участка дом не будет маленьким — это однозначно
И особое внимание следует обратить на планировку туалета и ванной комнаты
Это особенно актуально, когда в доме проживает большое количество людей. Конечно, это будет немного дороже, но ведь и удобнее. Не надо стоять у двери, мечтая о посещении туалета побыстрей.
Но и для тех, кто все-таки планирует совмещение санузла, есть прекрасный способ отделить пространство ванной от туалета.
Помещение следует просто перегородить при помощи раздвижной перегородки, как на фото. Эстетично, красиво и недорого, и как результат – разделение санузла на функциональные зоны.

При раздельном проектировании санузла, для туалета подойдет пространство всего в несколько квадратных метров. Согласитесь, зачем его делать большим?
Лишнее пространство можно потратить с наибольшей пользой, например, расширить размер ванной. Вот здесь свободное пространство лишним точно не будет.
Допустим, никто не запрещает отвести под ванную 10 кв. метров или, что совсем неординарно, сделать для санузла дополнительный вход со двора.
В двухэтажных домах обычно делают два санузла – для каждого этажа отдельный. Чаще всего, комнаты планируют одна над другой, так как это позволяет экономить на строительном материале.
Но это необязательно и каждый владелец вправе сам решать планировку своего санузла.
Особенности строительства таунхаусов
Строительство таунхаусов берет свое начало в Англии, где этот тип застройки позиционировался, как экономичный, однако, спустя некоторое время, проект таунхауса был по достоинству оценен во многих странах, в том числе и в нашей стране.
После адаптации в каждой из стран проекты приобрели национальные особенности интерьера и внешнего облика, присущие регионам. Примером тому служит различное предназначение таунхаусов в разных странах, к примеру, в туманном Альбионе такие жилища популярны среди семей с крупным достатком, а в Европе — среди жителей среднего достатка.

Вариант проекта трехэтажного таунхауса
Как правило, по площади каждая секция составляет около 150 квадратных метров, а размер прилегающей земли не более нескольких соток. Обязательный атрибут таунхаусов, навязанный нам из западных фильмов, — это ровно подстриженный газон по всему участку. За домом часто располагают зону для отдыха и площадку для барбекю.
Естественно, что отечественный таунхаус после ассимиляции стал не похож на свои западные аналоги. Наша необъятная страна позволяет возводить дома площадью гораздо большей, чем 150 квадратных метров, да и планировка земельного участка в несколько соток нашими соотечественниками расценивается как нечто игрушечное: как же без огорода?

Проект двухэтажного таунхауса с гаражом и мансардой
Что касается цены за таунхаусы в нашей стране, то она находится около суммы в 600 тысяч долларов. Все зависит от отдаленности участка от города, соответственно можно найти таунхаусы, превышающие эту цену в два раза. Однако для большинства жителей нашей страны более приемлемыми считаются дома экономкласса.
Планировки серий домов раннего строительства
Итак, какие типы небольших домов существовали в Советском Союзе и существуют до сих пор? Самая ранняя и самая популярная серия домов была построена под номером 1-464. Во всех квартирах этой серии есть балконы и маленькие туалеты, но в подъездах нет лифта и мусоропровода. В таких домах были двухкомнатные, трехкомнатные и однокомнатные квартиры.
На лестничной площадке четыре двери. Начиная с 1963 года в течение четырех лет активно строились малолитражные дома серии 1-335. Здесь высота потолков уже на 4 см выше, а размер обеденной зоны достигает 6,2 квадрата. Планировка однокомнатного хрущевского дома из этой серии также предполагает наличие балкона. На площадку четыре двери, максимальный размер — три комнаты. Четырехкомнатных квартир в типовых домах не было.
Первая группа панелей — 1-434. Во всех квартирах планировка трехкомнатных хрущевок, самых просторных, также была существенно изменена в сторону уменьшения. Но, к счастью, столовая всегда оставалась прежней: 5,8 кв. Дома построены из кирпича, классический набор дополнительных услуг остался прежним: балкон, кладовая, встроенные шкафы.
Дома серии 1-467 строились из бетонных блоков, площадь кухни стала больше и могла составлять от 6,6 до 7,7 квадратных метров. Санузлы в планировке хрущевок сначала делали раздельными, позже перешли на комбинированный вариант. Основным недостатком жилья серии 1-467 было то, что многие помещения в планировке 2-х комнатных хрущевок и вариантов с большей площадью были проходимыми.
Но есть существенное преимущество — возможность перепланировки.
Прорисовываем второй этаж
Здесь уже все будет намного легче – ведь помещения в доме могут располагаться идентично (самое главное, не менять взаимное расположение санузлов — для того чтобы не усложнять проведение коммуникаций). Вполне достаточно будет спроектировать место расположения входной двери (многие архитекторы рекомендуют делать два входа на второй этаж — дома и с улицы) и окон.
Шаг 5: Аналогично планируем помещения второго этажа. Не забываем про коммуникации — располагаем санузлы и ванную друг под другом
Шаг 6: располагаем двери
Шаг 7: чертим окна второго этажа
Получили вот такую 3D модель второго этажа
Как выбрать планировку квартиры в новостройке.
Как создается планировка квартиры
Планировка должна быть функциональной и гибкой. Под функциональностью зонирования имеется в виду, что в квартире должна быть соблюдена логика перемещения (рядом со спальней есть ванная, гостиная находится по соседству с кухней и т. п.), сохранена удобная геометрия комнат, продумана расстановка мебели и техники, учтено естественное освещение и все тонкости инженерных коммуникаций.
Гибкость планировки подразумевает, что квартиру легко можно приспособить под разные потребности проживающих. На это влияет количество окон (значит, зонирование можно сделать разное), минимальное число несущих конструкций (можно ставить и убирать перегородки) и наличие нескольких санузлов (можно их объединить, разделить или трансформировать в сауну или прачечную).
Размер — это важно?
Метраж квартиры не влияет на её удобство напрямую. Лучше приобрести эргономичную небольшую квартиру, чем переплатить за лишние квадратные метры, которые фактически нельзя использовать, но при этом они будут учитываться при оплате коммунальных платежей и расчёте налогов. Да и в бюджет ремонта их придётся заложить.
Оптимальный размер квартиры — от 30 до 130 кв. м: всё, что заметно меньше или больше, стоит оценивать критически. Даже рынок премиального жилья в России постепенно уходит от гигантизма, и огромные квартиры по 300 кв. м годами не находят покупателей.
Как выглядит идеальная планировка
Хорошая планировка имеет сценарий: входящий попадает в прихожую, где есть место для шкафа, гардеробная ниша или кладовая. Гостиная как центр всей квартиры должна располагаться на одной оси со входной дверью, а кухня — примыкать к ней.
Кухня и гостиная могут быть объединёнными или нет, но в проекте между ними не должно быть несущей стены (чтобы у хозяина была возможность сделать перепланировку по своему вкусу). Рядом со входом, если позволяет площадь, желательно спроектировать гостевой санузел. Если комнат больше одной, они присоединяются к основному «гостевому» блоку, создавая жилую часть (блок спален), где может быть отдельная ванная комната или даже несколько.
Пример планировки дома из двух комнат
Если вы решили построить маленький домик, состоящий всего из двух жилых комнат и пригодный для проживания одного или двух человек, в проекте предусматривают максимально выгодный вариант, учитывающий небольшую площадь дома. Кухню и столовую можно совместить, как и ванную с туалетом. Максимально используют встроенные модули: шкафы, технику, ниши и кладовки. Одна спальня в доме должна быть обязательно. К тому же в гостиной нужно оборудовать спальное место.
Ширина прихожей не должна быть менее 1,5 м. Если площадь помещения большая, оборудуют встроенные шкафы и стеллажи с обувью, верхней одеждой.
Пример планировки одноэтажного дома, состоящего из двух жилых комнат
В двухэтажном доме жилые комнаты располагают на 2 этаже, на первом хозяйственный сектор – кухня, столовая, котельная, кладовка.
План строительства дома из двух жилых комнат должен предусмотреть:
- прихожую;
- общую комнату;
- спальню;
- кухню;
- санузел;
- кладовку.
В проекте можно продумать отдельный выход из кухни на террасу.
Пример планировки первого этажа двухэтажного дома, состоящего из двух жилых комнат
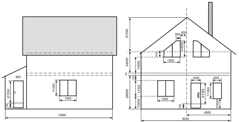
Особенности составления проекта дома — чертежи как основа планирования
Чертежи помогают примерно представить итоговый вид здания: снаружи и внутри. Нет смысла торопиться с созданием окончательного варианта эскиза. Лучше потратить много времени и предвидеть больше нюансов. Чертежи можно раз за разом подстраивать под новые идеи, учитывая дальнейшую жизнедеятельность на участке и внутри здания. Предусмотреть можно даже достройку этажей.
В схемах первым делом указывают их количество, а также тип верхнего яруса. Крыша бывает плоской и покатой, а под ней может располагаться мансарда. Внутри планируются зоны: рабочая, для готовки, для отдыха и т. д. Снаружи — хозяйственные помещения, пристройки, сады, общие зоны. Территории с похожей функциональной нагрузкой размещаются близко друг к другу. Все вышеуказанные аспекты лежат в основе проектировки готовых планов. Каждый готовый проект — некий вариант с полным набором необходимых приспособлений и функций.
Необходимость в проекте и чертежах дома
Согласно законодательству, возводить частные дома можно как с проектом, так и без него. Однако опыт компетентных в этой сфере людей показывает, что наличие проекта имеет определяющее значение на этапе строительства. Без него работа усложняется, и в алгоритме действий и их точности появляются сбои. Еще сложнее становится, если нет схемы строения и расходной сметы. Более того, проект и эскизы, даже созданные самостоятельно, позволят сэкономить на услугах инженеров и архитекторов. Разобраться во всех аспектах не выйдет, но освоить азы проектирования простых домов под силу всем. Разработаны также специальные программы для составления планов.
Проекты помогают рассчитать расход материалов, описать параметры комнат и зданий, выбрать идеальное место для дверей, окон и балконов, определиться с предназначением помещений и функционалом построек. Подробно расписанный план нужен для расчета конструкции фундамента и кровли. Он играет ключевую роль для прокладки и выбора местонахождения:
- отопления;
- водопровода;
- септика;
- выгребной ямы;
- вентиляции.

Планировка с размерами
Описание архитектурных элементов: чертежа здания, планировки жилых, хозяйственных помещений, обозначения окон, дверей.

- Расчёт конструкции фундамента, коробки, кровли, схематичное изображение чертежей с разметками.
- Электрическое оснащение с подробным планом подключения дома к энергосети и схемой разводки розеток.

Инженерные сообщения: вентиляция, газ, септик, водопровод, отопление.
Как показано выше, в структуру схемы входит план дома с мансардой, в котором указывается площадь, внутренняя расположенность помещений основного строения, с нанесением на схему дверей, перегородок, лестницы и окон.
Чертеж и планировка всех этажей здания с мансардой
Получается, что, отказываясь от услуг архитектора, вся составляющая документации проекта ложится на владельца жилья. Ведь планировка квартир отдельно от планового расчета существовать не может. Все же под руководством проектировщика, хозяин владения, может начертить план сам.
Однокомнатная квартира
Это самый популярный вид жилья на вторичном рынке жилья. Все благодаря его компактности и бюджетности. Вы, конечно, лишитесь возможности смело экспериментировать с дизайном, но иметь небольшие размеры в хрущевском доме лучше, чем не иметь ничего, не так ли? Маленькая прихожая занимает от двух до трех квадратных метров, в зависимости от типа здания.
Через компактный совмещенный (иногда раздельный) санузел ведет в гостиную. Жилая площадь немного отличается, опять же в зависимости от года постройки дома комната обычно 16-19 кв. Отсюда можно попасть в обеденную зону, площадь которой 5-7 метров. Высота потолков 2,5-2,7 кв.м, везде есть балкон, наверху в коридоре или в комнате часто можно увидеть встроенные антресоли.
Планировка и зонирование
При планировке однокомнатных квартир, особенно в хрущевке или студии, часто пространство распределяют по зонам. В этом случае следует выбирать всю отделку и мебель только светлых тонов
Это очень важно, так как вы сможете визуально сделать пространство больше и объемнее
Сегодня очень популярен бежевый оттенок, который сделает интерьер студии или хрущевки изысканным и в то же время достаточно простым. Чтобы визуально увеличить пространство, можно остановить свой выбор на отделке в скандинавском стиле. Стоит отметить, что выбор точечного окружающего освещения также сделает пространство намного просторнее.
При разделении квартиры на функциональные зоны не обойтись без арок, некоторых перегородок, больших полок и отдельных подиумов. При умелом использовании всех перечисленных элементов может получиться уютная и функциональная квартира, которую сложно будет отнести к хрущевке, при этом ее площадь совершенно не изменится.
Кроме того, при планировке однокомнатных квартир стоит обратить внимание на зеркала, которые значительно расширяют пространство и добавляют много света. Вы также можете использовать большие зеркала, чтобы выделить одну из областей
Фотографические примеры обустройства однокомнатных квартир типа «хрущевка» и «студия».
Хрущёвка 30 кв м
Помещение с такими параметрами обычно бывает в хрущевке. Обустроить комнату в хрущевке — задача не из легких. Обычно дизайнеры рекомендуют разделить хрущевки на несколько зон. Планировку стоит попробовать, так как в ней должно быть достаточно места для всего необходимого.
Чтобы зрительно увеличить маленькую хрущевку, стоит отдавать предпочтение только светлым тонам. Также не помешает разместить зеркальные поверхности, которые добавят комнате дополнительного света.
В хрущевке не стоит использовать большое количество украшений и аксессуаров. А еще желательно использовать трансформируемую мебель. В качестве спального места можно выбрать угловой диван.
Как можно увеличить площадь
Проект одноэтажного дома 10х10 довольно просторный, но площадь можно при желании увеличить еще больше. Обычно такая потребность появляется, когда в здании много жильцов или прием гостей происходит регулярно.
Основные методы расширения пространства при планировке одноэтажного дома 10х10:
- Включение в проект цоколя или подвального помещения под библиотеку, спортзал, сауну;
- Установка мансарды. Постройка здания с мансардным этажом обойдется ненамного дороже стандартного одноэтажного дома. При этом получается второй уровень, где можно расположить ванную, детскую комнату для игр, кабинет, спальню;
- Монтаж односкатной крыши. Крыша опирается на стены разной высоты, поэтому можно сделать маленькую навесную площадку на опорах или пандус у высокой стены. На площадке размещается рабочее место, гардероб;
- Обустройство плоской крыши. На этом участке возводят участок для барбекю, принятия солнечных ванн. Если поставить крепкие заграждения, можно обустроить игровое место для детей, построить качели, сделать цветник. В теплый период крыша выступит в роли большой террасы.

Кухня и обеденная зона

Для того чтобы было просторнее, дизайнеры рекомендуют объединить кухню и столовую. Для этого окажется достаточной комната в двенадцать квадратных метров. Если вы все-таки хотите разделить эти помещения, то под кухню отведите не менее десяти квадратов, а под столовую – около восьми.
Нет принципиальной разницы, где именно размещать обеденную зону, если вы сможете организовать качественную подсветку. Главное – расположите кухню и столовую подальше от спальни, чтобы не мешали запахи готовящихся блюд.
Хороший совет – разместить кухню недалеко от санузла. Это позволит сэкономить на длине трубопровода.




























