Из чего строить
Для строительства стен могут использоваться следующие виды материалов:
- Кирпич. Характеризуется прочностью, долговечностью. Обладает высокими показателями шумоизоляции, морозоустойчивости, пожаробезопасности.
- Строительные блоки. Материал обойдется значительно дешевле, чем кирпич. Из преимуществ отмечаются прекрасные теплоизоляционные свойства, за счет чего в доме создается благоприятная атмосфера.
- Дерево. Довольно популярный материал в современном строительстве, что объясняется экологичностью, уютом, теплом и экономичностью. Дома из массива обладают многими плюсами, среди которых прочность, низкий уровень теплопроводности и способность «дышать», создавая тем самым оптимальный климат в помещении.
- Каркас из дерева или ЛСТК. Из главных преимуществ отмечается приемлемая стоимость, быстрый монтаж и легкость конструкции, что позволяет значительно сэкономить на фундаменте. Дома такого типа не дают усадки, имеют отличные теплоизоляционные свойства, а их сооружение возможно в любую пору.

Каркасный дом 6 на 8Источник santorpack.ru
Каждый из материалов обладает своими положительными качествами, что поможет принять правильное решение и сделать свой дом максимально комфортным, эргономичным и удобным.
Основные правила для сооружения лестницы на второй этаж своими руками
Любую лестницу можно купить уже готовую, заказать по своим размерам или даже изготовить самостоятельно.
Неважно какой вариант вами был выбран, главное знать следующие правила:
Если вы только еще проектируете свой дом, обратитесь к специалистам для расчета необходимых параметров или посчитайте их сами. Тогда вы сможете заранее запроектировать проем нужных размеров.
Интерьер с лестницей в индустриальном стиле.
- Обязательно следует определиться с типом лестницы. Если места совсем мало – выбирайте винтовую, если достаточно, то маршевую. Если же вы хотите соорудить изящную и практичную конструкцию, то останавливайтесь на больцах.
- Рекомендуются следующие размеры проема: для прямого марша достаточным будет проем 1,2 х 3,7 м; при L-образном устройстве — 3,1 х 1, 3 м; для U-образной конфигурации — 2 х 2,5 м. Если лестница обычная винтовая, то для нее нужен проем, равный 2,2 х 2,2 м; а если она будет выполнять вспомогательную функцию — 1,5 на 1,5 м.
Лестница скрыта за перегородкой из матового пластика.
- Для обеспечения безопасности маленьких детей, расстояния между соседними балясинами ограждения нужно делать не больше, чем 15 см.
- Высота ограждений лестницы не должна превышать 85 см. Ширина оптимально: 25 — 30 см.
- Несущая способность лестницы для любых жилых домов допустима не менее 300 кг/м2.
Деревянная лестница со стеклянными перилами.
Ступени не должны быть скользкими. Тем более, совершенно недопустимо их наклонное к уровню горизонта положение. Перила должны быть оптимальными для любого роста. Сначала лестницу тщательно крепят наверху либо на площадке между двумя этажами. Длина всей лестницы должна точно совпадать с фактической высотой этажа. Наверху устанавливают перила на надежные крепежи. Получившаяся лестница должна обладать хорошей прочностью, а перила надежностью и плотностью.
Под лестницей оборудован шкаф для хранения вещей.
Угол подъема по лестнице в доме на второй этаж, фото которой наиболее гармонично, не бывает более 45 градусов. Допускается диапазон в 35-40 градусов. Ширина ступенек не менее 80 см, наиболее оптимально — от 90 до 120 см.
Обустройство лестницы в нише.На заметку! Не следует пренебрегать инженерными требованиями к конструкции лестницы в угоду декоративным элементам. Это может послужить причиной многих неприятностей.
Соблюдая все предложенные правила можно самостоятельно изготовить или установить красивую и безопасную лестницу в доме на второй этаж. Фото своей работы потом можно с удовольствием показывать своим старым хорошим знакомым.
Телескопическая лестница: как выбрать стремянку (прочитать подробнее)
Новые решения в планировании пространства
Одним из новых решений при планировке помещений является их совмещение в зависимости от назначения. Так чаще всего совмещают кухню, столовую и гостиную, а так же санузел с ванной комнатой. Это позволяет расширить площадь помещения, избежать стесненности условий и при этом сделать быт более комфортным и удобным. Так для того чтобы приготовить есть, хозяйке не нужно находиться одной на кухне, так как члены семьи смогут быть с ней рядом в гостиной. Уборка в совмещенном санузле будет выполнена намного быстрее и проще так все сантехнические приборы, которые нуждаются в постоянной тщательной очистке, находятся рядом друг с другом.
Современная планировка – общие помещения на первом этаже, а на второй выносятся спальни и дополнительные санузлыИсточник josri.ru
Одноэтажный мини-коттедж 10Х10
Планировка одноэтажного дома из пеноблоков вышеуказанного размера часто бывает такой. Справа от тамбура расположена котельня.

Из тамбура можно пройти в небольшой холл, справа от входа в который расположен совмещённый санузел. Слева располагается ряд из трёх комнат, отделённых от холла несущей стеной.
Кухня слева примыкает к санузлу и отделена от него перегородкой. Гостиная находится прямо за холлом. С кухней её разделяет перегородка. Такой дом рассчитан на проживание семьи из 4-5 человек.
Обратите внимание!
-
Балясины для лестницы: ТОП-140 фото и видео. Виды балясин для лестницы. Материалы изготовления. Инструкция по установке своими руками
-
Ставни на окна: предназначение и разновидности ставней на окна. Особенности материала изготовления. Размеры ставней для разных окон (фото + видео)
- Дизайн веранды — применение и преимущества веранды. Интерьерные стили дизайна веранды. Материалы для отделки террасы (фото и видео-обзоры)

Особенности домов-шалашей
Дом-шалаш или А-образный дом
Дома-шалаши отличаются от типичных построек и видом и формой, и особенностями возведения и расположения комнат.
Внешний вид и интерьер
В домах-шалашах особое внимание привлекает необычный внешний вид, который будет выделяться среди остальных строений
Чаще всего они обшиваются деревом – такое решение создает ощущение естественности и хорошо сочетается с садом или древесными насаждениями. Высокая крыша покрывается черепицей, профнастилом или битумными листами.
Часто шалаш, или a-frame house, оснащают большими панорамными окнами, чтобы обеспечить достаточную освещенность и компенсировать две полностью закрытые стены. Таким образом, он получает даже больше света, чем обычная постройка, а решение хорошо смотрится и изнутри, и снаружи.
Иногда окна размещают на крыше – это освещает второй этаж и добавляет ему ощущение свободного пространства.
Интерьер дома-шалаша создается на основе желаний хозяев или решения дизайнера. Он может быть выдержан в стиле современных технологий, а может основываться на эко-стиле и передавать природную натуральную атмосферу. Чаще всего стены обшивают деревом, украшают элементами кирпича, устанавливают камин или его имитацию.
Функциональность
Шалаш с пристройками
Правильно спланированный каркасный дом-шалаш по функциональности мало отличается от стандартных построек. В зависимости от его предназначения подбираются размеры, позволяющие разместить все необходимые постройки.
Помимо этого, при необходимости к шалашу добавляются пристройки – они не портят его облик, но позволяют разместить в них необходимые комнаты – например, кухню или санузел.
Часто шалаши оснащаются верандами или террасами – это позволяет визуально увеличить его размеры и перенести некоторую часть функциональной нагрузки за пределы дома. Если там будет установлена система отопления, они могут использоваться не только в теплое, но и в холодное время года.
Проекты дачных домиков для 6-10 соток: 120 фото, описание и требования | Самые интересные идеи
Варианты планировок дома 8х8
Востребованы следующие варианты планировочных решений:
- одноэтажные;
- с мансардой;
- с террасой;
- двухэтажные и т.д.
Одноэтажные дома
Одноэтажные здания подходят для небольших семей. Планировочные решения предусматривают прихожую в центральной части, вокруг размещают остальные комнаты. Кухню рекомендуют объединять с гостевой комнатой. Дом можно дополнить остекленной верандой.
Конструкционная планировка одноэтажного строения проста, поэтому разведение коммуникационных систем требует меньших финансовых вложений. В одноэтажном доме нет лестницы, что позволяет оставить полезную площадь под обустройство дополнительных зон отдыха, кладовок. Затраты на монтажные и проектировочные работы также уменьшаются.
При подготовке планировочного решения дома необходимо учитывать, что для большого пространства сложно избежать проходных помещений. Можно сделать гостиную с 2 входами и тамбур. Спальные и комнаты для детей можно разместить в отдалении от входной зоны.
Дома с мансардой
Дома из газобетона с мансардой позволяют обустроить дополнительную детскую, комнату отдыха, вторую спальную либо гостевую комнату. В мансарде можно обустроить ванную, хозблок.
В качестве фундамента для строения из газоблоков используется монолитная железобетонная плита. В качестве внешней отделки здания можно использовать декоративную штукатурку, окрашивание, каменные блоки, фасадные доски и т.д. В некоторых проектах можно встретить встроенный гараж.
Двухэтажные дома
Двухэтажные жилые здания предполагают обустройство 2 санузлов (на разных этажах), можно спроектировать просторные кладовые, хозблоки рядом с лестничным пролетом. На первом этаже стандартно размещается гостевая-столовая и кухня; зоны разделяют с помощью перегородок. При необходимости сохранения большего пространства они объединяются, выполняется визуальное зонирование пространства. На втором этаже можно обустроить террасу, на первом — пристроить веранду,
Дома с террасой
Здания с открытой террасой не требуют изменения системы отопления стандартного проекта. При этом создается добавочная площадь для отдыха, приема гостей в летний период. По проектному решению можно остеклить террасу и дополнить встроенной системой отопления для использования пространства в зимний период, обустройства зимнего сада, расширения жилой части здания и т.д.
При выборе террасы надо определить стилевое решение, конфигурацию. Универсальна открытая терраса, дополненная навесом, примыкающая одной стороной к строению. Данная конструкция оптимальна для дачной постройки, т.к. недостаточно защищает от осадков, ветра.
При постройке веранды вокруг всего дома в летний период можно обеспечивать прохладу в помещениях, данный проект подходит для теплых климатических условий. На террасе можно разместить столы, кресла, протянуть шезлонги.
Для капитального жилого здания рекомендуется использовать застекленные террасы. Место подходит для летней спальной, зоны отдыха, гостевой комнаты. Рекомендуется выполнить качественную декоративную отделку помещений.
Оригинально выглядит проект с террасой в стиле модерн. В некоторых случаях возможно остекление не только стен, но и крыши для создания панорамной конструкции. В постройках в современном стиле можно спроектировать раздвижные двери купейного типа.
Видео описание
Несколько архитектурных проектов одноэтажных домов смотрите в видео:
Двухэтажный дом 10х12 с балконом и открытой террасойИсточник catalog-plans.ru Дом 10х12 с мансардным этажомИсточник sitysun.ru Одноэтажный дом 10х12Источник kreddo.ru Дом 10х12 с мансардой, балконом и гаражом в цокольном этажеИсточник pinterest.ie Увеличение площади дома 10х12 за счет устройства односкатной кровлиИсточник houzz.com Устройство дополнительный помещений в доме 10х12 с плоской кровлейИсточник en.decorexpro.com Устройство открытой площадки на плоской крыше дома 10х12Источник cistudents.org Одноэтажный дом 10х12 с гаражомИсточник pinterest.com Дом 10х12 с мансардным этажом, балконом и верандойИсточник bankfs.ru Одноэтажный дом 10х12 с эркерамиИсточник yandex.uz
С чего начать планировку?
Для начала следует определиться со своими потребностями. Если нужен домик для постоянного проживания, крайне желательно предусмотреть наличие котельной. В дачных домиках котельная не является обязательной, там можно ограничиться электрическими отопительными приборами.
Также обязательно надо учитывать количество членов семьи и их возраст. Семья из двух или трёх человек вполне может довольствоваться маленьким домиком 6Х6, в котором всего две комнаты.

А вот для комфортной жизни многодетного семейства нужен одноэтажный коттедж с большим количеством комнат. Исходя из этих факторов и следует проектировать дом.
Достоинства и недостатки
Дома-шалаши обладают своими плюсами перед типовыми постройками, но их владельцам все же придется столкнуться с некоторыми трудностями.
Преимущества
Достоинства домов-шалашей касаются и их вида, и функциональных особенностей.
- Шалаши привлекают своим видом, архитектурным решением и дизайном, поэтому они идеально подходят для молодых семей, людей с творческим мышлением, тем, кто устал от типичных строений. Однако они понравятся и любителям уюта – такие дома обладают особой атмосферой, способствуют комфортному отдыху и спокойствию
- Универсальный вид вписывает дом в любой ландшафт – в лес, в сад, в сельскую местность, в частный сектор. Он будет выглядеть контрастно по сравнению с обычными зданиями и гармонировать с природными элементами
- Простая конструкция сокращает время строительства и экономит на материалах. При наличии необходимых инструментов его можно построить вручную за короткий срок. Также для небольшого здания не обязательно делать объемный фундамент – можно обойтись ленточным, расположенным только под стенами
- Двускатная крыша подойдет для регионов с большим количеством осадков. Она не будет скапливать влагу и защитит почву возле фундамента от размытия
- Шалаши хорошо вписываются в небольшой земельный участок. Они обладают компактными формами и дают возможность спроектировать красивый дом, не занимая большое пространство. Такие строения не дают большую тень, поэтому не мешают растениям, а треугольная крыша позволит разрастаться деревьям
Большое количество разновидностей конструкций и внутренних планировок дают большое пространство для воплощения идей и дают возможность создать дом, идеально соответствующий всем запросам его владельцев.
Недостатки и возможные трудности
Шалаш как дачный домик имеет минимум недостатков, но если приспосабливать его под место постоянного проживания, придется столкнуться со сложностями:
- низкая теплоизоляция и морозоустойчивость
- потеря полезной площади из-за сужения
- необходимость покупать нестандартные материалы
- небольшое количество готовых проектов планировки
В целом, минусы дома-шалаша можно компенсировать за счет качественной планировки.
Дом-шалаш – отличное оригинальное решение, которое будет хорошо смотреться в сочетании с любым ландшафтом. Он представляет из себя тихий уголок, располагающий к спокойствию и отдыху. Простота конструкции значительно облегчает строительство и экономит время и материалы, а результат удивляет своим видом и функциональностью.
Дом Шалаш по Каркасной Технологии / A-frame house / Дачный летний дом
Дом-шалаш (А-образный дом): проекты, размеры, обустройство планировки, достоинства и недостатки | (75+ Фото & Видео)+Отзывы
Детская площадка на даче своими руками: игровая, спортивная | (100 Оригинальных Фото Идей & Видео)
Плюсы дома в два уровня
Выстроить комфортный коттедж высотой в 2 этажа не так затратно, как думают люди, желающие обзавестись частным домом. Самый дешевый план – типовой. В него включены минимальные функциональные возможности строения и коммуникаций, которые расширяют в процессе строительства или по его окончании. Индивидуальный проект обойдется намного дороже, так как в него может входить все, что захочет заказчик, – бассейн, камин, павильон, оранжерея, антресольные этажи, и это возможно построить из самых дорогостоящих стройматериалов. Площадь особняка также не ограничивается – это может быть план в 100, 120, 150, 200 или 250 м2. Однако такие дизайн-проекты разрабатываются профессиональными бюро и стоят недешево.
Профессиональный чертеж коттеджа 9х10 м2
Главные достоинства современного кирпичного двухэтажного особняка:
- Оптимальное распределение площади и территории на участке. Если приусадебный надел совсем маленький, то хочется использовать его максимально рационально. А одноэтажный займет гораздо больше места, чем удачный удобный проект небольшого по габаритам двухэтажного особняка из пеноблока или газобетона. В этом варианте освободившуюся площадь пускают на обустройство сада со скамейками, беседкой и тандыром.
- Комфортность проживания на двух уровнях достигается за счет разделения жилой и общей площади на зоны. При таком распределении возможен и рабочий кабинет, и 2-3 спальных помещения, и комната для гостей, и столовая. Профессионалы предлагают размещать на 2-м этаже спальню и кабинет, а гостиную, помещение для приема пищи и ее приготовления следует оборудовать внизу. При подобном разделении в одном здании будут, не мешая друг другу, проживать 2-3 поколения семьи. Причем каждая возрастная группа сможет пользоваться своим режимом дня и реализовывать свои жизненные интересы.
Интерьер и зонирование площади двухэтажного особняка
Надежность и простота строительной конструкции. Строительство с небольшой сметой предполагает вместо второго этажа поднятие мансарды, но это в конечном счете не решает проблему удешевления проекта. Главные затраты при возведении мансарды – скошенная, а не плоская кровля, часто четырех- или многоскатная. Далее расходы распределяются так: утепление мансарды, прокладка инженерных коммуникаций, обеспечение безопасности конструкции. Поэтому при необходимости получить просторное и безопасное жилье лучше выбрать готовый двухэтажный проект дома из кирпича или разработать собственную планировку, где каждое помещение выполняет свои узконаправленные функции.
Правильная планировка двухэтажного дома – это соблюдение равновесия между расходами на составление проекта, рабочие процессы и общей площадью строения
Принимается во внимание и эстетика здания, и благоустроенность проживания и эксплуатации особняка, и объем собственного пространства членов семьи.
Оригинальный проект 8х8 м2
Индивидуальное проектирование
Зачастую клиентов не устраивает планировка частных домов в один этаж. В этом случае работники нашего бюро могут внести корректировки. Конечная их цена определяется количеством изменений и доработок.
При желании заказчика выполняется индивидуальное проектирование, включающее в себя разработку:
- эскиза (срок выполнения – от 3 до 10 дней) с последующим согласованием с заказчиком и доработкой согласно полученным замечаниям;
- архитектурно-строительной части (15 рабочих дней после одобрения эскиза).
В качестве дополнительной услуги проектируются инженерные сети и привязка к конкретным условиям земельного участка. Разработка ведётся в постоянном контакте с клиентом, что гарантирует соответствие итогового результата его запросам, вкусам и пожеланиям.
Двухэтажные дома 6х8 – преимущества и недостатки
Несмотря на популярность и более низкую стоимость мансардных домов, полноценные двухэтажные строения обладают целым рядом преимуществ. Проект является оптимальным вариантом как для маленькой, так и для большой семьи, исходя из ряда показателей:
- большая общая кубатура;
- экономия площади земельного участка;
- возможность установки больших окон;
- экономия средств за счет небольшой площади крыши и фундамента;
- использование чердака в качестве хозяйственного помещения;
- быстрота возведения постройки.
В проекте дома 6 на 8 двухэтажного типа может быть предусмотрен балкон, который станет прекрасным местом для отдыха и чаепития. Довольно выгодным будет планирование нескольких комнат, таких как кабинет, гардеробная, холл. Также часто встречаются проекты с верандой, подвалом или цокольным этажом. Для большего удобства делаются 2 входа – парадный и со двора.
Вариант планировки дома с мансардным этажомИсточник zen.yandex.ru
Идеи планировки двухэтажного дома
Определить конструкторские решения будущего коттеджа с первого раза удаётся не всегда. В большинстве случаев на это уходит много времени, так как разработка планировки двухэтажного дома имеет много особенностей, которые должны учитываться с предпочтениями каждого проживающего. Сделать это можно самостоятельно или обратиться к услугам специалистов. В качестве примера представляем несколько оригинальных идей.
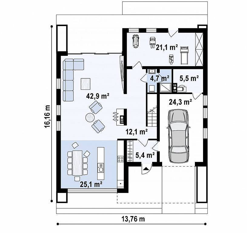
Проект № 1
- Общая площадь: 170,7 м2.
- Жилая площадь: 70 м2.
- Площадь первого этажа: 92 м».
- Площадь второго этажа: 17,7 м2.
- Размер дома: 9,9*15,5 м.
Проект двухэтажного дома площадью более 150 м2Источник innstroy.ru
Лаконичный коттедж эконом-класса, укомплектованный всем необходимым для комфортного проживания семьи из четырёх человек. Планировка первого этажа показывает наличие просторной гостиной, расположенной в заднем крыле дома. Помещение объединено с кухонной рабочей зоной и столовой. Строгая прямоугольная форма станет причиной зонирования большого зала на несколько частей. Делать это придётся внутренними элементами отделки (обоями, кафелем, мебелью). Небольшое пространство совмещённого санузла (4,4 м2) станет проблемой для монтажа ванной. Владелец будет вынужден решать между душевой кабинкой или уголком.
Проблема первого этажа решается благодаря увеличившемуся санузлу на втором. На 5,8 м2 уже удастся разместить небольшую ванную и остальную сантехнику. Оригинальным может показаться решение второго кабинета с аналогичными характеристиками. Вы скажете, – «Для чего на втором этаже 2 туалета!». Ответ очевиден – дети. Они растут по одному принципу: захотел один, побежал и второй. Поэтому на данном примере планировки эта проблема устранена.
3 спальни могут использоваться для членов семьи, оставшаяся внизу – в качестве гостевой. Бросающимся в глаза недостатком является отсутствие кладовой или гардеробной.
Проект № 2
Проект двухэтажного дома площадью более 150 м2Источник www.faulaconstruction.com
Проект первого этажа дома площадью более 200 м2Источник drevkostroy.ru
- Общая площадь: 236,38 м2.
- Жилая площадь:212,69 м2.
- Площадь первого этажа: 141,4 м2.
- Площадь второго этажа: 95,3 м2.
Оригинальный, а самое главное – стильный и современный дом, относящийся к стилю хай-тек. Огромные, во всю стену, панорамные окна, зал для занятия тяжёлой атлетикой или фитнесом на первом этаже. Преимущества планировки двухэтажного дома в следующем:
- Наличие просторной общей зоны, образованной объединением гостиной, столовой и кухни.
- Дополнение первого этажа спортзалом.
- Классная веранда на втором.
- Сближающие с природой панорамные окна, через которые отлично просматривается ухоженный ландшафт участка.
- Отдельный вход в санузел из главной спальной второго этажа.
Такая планировка нацелена на людей, предпочитающих современный стиль, спортивный образ жизни и не принимающих старую добрую классику.
Проект № 3
Проект двухэтажного дома площадью более 250 м2Источник demo2.sbsite.ru
- Общая площадь: 287,8 м2.
- Жилая площадь: 95 м2.
- Площадь первого этажа: 118,7 м2.
- Площадь второго этажа: 111 м2.
Дом в классическом стиле с отдельной котельной, поделённой кухней, раздельным санузлом, большой террасой и спальней на первом этаже. Последнюю, при необходимости, можно использовать как гостевую. Благодаря наличию всего этого, планировка предстаёт в индивидуальном стиле и подойдёт для утончённых, любящих оригинальность людей.
Уникальность и отличие заканчиваются после подъёма по лестнице. Второй этаж коттеджа предстаёт в стандартном виде:
- Несколько спален.
- Санузел.
- Гардеробная.
Проект № 4
Проект двухэтажного дома площадью 182 м2Источник myhome.nifty.com
- Общая площадь: 182,1 м2.
- Жилая площадь: 53 м2.
- Площадь первого этажа: 95,9 м2.
- Площадь второго этажа: 87,2 м2.
Дом со вторым этажом мансардного типа, построенный в стиле шале. Планировка просторного первого этажа полностью отдана под так называемые нежилые помещения и гостиную, площадью 26,78 м2. На входе гостей встречает небольшая прихожая с дверью в кладовую, чуть дальше санузел и рабочий кабинет главы семейства. В отсутствии необходимости такого помещения допускается перепланировка под другие цели, например, детская игровая комната, просторная гардеробная или что-то иное.
Хотя кухня и гостиная размещены в одном большом зале, разделение происходит благодаря зонированию внутренней отделкой и небольшому «притоплению» в заднее крыло дома. Здесь же выход на террасу.
Второй этаж дома спроектирован по классическому принципу: 3 спальни, коридор с лестницей в центре и просторный санузел.
Выбор материала
Стены для проекта 6х8 можно возводить из следующих материалов:
- Кирпич. Прочный и долговечный материал. Устойчив к пожарам, низким температурам, шуму. Понадобится утепление и отделка. Для утепления подойдет пенопласт, теплая штукатурка, минеральная вата.
- Строительные блоки. Недорогой выбор в сравнении с кирпичом. Обладает хорошей теплоизоляцией. Здание из пеноблоков может иметь три этажа. Возведение такого коттеджа проходит достаточно быстро. Постройка из пеноблоков не требует отделки. Газобетон устойчив к биологическому воздействию. Плесень, бактерии и грибки не появляются у газоблоков даже при высокой влажности и температуре. Строение из газосиликата будет прочнее, но обойдется дороже. Керамзитобетон больше подходит для возведения несущих стен;
- Дерево. Распространенный материал, которому отдают предпочтение за экологичность, сохранение тепла, экономичность. В доме из бревна 6х8 будет очень уютно. Деревянный дом прочный, обладает низким уровнем теплопроводности. Коттедж из сруба «дышит», благодаря чему образуется оптимальный климат в комнатах. Из клееного бруса часто возводят мансарды;
- Каркас из ЛСТК и дерева. Основные достоинства – это экономичность, простота монтажа, легкость конструкции, позволяющая использовать облегченный фундамент. Особенно если планируется одноэтажный каркасный дом 6х8. Такие здания не дают усадку, обладают хорошими теплоизоляционными характеристиками. Возводить их можно при любой погоде. Себестоимость каркасного дома при привлечении работников – 15 тыс. руб. за кв. м, постройке своими силами – 9 тыс. руб. Каркасно-щитовой проект создается из крупных панелей – щитов.
Перечисленные материалы имеют свои достоинства, позволяющие построить комфортный, удобный и эргономичный коттедж. Его строят для постоянного проживания или для дачного отдыха. В качестве кровельного материала лучше выбирать металлочерепицу. Она долго прослужит при любых погодных условиях.
Способы определения высоты 9 этажного здания
Конечно, вычислить высоту дома, в котором 9 этажей, проще всего по формуле. Основная позиция в ней — это высота каждого этажа. Стоит понимать, что здание состоит не только из блоков квартир, но и других конструктивных элементов, которые тоже учитываются при определении высоты многоэтажного дома.
Реальная высота этажа
Реальная высота этажа в любом доме — расстояние от точки пола в одной квартире до точки пола в квартире выше. Отметим, что определенного стандарта, который содержался бы в СНиП или ГОСТе просто нет.
При определении высоты дома в 9 этажей важно не путать этот показатель с высотой потолков. Последнее — это расстояние от точки пола в квартире до точки, расположенной на потолке. Интересно, что высота потолков в домах обычно зависел от того материала, из которого они были построены:
Интересно, что высота потолков в домах обычно зависел от того материала, из которого они были построены:
- панельный — от 2,5 до 2,8 метра;
- кирпич — от 2,9 до 3 метров;
- монолит — от 2,9 до 3,3 метра.
Если нет точной информации (указанной в проекте), можно взять для расчетов показатель в 3 метра. То есть высота 9 этажей будет составлять средние 27 метров. Но не самого дома. Для определения этого параметра понадобится выяснить дополнительные величины — фундамент, цоколь, крыша.
Фундамент и крыша
Естественно, дом не стоит на голой земле. У каждого строения есть фундамент, высота которого зависит от характеристик грунта, строительной площадки, количества этажей и подъездов. Для 9 этажей обустраивается мощный фундамент, способный выдержать массу в 15-20 тонн (на один подъезд). Для обустройства фундамента выкапывается котлован, забиваются сваи, но все эти элементы находятся под слоем грунта и не выступают над землей. Следовательно, в расчетах высота дома в 9 этажей основание не учитывается.
Что касается крыши, то практически на всех 9-этажках они плоские и имеют дополнительные ограждения для безопасности (не учитываются). Сама крыша не добавляет метров, а вот технические помещения или этажи придется учесть.
9 этажей — строение, которое должно быть оборудовано лифтом — это требование СНиП и ГОСТ. В таком техническом помещении обустраивается ниша для двигателей, к которым должен иметь доступ персонал для обслуживания и ремонта.
Высота цокольного этажа
А вот что обязательно подлежит учету при вычислении высоты дома в 9 этажей — цоколь. Это помещение, которое частично находится в грунте, но выступает над поверхностью земли. Как правило, там располагаются помещения общественного назначения, частные бизнесы.
Среднее значение цоколя, которое нужно учесть при расчетах — метр.
Индексы и цифровые обозначения
Первые панельные 9-этажки быстро распространились по стране. Первые удачно реализованные проекты привели к тому, что была разработана документация с унифицированными требованиями к таким жилым строениям.
Вся информация о таком дома содержится в индексах и цифрах. По ним можно “прочесть” — из какого материала возведен дом, указание на особенности климата и грунта, этажность и другие важные позиции.
Перечень основных элементов лестницы
Самыми значимыми деталями каждой лестницы между этажами являются их ступени и опоры, на которых они держатся. Балки, поддерживающие ступени с боков и снизу, именуют тетивами. Те же балки, которые только снизу держат ступени, называют косоуры. Если косоура три, то средний будет именоваться промежуточным.
Лестница на второй этаж.
Сами ступени состоят из так называемой проступи (это та горизонтальная поверхность, на которую ступает нога человека) и подступенка (вертикальная деталь). В конструкции некоторых лестниц подступенки могут отсутствовать вовсе.
В качестве поддерживающих элементов выступают больцы и стойки. Первые представляют собой специальные болты, вмонтированные в стену. На них крепят ступени лестницы. Стойка является основным поддерживающим элементом для любой спиральной лестницы.
Одномаршевая лестница.
Собранные в единое конструктивное сооружение, ступени с балками – это лестничные марши. Он предназначен для подъема с низшего уровня на высший. Если в конструкции лестницы предусмотрено более одного марша, то между ними устраивают площадку, которая служит для перехода между маршами, направленными в разные стороны.
Лестница в современном стиле.
Важными и значимыми деталями лестниц служат перила, хотя они не всегда применяются. Это же касается поручней, ограждений, обшивочных и отделочных деталей. Иногда бывают дополнительные детали ограждений в виде стальных прутьев и стоек. Перила имеют опоры из балясин. Ими называют вертикальные лестничные элементы, которые являются не только стойками для перил, но и украшениями.
Торцы ступеней выполняют роль кухонных полок.
Особенности деревянных коттеджей
Дерево — это традиционный материал, используемый для возведения загородных домов. Оно является натуральных, экологически чистым и безопасным, а также обладает превосходными эксплуатационными характеристиками. Помимо этого, данный материал превосходно сохраняет тепло, что позволяет неплохо экономить на отоплении жилья.
Деревянные коттеджи смотрятся очень привлекательно, поэтому внутреннее пространство комнат можно никак не отделывать. Чаще всего люди предпочитают оставлять комнаты в первозданном виде, поскольку так они смотрятся натурально и наполнены особой атмосферой и домашним уютом.
Помимо натуральности, древесина обладает небольшим весом, поэтому при строительстве зданий не нужно укреплять фундамент. Хватает даже обычного лестничного не слишком заглубленного основания. Что касается строительных материалов, то чаще всего используют бревно и цельный или клееный брус.






























