Из старого холодильника
Многие дачники предпочитают не избавляться от старой нерабочей техники, а отвозить ее на дачу. Если избавить нерабочий холодильник от электрической начинки и прочих «внутренностей», то оставшуюся коробку можно превратить в удобную и вместительную коптильню.

В крыше необходимо проделать отверстие небольшого размера для будущего дымохода. Внутри коробки же на разных уровнях следует установить попарно шесть уголков, на которых впоследствии будут располагаться решетки для поддона и продуктов и крюки для копчения, а также поддон для стекающего с продуктов жира. Кроме поддона для жира, понадобится еще и поддон для опилок или стружки; он устанавливается в самом низу конструкции.
Преимущества коптильни с гидрозатвором
Коптильня с гидрозатвором максимально адаптирована для использования в пространстве квартиры. Конструкция данного типа обеспечивает попадание дыма в специальный дымоходный шланг. Водяной затвор герметизирует крышку, не давая кислороду проникнуть внутрь рабочей среды. Соответственно, воспламенение стружки исключается.

Обычно при изготовлении коптильни с гидрозатвором находит применение антикоррозийная сталь толщиной 1,5 мм. Нержавейка обладает свойствами, позволяющими изготавливать механизмы различной сложности. Они устойчивы к формированию ржавчины, имеют эстетичный внешний вид. Ухаживать за ними несложно. Любые стандартные рецепты можно претворять в жизнь, используя данные устройства. Нагар не образуется благодаря стенкам изделия из нержавеющей стали.
Изготовление горячей коптильни разными способами
В продаже есть масса конструкций, но все она стоят достаточно дорого. Желающие сэкономить могут каптилку сделать сами. Для этого есть множество дельных рекомендаций специалистов. Сам процесс изготовления уже интересен и занимателен. А еда из самодельного устройства для окуривания мяса и рыбы всегда вкусная и сочная. Материал – металл, но профиль может быть самым разнообразным. Можно даже говорить, что для горячего копчения пригодятся подручные средства, которые всегда найдутся в чулане, сарае или гараже.
Из бочки или ведра
Отличный вариант – коптильня для рыбы из железной бочки. Такое решение самое простое. Необходимо всего лишь обрезать днище и вмонтировать решетку или пару арматурных прута. Желательно, чтобы они размещались на двух уровнях. Под низ укладывается поддон. Потребуются крюки, за которые подвешиваются продукты. Их изготавливают из катанки, которую придется согнуть в форме буквы S. В качестве общей камеры подойдет даже обычное ведро. В него монтируют решетки из металла.
Важно их правильно разместить. Одна устанавливается на высоте 10 см над уровнем дна
Другая – на 5 см. выше первой. На дно засыпают до 2,5 см. щепы. Ее заблаговременно замачивают в воде. На решетку укладывают рыбу, мясо, сало, овощи. Главное, чтобы ведро было с крышкой. «Заряженную» коптильню горячего копчения достаточно поставить на огонь. На все уйдет порядка 15 минут. Нужно приметить, как только из-под крышки пойдет густой дым. Тогда коптильную камеру снимают с очага и оставляют остывать закрытой. Такое устройство можно оставлять на даче или брать с собой на пикники.
Помните, что в этом случае придется работать с горячим железом, и можно получить ожог. В зоне риска остаются дети. Поэтому если изготовить коптильню, придется следить, чтобы они не приближались к огню и к ящику, пока он горячий. Техника пожарной безопасности важна на всех этапах, тем более, что в данном случае схема коптильни предполагает наличие открытого пламени. Позаботьтесь и о соседях. Густой дым может показаться едким, особенно, если за забором живет астматик. Выбирайте место для костра правильно.
Из старого холодильника
У многих на даче или в гараже хранится старая кухонная техника. Чаще всего холодильники используются в качестве шкафа для хранения всяких мелочей. Но если вы задумались, как сделать коптильню горячего копчения, обязательно рассмотрите такое вариант. Придется найти барахлу новое место. Камеру вымойте. В качестве решеток для копчения используйте полки, которые также нужно отчистить. В «потолке» делают отверстие, куда будет выходить дым. Можно приделать дымоход.
Чтобы пользоваться крюками для подвешивания продуктов, необходимо на стенки прикрепить уголки, а к ним железные пруты. И даже если холодильник имеет вертикальную загрузку, достаточно установить их на разном уровне от днища. По размерам камеры делают поддон. Подойдет противень из старой духовки. Еще один понадобится для загрузки щепы. Для копчения потребуется электроплитка, на которую ставят поддон с опилками. Теперь плотно закройте дверцу и включите печь.
Из нержавеющей стали
Потребуется сплав, неподдающийся коррозии. Нержавейка – отличный выбор. Внешне конструкция представляет собой короб с крышкой. Как изготовить такую коптилку в домашних условиях, смотрите на видео. Потребуется инструмент и навыки в металлообработке. Но здесь нет ничего сложного. Единственное, что может стать причиной отказа от этого способа – необходимость использовать сварочный аппарат. Но если ваш гараж находится в кооперативе, всегда найдется тот, у кого он есть.
Внутри короба делают два уровня. Решетки для коптильни также изготавливаются своими руками. Часто такую конструкцию изготавливают любители туризма. Дела с том, что размер может быть компактным, а значит, ее можно взять с собой в поход или поездку. И если даже вы забыли взять с собой щепу, стружку можно найти в любой роще. Главное, замочите ее на несколько часов, а лучше на ночь. Засыпьте опилки, загрузите еду, поставьте коптильню на огонь. Подождите появления густых клубов дыма. Уже через 20 минут первая партия продукта будет готова.
Из кирпича
Это стационарное сооружение. Конструкция может быть самой разнообразной. Часто при изготовлении коптильни думают о том, чтобы она стала украшением приусадебного участка. Делают две камеры. В одной горят дрова, в другой тлеют опилки и находится, скажем, рыба. Имеет смысл рационально использовать огонь, для чего встраивают печку. Дымоотвод необходим в любом случае. Сложность заключена в необходимости вести кладочные работы. Без соответствующего навыка это сделать сложно. Зато можно построить коптильню холодного копчения и горячего по принципу «два в одном».
Коптильня шахтная или вертикальная
Это конструкция не требует под себя какого-то особенного места (ни по площади, ни по иным критериям). Она проста и нетрудоемка. Визуально представляет из себя некий шалаш конической формы, внутри которого на определенной высоте подвешены куски рыбы или мяса. Внизу сооружения горит очаг, и поддерживается температура + 25° С, а также влажность в 65%.
Наряду с достоинствами, вертикальная (шахтная) коптильня обладает рядом достаточно серьезных недостатков. Она:
- не допускает полной готовности продукта методом окуривания;
- делает невозможным копчение сразу 2-мя способами;
- позволяет регулировать дымообразование лишь на очень ограниченной площади;
- затрудняет оседание вредных компонентов коптильного дыма;
- допускает распространение вредной «кислой зоны» на коптящиеся продукты, делая их более токсичными;
- не препятствует нарастанию вредных ПАУ (полициклических ароматических углеводородов) при превышении температуры и влажности поступающего воздуха.
Самодельный дымогенератор для коптильни
Если на участке нет возможности разместить полноценную топку и длинный дымовой канал, для получения дыма пригодится дымогенератор. Это компактное устройство не требует много места, а изготовить конструкцию можно из подручных средств — старого огнетушителя, консервной банки, отрезка трубы большого диаметра. Еще понадобятся более тонкие трубки для дымохода, компрессор (можно аквариумный), штуцер, емкость для сбора конденсата.
Простейший дымогенератор состоит из элементов:
- корпус, где происходит тление щепы без доступа воздуха;
- дымовая труба;
- система охлаждения.
Супер аппарат
В нижней части емкости размещается колосник для щепы, пространство под ним используется для накопления золы. Доступ нужного для горения воздуха осуществляется через нижнее отверстие с заслонкой.
Устройство дымогенератора
Посредством патрубка устройство присоединяется к дымопроводу. Для регулирования подачи дыма предусматривается эжектор в виде подвижной трубки, вставленной в патрубок.
Виды дымогенератора
Опилки укладывают в емкость и разжигают через нижний клапан. Дым, проходя по трубке, частично очищается и подается в коптильную камеру. Движение газов активизируется с помощью компрессора.
Весь процесс
Конструкция в деталях
Планируя холодное копчение в домашних условиях, важно детально разобраться в конструкции коптильни. Ниже предложен вариант чертежей коптильни холодного копчения своими руками (без указания материалов, конструкция подходит как для деревянной, так и металлической камеры)
Ниже предложен вариант чертежей коптильни холодного копчения своими руками (без указания материалов, конструкция подходит как для деревянной, так и металлической камеры).
В этом варианте устройства коптильный канал выполнен как короб, а не труба. Для него можно использовать доски с обязательной герметизацией, металлические листы или кирпич.
Поэтапное выполнение работ
- Подготовка основания. Выбирается грунт на глубину 60…80 мм. Размеры углубления должны быть не менее 50х50 см, габариты зависят от требуемой производительности дымогенератора. Для камеры объемом 100…150 литров достаточно топки 60х60х80 см, для большего объема размеры рассчитываются индивидуально. Также подготавливается место для закладки дымового канала и камеры копчения: выбирается полоса грунта на 20…30% шире планируемого сечения канала и прямоугольник (окружность) размерами на 20…30% больше габаритов камеры. Устраивается подушка из щебня с фракцией 20…40 мм толщиной 5…7 см поверх песчаной утрамбованной подушки толщиной 2..3 см. Для слабых грунтов и высоко стоящих грунтовых вод можно дополнительно «пролить» подушку слабым цементным раствором по технологии, описанной в тематической статье.
- Заливка основания топки армированным бетоном (необязательно). Если дымовой канал выполнен из трубы, необходимо уложить ее до заливки бетона.
- Кладка топки огнеупорным кирпичом (если планируется использовать дрова) или монтаж самодельного либо промышленного дымогенератора.
- Устройство дымового канала. Если используется труба, ее фиксируют кирпичами, блоками или бетонной стяжкой. Помимо сохранения нужного положения, такая мера позволяет ускорить охлаждение дыма. При выкладке канала кирпичом или досками требуется обязательная герметизация природными герметиками.
- Установка коптильной камеры. Эта часть конструкции должна быть герметичной, иметь дымоход и дверку для размещения продуктов и их извлечения. Дополнительно устраивают полки или подвесы в один или несколько ярусов, внизу монтируют поддон для стока жира с копченостей. Для удобства к камере можно пристроить навес, где в дальнейшем будут храниться дрова.
- Устройство крышки над топкой.
Важно: перед тем, как сделать коптильню холодного копчения, необходимо убедиться – дым не будет беспокоить жильцов и соседей. Для этого следует изучить преобладающие направления ветра, учесть особенности рельефа и погодные условия.. Устраивая поддон в нижней части коптильной камеры, важно не перекрыть полностью выход дыма из дымового канала и при этом сделать стенки камеры максимально плотными и не проводящими тепло
Устраивая поддон в нижней части коптильной камеры, важно не перекрыть полностью выход дыма из дымового канала и при этом сделать стенки камеры максимально плотными и не проводящими тепло
Схема коптильни холодного копчения из бочки или холодильника своими руками отличается только конструкцией коптильной камеры – остальные детали сохраняют свое назначение и размеры.
Принципы сборки такого устройства рассмотрены в видео-ролике.
Удобно присутствие в холодильнике решетчатых полок, на которых можно расположить продукты для копчения, сомнение вызывает пластиковая отделка внутри. Лучший вариант холодильника для домашнего копчения – старый типа ЗиЛ, с металлическими внутри стенками. Можно обшить корпус изнутри деревянными планками.
Устройство коптильни из бочки еще проще – в качестве камеры для обработки продуктов используется металлическая или деревянная бочка с вырезанной в боковой поверхности дверкой или съемной крышкой. Полки и ярусы подвесов выполняются так же, как для деревянной или кирпичной камеры.
Расположить бочку можно вертикально и горизонтально.
Промышленная мини-коптильня
Покупная мобильная коптильня – самое простое решение для приобретения коптильного оборудования. Отличным выбором будет служить коптильня «Тонар».
Само изделие имеет небольшие размеры своего стального корпуса (28x38x17 см.), приемлемый для перевозки вес (~ 7 кг.) и вполне подходит как походный вариант. Примечательно, что такая переносная двухъярусная коптильня стоит относительно недорого и вполне доступна многим. При желании можно найти и более дешевые аналоги, например, коптильни изготовителя СевЗапУголь.
Кстати, для небольшой семьи будет совершенно оправдано использование самой миниатюрной версии походной коптильни
Ее размеры совсем минимальны и равны (21x34x16 см.), а вес составляет чуть более 2-х килограммов. Тем не менее, эта выполненная из нержавейки конструкция полностью укомплектована необходимыми принадлежностями: решеткой, крышкой, поддоном и так далее.
Как сделать коптильню горячего копчения с гидрозатвором
Такое устройство необязательно покупать готовое. Изготавливается коптильня для рыбы своими руками из листовой нержавеющей стали при помощи электросварки.
Для изготовления коптильни размером 300х500х300мм необходимы прямоугольники из пищевой нержавейки:
- дно — 300х500мм;
- 2 стенки — 300х300мм;
- 2 стенки — 300х500мм;
- для крышки — 360х560мм;
- для поддона для жира — 300х500мм;
- лента или полоса из нержавейки шириной 30мм и длиной 1720мм для гидрозатвора;
- нержавеющие прутки для решёток и ручек.
Сборка производится при помощи электросварки:
- к дну привариваются по схеме боковые и передняя и задняя стенки;
- в заготовке для крышки вырезаются уголки 20х20мм;
- края крышки загибаются, а углы провариваются;
- в заготовке для поддона вырезаются углы 25х25мм;
- поддон собирается аналогично крышке;
- от полосы отрезаются 2 куска длиной 330мм и 2 куска длиной 530мм;
- отрезки полосы сгибаются вдоль посередине;
- уголки привариваются к верхнему краю стенок снаружи на расстоянии 15 мм от края, как показано на чертеже;
- из нержавеющих прутков изготавливаются решётки и подставка для них и для поддона;
- из тех же прутьев делаются боковые ручки для корпуса и верхняя для крышки.

Необходимые инструменты и материалы
Необходимые материалы:
- листовая сталь, толщиной не менее чем 1,5 миллиметра (для изготовления короба, крышки, желоба);
- металлическая решётка;
- подставка и маслосборник;
- воздушный клапан обратного хода (регулируемый), гибкий шланг (выдерживающий воздействие высокой температуры).

Для боковых стенок и крышки можно использовать листовую сталь в 0,8-1,2 мм. Для дна лучше брать не меньше 2 мм (оптимально 3 мм), чтобы даже при сильном нагреве не было деформаций.
Из инструментов же понадобятся:
- сварочный аппарат (и электроды, пригодные для варки листовой стали выбранной толщины);
- болгарка (с диском для резки металла и для его шлифовки);
- дрель со ступенчатым сверлом по металлу (если планируется ставить клапан и шланг для отвода дыма);
- молоток.
Коптильня с мангалом из кирпича
Работа над созданием такой конструкции довольно трудоёмкая. Но это того стоит, и ею можно будет пользоваться долгие годы.
Для начала требуется подобрать соответствующее место на участке, при этом не нужно забывать о безопасности. Она должна располагаться далеко от предметов, которые могут легко воспламениться. Для удобного использования такой конструкции к ней можно подвести воду и канализацию, но это не является обязательным условием.
Можно обойтись и без бетономешалки, но если она есть, то это только ускорит процесс постройки. Для начала требуется расчистить место и подготовить фундамент. После этого поочерёдно выкладываются все слои кирпича. В целом такая конструкция строится по принципу уличной печки для дачи. Решётку следует устанавливать на вертикальный котлован из кирпича, а для облегчения крепления необходимо при сооружении выдвинуть внутрь несколько кирпичей, собственно на которые и будет монтироваться решётка.
Принцип работы коптильни

Чертёж самодельной коптильни
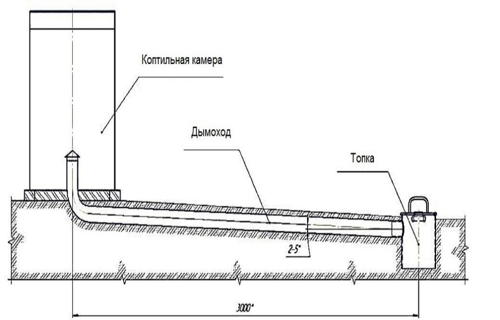
Процесс копчения производится благодаря тлению древесной щепы. Конструкция всех узлов подобного сооружения всячески способствуют процессу тления и выделения дыма. В состав коптильни входят три компонента:
- топка, в которой осуществляется сжигание щепы
- дымоход, выполняющий функцию доставки дыма и нагретого воздуха к месту копчения
- коптильной камеры – специальному пространству, в котором непосредственно и осуществляется процесс копчения
Копчение происходит следующим образом: в топке нагревается древесная щепа и начинает тлеть. Дым от тления по дымоходу поступает в плотно закрытую коптильную камеру, где воздействует на продукт – мясо или рыбу.

Коптильня на даче с основанием из кирпича
Отдельно следует поговорить о таком узле коптильни, как дымоход. Несмотря на кажущуюся простоту, это один из самых важных узлов всей системы. Именно он и выполняет помимо основной (доставки дыма к мясу) ещё четыре важных функции:
- Производит предварительное уменьшение температуры дыма до значений, допустимых при холодном копчении
- Способствует выпадению в осадок вредных веществ (в первую очередь, не окончательно сгоревших сложных углеводородов), что является гарантией хорошего вкуса и аромата получаемых продуктов
- Фильтрует в трубочном конденсате самые неприятные из несгоревших продуктов вещества – канцерогены
- Не позволяет угарному газу добраться до продуктов

Пример организации коптильни из бочки
Последнее обстоятельство очень важно, поскольку с точки зрения химии оксид углерода (он же угарный газ) является одним из самых активных веществ и может вызывать отравление, кроме того, пища, обработанная им, фактически получает химический ожог и её вкус становится не слишком приятным.
Для выполнения всех перечисленных функций длина дымохода должна быть достаточной. В зависимости от производительности коптильни, дымоход может иметь длину от 3 до 10 м.
Забор: основные виды, из дерева, кирпича, профлиста, пластика, рабицы, бетона. Инструкции по возведению своими руками (105+ Фото & Видео) +Отзывы
Как сделать коптильню своими руками
При наличии необходимого материала, инструментов для резки и сварки металла не сложно коптильню с гидрозатвором изготовить самостоятельно. Наша фотоинструкция вам в помощь.
Прежде всего, подберите несколько листов стали толщиной 0,8 – 1 мм. Лучше подобрать коррозионностойкую нержавейку, но вполне сгодится и черная. Пользуясь предложенными размерами, выполните разметку заготовок корпуса и крышки. Размеры указаны с учетом толщины металла в одни миллиметр.
Из того же материала разметьте детали гидрозатвора, решетки и поддона. Как видно из чертежа, размер гидрозатвора предполагается сделать 25 мм в сечении.
Для раскроя стальных листов на отдельные части лучше воспользоваться болгаркой. Можно, конечно, и зубилом вырубить, но в этом случае времени на изготовление потребуется раз в 10 больше. Да и края полученных деталей потребуют значительной дополнительной механической обработки.
Подготовленные и тщательно обработанные по кромкам детали свариваем в отдельные элементы сборной конструкции. Начинаем с корпуса коптильни.
При работе тщательно контролируем прямоугольность стыков боковых стенок между собой и с дном.
Видео по теме
Видео о самостоятельном
изговлении коптильни
Швы должны быть сплошными и полностью герметичными. Излишки металла на углах можно снять той же болгаркой. Если не удалось подобрать уголок необходимого размера, сварите его из отдельных полос, сначала прихватив в нескольких местах, а затем аккуратно проварив по всей длине. Следите за тем, чтобы профиль не повело по длине. Пользуйтесь прямоугольной оправкой достаточной длины. Подготовленные уголки привариваем по всей длине корпуса так, чтобы гидрозатвор располагался ниже уровня верхней кромки корпуса примерно на 0.5 — 1 см.
Тщательно проверяем герметичность швов самого уголка, а так же стыка уголка с корпусом. В готовый гидрозатвор можно залить необходимое количество воды и испытать его.
Следующий элемент – крышка коптильни. Как следует из чертежа, она имеет двускатную форму. Это обеспечит лучший отвод дыма, который, поднимаясь вверх, будет собираться у дымоотвода и удаляться в атмосферу.
Не забудьте вварить ближе к коньку трубчатый отводок для крепления дымоотводящего шланга. Для этого просверлите отверстие по диаметру найденной трубки, установите ее, углубив на 3-5 мм, и обварите по кругу.
Поддон так же собираем из нескольких частей. На дне снизу ввариваем 4 ножки высотой 3 см. Внутри поддона устанавливаем и закрепляем сварным швом пару П-образных рукояток, что облегчит удаление емкости для ее очистки.
Последние обязательные части коптильни – решетки. При обработке небольшого объема продуктов подойдет «одноэтажный» вариант. Ее удобно сварить из трех продольных полос и двух поперечных, а так же нескольких десятков равновеликих отрезков стальных трубочек (можно взять отчищенные электроды) или стержней диаметром 5-7 мм.
В том случае, когда вы хотите порадовать вкусными деликатесами своих близких и знакомых, лучше воспользоваться двухъярусной решеткой. Конечно, материала на ее изготовление потребуется в 2 раза больше, но и расход щепы и газа на обработку продуктов снизится.
Противень для сбора жира
Его изготавливают таким же способом, как и крышку. Правда, он должен помещаться в середину коптильной камеры. Для его изготовления хватит листа стали с размерами 52х32 см. При этом 2 см. со всех сторон надо выгнуть вверх. Эти загнутые кромки образуют бортик противня.
Согласно разным видео, снизу следует приварить 4 ножки. Для этого вырезают 4 полоски металла шириной и длиной 1 и 10 см., соответственно. Эти полоски сгибают посередине. Далее 1 см. каждого конца образованного угла выгибают в противоположную сторону. Оба конца должны быть изогнутыми так, чтобы образовали одну прямую линию. Эти концы нужно приварить к противню.
Сверху противня следует приварить ручку. Ее можно сделать из полоски металла. Размеры 1х20 см. Конечно, процесс создания ручки можно увидеть во множестве видео.
Совет: чтобы не пачкать противень жиром, перед копчением на него стоит положить сплошную алюминиевую фольгу. После использования домашней коптильни фольгу вместе с жиром аккуратно снимают и выбрасывают. Противень остается чистым.
Принцип работы
Компактные по размерам коптильни многофункциональны в работе. Их можно использовать не только в помещении, но и на открытом воздухе. Под воздействием высокой температуры под днищем рабочей камеры древесные опилки начинают тлеть, выделяя горячий и густой дым. Таким образом, домашняя продукция одновременно подвергается дымовой и термической обработке. Для обеспечения непрерывности процесса необходимо поддерживать постоянную температуру горения огня. Нельзя допускать, чтобы вода в желобе полностью выкипела. Это может привести к нарушению герметичности конструкции и утечкам дыма. Работающий водяной затвор обеспечивает комфорт в жилом помещении. Система позволяет избежать проникновения резких запахов приготавливаемой пищи в воздух.
Способы нагрева коптилки с гидрозатвором
Для работы можно использовать любой источник тепла, но эксплуатировать такую установку на костре или открытом огне не целесообразно. В этих случаях целесообразнее использовать мангал 3 в 1 мангал коптильня.
Такие устройства предназначены в первую очередь для закрытых помещений, где основными источниками тепла являются газовые и электроплиты.
Нагрев коптильни на газовой плите
Самым распространённым способом нагрева является газовая плита. В помещении, в котором она устанавливается обязательно есть вентиляционный канал или вытяжка, помогающие удалить из кухни дым, образующийся при работе:
- дымоотводящий шланг вставляется в вентканал или привязывается к вытяжке;
- под коптилкой зажигается огонь;
- после достижения необходимой температуры пламя уменьшается до минимума и поддерживается в течение всего времени приготовления.
Нагрев коптилки на электроплите
Более продвинутый способ нагрева в домашних условиях заключается в использовании электроплиты, желательно одноконфорочной электроплитки. В этом случае, если в крышку коптильни установить не обычный градусник, а термодатчик, есть возможность собрать систему, которая будет поддерживать необходимую температуру автоматически.
Как сделать самодельную коптильню для рыбы из кирпича
Любой дачник мечтает соорудить на участке мангальную зону. Стационарная многофункциональная печь способна объединить большую семью в выходные на отдыхе. Этапы возведения коптильни для рыбы из кирпича:
- Выбирают участок. Укладывают металлический защитный лист-основание. Накрывают рубероидом для защиты от влаги. Из жаропрочного кирпича сооружают фундамент.
Щели замазывают глиняным раствором - Монтируют дверцу для зольника.
Оставляют сборник для золы высотой 10 см - Закрывают ряд и устанавливают колосниковую решетку.
Колосниковую решетку можно изготовить самостоятельно из арматуры сечением 1 см - Возводят 5-6 рядов топки, устанавливают дверцу.
Поверх топочной камеры устилают металлический лист, в центре вырезают отверстие для прохождения горячего воздуха - Изготавливают шкаф для горячего копчения рыбы. Место для двери укрепляют металлическим уголком.
Устанавливают дверцу и декорируют конструкцию
Дверь может быть изготовлена из дерева или металла. Коптильная камера неогнеопасна.

Внутри устанавливают решетки и крепят крюки для подвешивания
Зачем нужен гидрозатвор в коптильне
Во время копчения небольшие коптилки устанавливаются на газовую или электроплиту. Огонь нагревает дно, на которое насыпаны опилки, при этом из них выделяется дым, который поступает к продуктам.
Однако образование дыма происходит в течение всего процесса копчения, при этом внутри корпуса поднимается давление и дым выходит наружу. В результате в помещении появляется запах дыма, а копоть оседает на стенках кухни.
Для предотвращения этой ситуации необходимо герметизировать корпус коптилки, а дым выводить в форточку или вентиляционный канал по дымоотводящей трубке. Самым простым способом выполнить эту операцию является использовать гидрозатвор.
В таких аппаратах крышка имеет вид корыта с загнутыми краями высотой 10-15мм, а в верхней части корпуса находится канавка, в которую наливается вода. При работе дым не может пройти через воду и выходит из коптильни по дымоотводящему каналу.
Особенности копчения и блюд

В наше время проблем с хранением продуктов не возникает ни у кого, так как то, что осталось, всегда можно заморозить или законсервировать. Однако в давние времена копчение было одним из основных видов приготовления пищи, которая предназначалась для длительного хранения. Такая обработка позволяла заготавливать впрок мясо и рыбу.
Сейчас коптят не только их: очень популярными стали копченые сыры, фрукты, овощи, орехи. Копчение — способ обработки продуктов дымом. Во время приготовления пищи тщательно следят не только за температурой, но и за количеством дыма, равномерностью нагревания, окуривания продуктов.
Плюсы копчения

Копчение не зря популярно, оно позволяет:
- избавить продукты от вредных микроорганизмов, которые способны нанести существенный вред;
- из-за щадящей температуры сохранить большую часть «полезностей» — витаминов, макро- и микроэлементов;
- хранить запасы долгое время, но не беспокоиться об их порче: дым в этом случае становится идеальным консервантом.
На вкус подобных блюд влияют дрова, использующиеся при копчении. Каждая древесина при горении придает продуктам свой, неповторимый вкус. Например, производители опилок советуют в разных ситуациях выбирать определенные породы деревьев. Но об этом чуть позже.
Виды копчения и их отличие
Обработка может происходить по-разному. Есть два вида копчения — холодное и горячее.

- Первое, холодное приготовление более длительное, потому что копчение идет при минимальной температуре: чаще она составляет 25-40°. Максимальная граница — 45°. Считают, что продукты, приготовленные таким способом, более вкусные. Минус — длительность процесса: на приготовление пищи может уйти несколько дней. Плюс — впечатляющий срок хранения без потери вкусовых качеств. Он составляет 3-4 месяца. Одна из причин — предварительная подготовка продуктов. Их засаливают, маринуют и т. д.
- Горячее копчение — своего рода экспресс-метод. Он требует более высоких температур — от 50° и выше. Это самый удобный и быстрый способ, так как готовится мясное блюдо примерно 1-2 часа, рыба — около получаса, или немногим более. В этом случае готовая пища подается прямо на стол: ее можно (нужно) сразу дегустировать. Недостаток у горячего копчения есть, но он единственный. Это не слишком впечатляющий срок хранения — всего 3-4 дня. Поэтому больших запасов сделать не получится.

Несмотря на недостаток последнего варианта, горячее копчение на природе популярности у отдыхающих не теряет, поскольку ценность продуктов, готовящихся относительно быстро, — возможность съесть их «здесь и сейчас», а не отправлять куда-либо на хранение. Поэтому горячее копчение — занятие, очень распространенное среди владельцев дач и загородных домов. Их привлекает не только скорость и отменный вкус готовых продуктов, но и шанс превратить в коптильню самые простые предметы.




























