Отличие стратодезического купольного дома от геодезического
Как показывает практика, люди, впервые увидевшие или узнавшие про купольные дома, чаще всего делятся на две категории. Это — те, кто безоговорочно принимает такую форму дома и, отметим, образ жизни, и те, кто считает подобные сооружения причудой или, как вариант, — домом не под ПМЖ, а летней дачей «не как у всех».
Не будем вдаваться в подробности обсуждения достоинств и недостатков купольных домов (а они, как и у любой строительной технологии, есть) и сконцентрируемся на практике. Итак, есть застройщик, желающий построить купольный дом. С чего начать? Отличный пример грамотного и обстоятельного подхода — история пользователя портала с ником Rustad.
Прежде чем мы расскажем о нюансах проектирования и строительства дома, представленного на фото ниже, ответим на вопрос, который одним из первых возникает перед любым человеком, задумавшим возвести купольный дом.
Чем отличается стратодезический купольный дом от геодезического? Не вдаваясь в детальное описание технологии, скажем, что ключевое отличие заключается в способе возведения каркаса.
Стратодезический купол возводится из стоек, например, изготовленных из гнутоклееных деревянных балок, а этапы его сборки во многом напоминают обычную технологию каркасостроения.
Особенность этой технологии — устойчивость к вертикальным нагрузкам и возможность использования при строительстве стандартных окон и дверей.
Геодезический купол возводится несколько иначе. Сначала изготавливаются отдельные секции, например, в виде треугольников, которые затем, шаг за шагом, соединяются друг с другом.
При сборке рёбер (секций) геодезического купола может применяться технология коннекторного соединения (например, при помощи металлического коннектора).
Или (менее распространённая в России) бесконнекторная технология.
Rustad остановился на последнем варианте и, как мы уже говорили выше, начал с разработки проекта.
Дизайнер может красиво нарисовать, но с точки зрения практики то, что он создал, зачастую просто невозможно воплотить в жизнь. Проектировать дом должен человек с профильным образованием, но даже инженер-проектировщик может не учесть положение строения на участке относительно сторон света, розу ветров, размеры отделочных материалов. Поэтому Rustad, имея в распоряжении два свободных месяца, засел за проектирование купольного дома, и вот что в итоге у него получилось.
Отметим, что проект за это время несколько раз видоизменялся с учетом рекомендаций опытных строителей, доступности материалов, особенностей расстановки мебели и внесением пожеланий от домочадцев.
Состав проекта при каркасном строительстве
По каркасной технологии можно строить даже дома с несколькими этажами. Эти здания пригодны для постоянного проживания или коммерческих нужд. Их можно использовать круглый год или сезонно. Определяют предназначение строения заранее, отображая эту информацию в проекте.
Чертежи каркасных домов
В проектно-сметной документации содержится как текстовая, так и графическая составляющая. Первая часть включает подробное описание работ, перечень деталей, их спецификации.
Также в текстовую часть включены нормативные акты, регулирующие проведение расчетов для здания. Эта составляющая подразумевает указание стоимости каждого элемента и строительства в целом. Спецификация позволяет узнать об общей площади каркасного дома, а также о количестве необходимых материалов.

Важно! Графическая часть проекта включает множество схем, чертежей, эскизов и планов дома. Чертежи различают по степени детализации, в зависимости от требований заказчика

Чертежи каркасных домов для постоянного проживания содержат следующую информацию:
- схему распределения участка земли;
- детальную поэтажную схему размещения помещений внутри здания или план каркасного дома (объемно-планировочное решение);
- архитектурный проект или трехмерное изображение будущего дома на бумаге;
- схему установки кровли;
- поперечный и продольный разрез дома;
- схемы различных коммуникаций внутри дома – газоснабжения, электричества, вентиляции,
- водоснабжения и канализации, отопления.

Рабочая часть проекта
Любой проект включает эскизную и рабочую части. Последняя имеет три раздела:
- конструктивный;
- архитектурный
- инженерно-технический.
Конструктивный раздел включает список необходимых строительных работ и спецификацию всех материалов. В нем содержится подробный план фундамента, стен, перекрытий, кровли и других элементов.
Инженерно-технический раздел включает все данные относительно проведения различных коммуникаций.

Любой типовой проект не подразумевает привязку к местности, а является универсальным. Поэтому его необходимо адаптировать к конкретному участку. Это делают при помощи рекогносцировки местности, анализа рельефа, глубины залегания грунтовых вод, анализа почвы и других тестов.

Самой большой частью проекта является архитектурный раздел, включающий план участка, подробное описание и эскиз фасада, детальный план этажей с указанием точных размеров, указание всех лестниц, перегородок, окон, дверей, стен и т. д.

Весь проект и другие документы может создать и подготовить только специально образованный человек с наличием соответствующих разрешений на подобную работу. Можно обратиться как в строительную фирму, так и к частному лицу.
Тот, кто составляет проект, отвечает за его качество и правильность написания. Грамотно составленный проект сможет реализовать даже непрофессионал.
План типичного каркасного дома
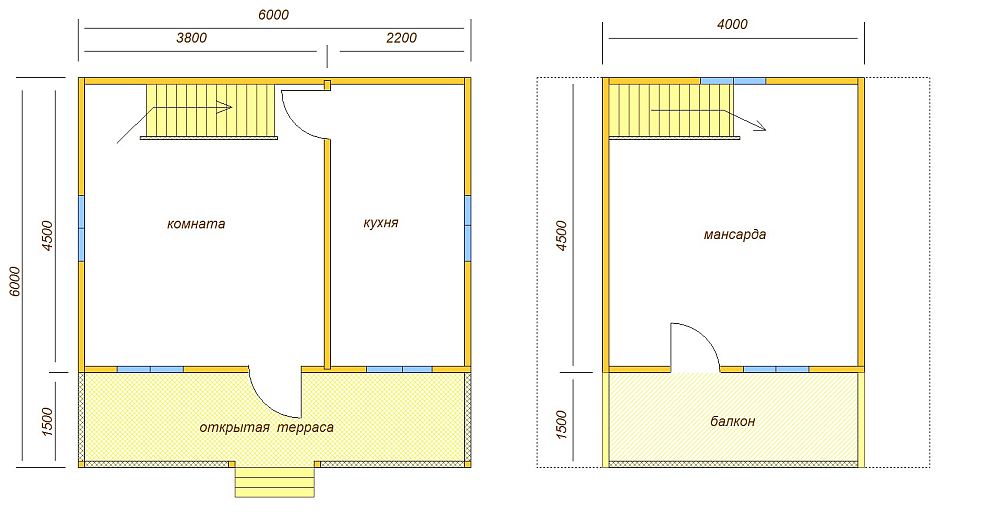
Можно построить здание любых размеров, в зависимости от потребностей семьи, и выбрать любую из типичных планировок комнат внутри каркасного дома. Но в стандартном доме для семьи всегда есть коридор, кухня, гостиная, кладовая, гардероб, санузел, а также несколько спален.
Согласно современным строительным требованиям, для каждого человека в семье должно быть 20-23 кв. м. Это значит, что для стандартной семьи на 3-4 человека нужен дом площадью от 90 кв. м.
Наиболее оптимальное распределение площади:
- кухня – 20-30 кв. м;
- гостиная – 20-30 кв. м;
- спальня – 5-8 кв. м;
- коридор и санузел – по 2-4 кв. м;
- кладовая – 1-2 кв. м.
Конечно, это ориентировочное распределение внутренней площади, и каждый может поменять его под себя, но это нужно делать на этапе проектирования.

Важно учесть, насколько удобно будет подводить инженерные коммуникации в ту или иную комнату, где лучше всего расположить кухню и санузел, как будет проходить водопровод и канализация. Это все нужно решить до заливки фундамента
Каркасные дома хороши тем, что их легко можно перепланировать, в отличие от бетонных и кирпичных. Перегородки, не имеющие несущих функций, легко разбираются и переносятся в другое место. Благодаря этому планировку комнат можно менять, за исключением кухни и санузла, для которых требуются дополнительные коммуникации.
Идеи интерьера и дизайна
Проекты круглых домов выглядят необычно даже снаружи. А если подчеркнуть округлые стены еще и внутри, вид дома будет законченным и лаконичным. Однако по этому поводу у разных дизайнеров возникают противоположные идеи. Если план круглого дома дает такую возможность, то первой оформляется лестница на верхний этаж
Она должна обращать на себя внимание гостей и подчеркивать непривычно круглую форму пространства, поэтому ее часто устанавливают в центре. Другой вариант установки – вдоль стены

Вторая деталь – межкомнатные перекрытия. Часто из-за округлых форм их выполняют по радиальным линиям, то есть создают еще более необычное пространство. Подчеркнуть ее можно несколькими способами. Первый – с помощью гладких однотонных текстур на стенах с декоративными яркими элементами. В их роли используют картины, навесные полки, настенные лампы. Второй способ – акцентирование рельефными покрытиями. На полукруглые стены наносятся горизонтальные или волнообразные узоры, а в углах комнаты, наоборот, горизонтальные. Это зрительно меняет пространство.

И третья важная особенность при создании проекта интерьера круглого дома – выбор текстур. Одни дизайнеры настаивают на потребности применять глянцевые покрытия, другие уверяют в том, что матовые поверхности смогут подчеркнуть необычность конструкций. В этом вопросе решение должен принимать владелец дома.

Круглый дом из Велокс и монолита
Круглую или изогнутую стену по технологии строительства Велокс монтируют прямо на участке. Плиты несъемной опалубки распиливают на фрагменты под углом, согласно плану дома. Плиты внешнего и внутреннего рядов опалубки устанавливают по периметру стен. Каждую часть плиты фиксируют минимум двумя стяжками и скрепляют гвоздями. Так щепоцементная опалубка будет надежно удерживать бетон, даже если у дома необычная форма.
В остальном технология строительства ничем не отличается от других зданий Дома Велокса: в пространство между внешней и внутренней стеной несъемной опалубки монтируют арматуру, заливают его бетоном и приступают к монтажу следующего ряда опалубки. Стены несъемной опалубки становятся единой монолитной «глыбой», неделимой конструкцией без щелей и составных элементов.

Подробнее Технология строительства Велокс — что этоСтроительство по технологии Велокс: высокое качество
Плюсы:
- максимально надежная конструкция. Дом — единый железобетонный монолит в несъемной щепоцементной опалубке;
- возможность сформировать поверхность фактически любой геометрии, отсутствие ограничений в работе дизайнера-проектировщика;
- все архитектурные элементы выпиливают и монтируют на стройплощадке.
Минусы
- необходим качественный проект дома;
- более трудоемкий строительный процесс по сравнению с возведением домов с прямыми углами и перпендикулярными стенами.
Справка
Для строительства куполообразных и круглых монолитных домов разработана специализированная технология строительства. Она знакома каждому, кто делал с детьми шары из папье-маше или круглые светильники из ниток.
При возведении дома на фундаменте монтируют специальный надувной шар из прочной мембраны или пневмокаркас. На его поверхности монтируют деревянную армированную опалубку и набрызгивают бетонную смесь. После того, как бетон «схватится», мембрану сдувают и демонтируют.

Круговая кладка тычково-ложковая
Устройство круглой купольной кровли
При организации купольной кровли ее круглая стропильная система делается из стропил висячего типа, а не наслонного, как в предыдущем варианте. Стандартно такая кровля представляет собой трехшарнирную арку из висячих стропильных ног. Нижнее ребро арки стыкуется с мауэрлатным брусом, смонтированным на стенах. Верхний край арки при этом опирается на кольцевой прогон, установленный в верхней части опорной балки, размещенной по центру здания.
Безусловно, если вы не знаете, как сделать купол на крыше, и не можете самостоятельно выполнить проект стропильного каркаса, лучше доверить выполнение расчета специальным строительным организациям, поскольку такая работа требует теоретических и практических знаний механики и сопромата. В то же время, по уже готовым расчетам соорудить крышу в виде купола вы сможете вполне самостоятельно.
Полукруглая купольная крыша приобретает форму благодаря наличию кольцевой обрешетки. Она фиксируется на вспомогательных опорах, которые стыкуются с затяжками висячих стропильных арок.
Американский архитектор Р. Б. Фулер в свое время предложил еще один метод возведения купольной крыши. Его проект получил название «Геодезический купол». Основная особенность конструкции заключается в том, что она состоит из множества треугольников. Ввиду очень сложных расчетов и непривычного способа исполнения, проект не получил широкого распространения.
Стропильную систему для геодезического купола можно сооружать одним из способов:
- коннекторный – при этом воедино треугольники собираются непосредственно над стенами постройки при помощи коротких брусков и замков-коннекторов;
- бесконнекторный – панели в форме треугольников изготавливаются заранее, а в одно целое их собирают уже непосредственно на месте строительства.
Идеи интерьера и дизайна
Проекты круглых домов выглядят необычно даже снаружи. А если подчеркнуть округлые стены еще и внутри, вид дома будет законченным и лаконичным. Однако по этому поводу у разных дизайнеров возникают противоположные идеи. Если план круглого дома дает такую возможность, то первой оформляется лестница на верхний этаж
Она должна обращать на себя внимание гостей и подчеркивать непривычно круглую форму пространства, поэтому ее часто устанавливают в центре. Другой вариант установки – вдоль стены

Вторая деталь – межкомнатные перекрытия. Часто из-за округлых форм их выполняют по радиальным линиям, то есть создают еще более необычное пространство. Подчеркнуть ее можно несколькими способами. Первый – с помощью гладких однотонных текстур на стенах с декоративными яркими элементами. В их роли используют картины, навесные полки, настенные лампы. Второй способ – акцентирование рельефными покрытиями. На полукруглые стены наносятся горизонтальные или волнообразные узоры, а в углах комнаты, наоборот, горизонтальные. Это зрительно меняет пространство.

И третья важная особенность при создании проекта интерьера круглого дома – выбор текстур. Одни дизайнеры настаивают на потребности применять глянцевые покрытия, другие уверяют в том, что матовые поверхности смогут подчеркнуть необычность конструкций. В этом вопросе решение должен принимать владелец дома.

Основа
Как и для любого здания, необходимо заложить хороший фундамент. Это стандартный процесс, он отличается только формой. Для сферических и куполовидных домиков вам необходимо выкопать траншею в форме кольца.
Подготовка фундамента – один из самых важных начальных этапов строительства
Рассмотрим, как сделать это правильно. Для разметки вам понадобятся два колышка из дерева или железа, длинная веревка и эластичный материал, подобный современным ленточным бордюрам для ограждения клумб. Далее стоит соблюдать следующий алгоритм:
- Обозначьте четкие границы расположения здания и определитесь с его диаметром.
- Разделите диаметр пополам и получите радиус.
- Возьмите веревку, длина которой должна равняться радиусу, привяжите ее к двум колышкам.
- Один вставьте в точку, через которую будет проходить внешняя граница. Второй – на длину веревки, оттяните внутрь круга и вбейте в землю. Это будет центр.
- Потом вытащите первый колышек из земли и, хорошо углубляя его в землю при полном натяжении веревки, прочертите круг.
- Подмотайте веревку на ширину фундамента и таким же способом прочертите внутренние границы.
- Рекомендуется обозначить обе разметки дополнительными материалами.
https://youtube.com/watch?v=UKvVclBtjq4
Важно! Для комбинированного типа создается стандартная основа, а для сфероидных устанавливаются сваи
Стены
Следующим этапом строительства является возведение стен. В первых трех случаях для этого могут быть использованы разнообразные варианты:
кирпич;
пеноблоки;
газоблоки;
обработанное дерево;
поленья;
природный камень.

Данный вариант стен предусматривает укладку треугольных панелей из 15 мм влагостойкой фанеры
Из-за особенностей возведения первых двух типов основное в этом случае – качество раствора. Так как элементы выкладываются не стандартным способом, это значительно увеличивает швы. Поэтому необходимо использовать цемент высокого качества и создавать более густой раствор, который будет прочнее держаться.
При возведении сферического здания к материалу применяются следующие требования:
эластичность;
легкость;
прочность.
Каркас может быть создан как из железа, так и из дерева. Обшивается основа небольшими пластинками, что позволяет плотно зашить ими стены столь нестандартной формы.
Совет! При необходимости утепления шарообразного здания используйте утеплители, которые устанавливаются внутри помещения.
https://youtube.com/watch?v=PYwYnvYB37Q
Преимущества и недостатки круглых домов
Круглые дома считаются более прочными и сейсмоустойчивыми, а также способными противостоять ветрам любой силы. Их устанавливают в тех районах, где штормы, ураганы, торнадо и цунами – не редкость, а обычное явление. Плоские или наклонные крыши цилиндрических домов реже срывает ветром, и они не «складываются» даже во время землетрясений.
Необычная форма жилья помогает сэкономить на строительных материалах. По подсчетам экспертов, на круглый дом уходит на 15-20% меньше стройматериалов, чем на прямоугольный дом той же площади.
В цилиндрических домах совсем иная акустика. Звуковые волны равномерно распространяются по зданию, и голоса и музыка слышны мягче и четче. А вот внешние шумы слабо проникают внутрь здания, поэтому дома-цилиндры идеально подходят всем, кто ищет тишины и единения с природой.
Главным недостатком круглого дома является его непривычная форма и отсутствие углов и перегородок. Впрочем, не так давно были разработаны цилиндрические дома, оснащенные межкомнатными перегородками. Группа польских архитекторов сумела создать Standard hOuse, который можно по праву считать эталоном круглых домов.
Инструкция к фундаменту
Поэтапное строительство каркасного дома своими руками начинается с фундамента. Это — основа дома, большая, ровная и прочная «подставка», на которой держится вся каркасная конструкция. Её можно вылить из бетона или собрать из готовых бетонных блоков.
Ленточный фундамент для каркасника.
Каркасное строительство называют «лёгким». Стены каркасника значительно меньше давят на поверхность земли, чем капитальные сооружения из кирпича или монолиты из бетона. Каркас также легче брусового деревянного дома. Поэтому вашему строению понадобится небольшой мелкозаглубленный фундамент, при этом глубину можно сделать на 100-300 мм.
На заметку
Решая, как самому построить каркасный дом своими руками, неизменно сталкиваешься с вопросом выбора конструкций и материалов. Для каркасных строений сооружают мелкозаглубленные ленточные фундаменты или плиты. В некоторых случаях для каркасников делают фундаменты глубокими.
В некоторых случаях для каркасников нужна большая глубина фундамента. Это бывает, когда грунт – зыбкий, подвижный, сыпучий и строение планируется на берегу водоёма. В таком случае устанавливают свайно-винтовой фундамент, который будет опираться на глубокие и неподвижные слои грунта.
Ленточный фундамент
Представляет собой каменную ленту, дорожку, заглубленную в землю на 100-400 мм. Над поверхностью земли фундамент возвышается на 100-300 мм. Таким образом, общая высота ленточного фундамента для каркасного дома составляет 200-700 мм.
Опалубка ленточного фундамента с арматурной сеткой
На заметку
Можно сделать фундамент глубже и выше – но это уже на ваше усмотрение, при желании израсходовать больше строительных материалов и получить более массивную конструкцию основания дома.
Ленту фундамента заливают в подготовленные заранее траншеи. Бетон для заливки можно замешивать самостоятельно. Перед заливкой в траншеи насыпают слой песка и тем самым делается так называемая песчаная подушка (толщина до 100 мм) и укладывают металлические арматуру.
Плитный фундамент
Плитный фундамент также называют плавающим. Каркасный дом будет подниматься и опускаться вместе с ним, при сезонных расширениях грунта . Поэтому плита должна быть достаточно прочной, чтобы можно было возводить здание в два этажа и выше.
Плитный фундамент заливают из бетона и арматуры, при этом арматуру связывают проволокой. Арматурная сетка обеспечивает плите каркасного дома необходимую прочность, жестко фиксируя монолитную плиту.
Расчет фундамента производится по принципу повышенной нагрузки, применяют арматуру разного диаметра. Плюс можно менять расстояние между прутьями, и это поможет увеличить прочность фундамента. Стоимость зависит от сложности работы и потраченных материалов на создание.
Фундамент залит монолитной плитой
Плитное основание можно минимально заглубить в грунт на 100-200 мм, или лить бетон на гравийную подушку без заглубления. Общая высота плиты должна составлять 200-300 мм.
Для плиты фундамента важно обеспечить стойкость к подъёму грунтовой влаги. Поэтому при замешивании бетона в него добавляют водостойкую добавку
Это обеспечит водостойкость бетонной плиты и сухой пол внутри будущего помещения. А также продлит долговечность фундамента и всего строения.
Свайно-винтовой фундамент
Для получения свайно-винтового фундамента можно использовать асбестовые трубы или металлические готовые сваи. Для асбестовых труб готовят ямы, в которые устанавливают трубу и заливают в неё бетон. Предварительно – армируют, т.е. ставят металлическую арматуру внутрь трубы. Металлические сваи вкручивают в землю без вынимания грунта, не выкапывая ямы.
Для того чтобы было легче и понятнее, как монтировать свайно-винтовой фундамент и каркасный дом своими руками – пошаговое фото.
Набор свай для винтового фундамента
Вкручивание свай для фундамента вручную
Соединение винтовых свай фундамента между собой
Свайно-винтовой фундамент
Каркасный дом нестандартной формы
При строительстве цилиндрических и круглых домов чаще всего приобретают готовые решения: заводской каркас и раскрой материалов обшивки, соответствующий проекту.
Внутреннюю и внешнюю поверхность купола обычно зашивают OSB-плитами или другими пиломатериалами. Между ним прокладывают утеплитель, паро- и гидроизоляцию.
Чем меньше шаг стоек каркаса, тем более плавно скругляются стены.
Минусы
- Трудоемкий процесс монтажа;
- Дом менее надежный и долговечный, чем монолитный или кирпичный.

Если Вы мечтаете о доме с необычным дизайном. Дом Велокса поможет осуществить самые фантастические пожелания. Разработаем проект, рассчитаем раскрой плит под технологию Велокс.
Вы можете заказать проект по индивидуальному дизайну или выбрать вариант из нашего каталога и внести в него изменения. В нашей базе только «обкатанные» проекты, дома по которым уже построены .
Пишите: https://domveloxa.ru/contacts/
Поможем определиться с выбором:
Дом с цокольным этажом на монолитном фундаменте-плите
Проекты одноэтажных домов: достоинства и недостатки
Проекты двухэтажных домов: на что обращать внимание
Где посмотреть дома по технологии Велокс в СПб и Ленобласти
Фото с сайта pixabay.com авторов: Hans, , 12019 , Randgruppe, Olya-02, Broesis, domeman
Стоимость проекта каркасного дома
Проект каркасного дома может стоить по-разному. На стоимость влияют следующие моменты:
- Оригинальность. Проект может быть индивидуальным или типовым. Первый вариант гораздо дороже, поэтому можно купить стандартный проект и потратиться на его адаптацию.
- Степень детализации. Чем более детальный проект, чем больше в нем эскизов и чертежей, тем он дороже.
- Размеры дома. Количество этажей, размеры строения определяют объем расчетов и сложность проекта, а значит, его цену.
- Архитектурная сложность.
- Сложность геологических и других подготовительных работ.

В целом, стоимость проекта колеблется в диапазоне 3-30 тыс. рублей.
Выбор проекта
Это основополагающий и очень ответственный этап. Выбирать проект нужно вместе с консультантом, в роли которого может выступить архитектор или профессиональный строитель. Чтобы сделать верный выбор, необходимо учитывать множество нюансов, основные из которых следующие:
- особенности участка;
- особенности строительного материала;
- площадь;
- этажность;
- состав помещений;
- тип планировки;
- архитектурный стиль.
Лучше сразу прописать главные требования к коттеджу, и только после этого приступать к выбору архитектурного решения. В процессе выбора архитектурного решения стоит прислушиваться к рекомендациям консультанта, который поможет принять правильное решение с точки зрения профессионала.

Выбираем проект домаИсточник storgram.com
Дополнительные советы и выводы
Если купольный дом купить, можно исключить многие из перечисленных выше трудностей. Тем не менее, даже в этом случае пригодятся личные тематические знания. Они помогут правильно выбрать проект и материалы, уверенно контролировать действия исполнителей. При изучении альтернативного варианта надо учитывать не только прямые, но и косвенные затраты. В некоторых ситуациях будет выгодно приобрести готовый набор для создания надежного каркаса с гарантиями производителя.

Отделку и оснащение объекта недвижимости можно сделать самостоятельно, с применением стандартных строительных технологий

Watch this video on YouTube




























