Какие документы необходимы для открытия кафе или ресторана?
Отметим, что открытие любого заведения общественного питания сопряжено с оформлением массы документов. Для начала нужно зарегистрироваться в налоговой службе — это может быть оформление ИП или ООО. Кроме того, понадобится лицензия на кафе, разрешение на торговлю, а также продажу алкогольной и табачной продукции (в данном случае требуется также покупка и регистрация кассового аппарата).
В дальнейшем нужно получить документ, который засвидетельствует соответствие помещения всем санитарным нормам. Для составления такого документа необходимо разрешение на торговлю в конкретном месте, результаты медосмотра всего рабочего персонала и договор об аренде. Кроме того, заведение должно быть проверено газовой и пожарной службой, а также службой по охране труда.
Примерно так выглядит основной пакет документов. Кстати, стоит приготовиться к регулярным проверкам со стороны санэпидстанции, пожарной и налоговой службы.
Вернемся к ГОСТу по составлению планов
В текстовой части следует излагать:
- — способы оповещения о возникновении чрезвычайной ситуации (пожара, аварии и др.);
- — порядок и последовательность эвакуации людей;
- — обязанности и действия людей, в том числе порядок вызова пожарных или аварийно-спасательных подразделений, экстренной медицинской помощи и др.;
- — порядок аварийной остановки оборудования, механизмов, отключения электропитания и т.п.;
- — порядок ручного (дублирующего) включения систем (установок) пожарной и противоаварийной автоматики.
Текстовая часть планов эвакуации должна содержать инструкции о действиях в условиях чрезвычайной ситуации (при пожаре, аварии и т.п.), дополненные для наглядности знаками безопасности и символами в соответствии с перечислениями д и е).
В порядке комментария к требованию п.6.7.3. следует вспомнить абзац п.16 ППБ-01-03. «… Руководитель объекта с массовым пребыванием людей (50 человек и более) в дополнение к схематическому плану эвакуации людей при пожаре обязан разработать инструкцию, определяющую действие персонала по обеспечению безопасной и быстрой эвакуации людей, по которой не реже одного раза в полугодие должны проводиться практические тренировки всех задействованных для эвакуации работников»
6.7.4 Размеры планов эвакуации выбирают, мм не менее:
- 600х400 — для этажных и секционных планов эвакуации;
- 400х300 — для локальных планов эвакуации.
Размер плана эвакуации выбирается в зависимости от его назначения, площади помещения, количества эвакуационных и аварийных выходов.
6.7.5 Пути эвакуации, ведущие к основным эвакуационным выходам, следует обозначать сплошной линией зеленого цвета с указанием направления движения.
6.7.6 Пути эвакуации, ведущие к запасным эвакуационным выходам, следует обозначать штриховой линией зеленого цвета с указанием направления движения.
6.7.7 Планы эвакуации следует выполнять на основе фотолюминесцентных материалов.
Допускается использовать для выполнения планов эвакуации несветящиеся материалы, которые должны соответствовать требованиям ГОСТ Р 12.4.026, установленным к несветящимся материалам.
6.7.8 Фон плана эвакуации должен быть:
желтовато-белым или белым — для фотолюминесцентных материалов;
белым — для несветящихся материалов.
6.7.9 Надписи и графические изображения на плане эвакуации (кроме знаков безопасности и символов) должны быть черного цвета независимо от фона.
Шрифт надписей на плане эвакуации по ГОСТ Р 12.4.026. Высота шрифта — не менее 5 мм.
6.7.10 Планы эвакуации следует вывешивать на стенах помещений и коридоров, на колоннах и т.п. в строгом соответствии с местом размещения, указанном на самом плане эвакуации.
6.7.11 Примеры планов эвакуации приведены в приложении В.
Примеры выполнения планов эвакуации
Рисунок В.1 — Этажный план эвакуации (фотолюминесцентный)
Рисунок В.2 — Секционный план эвакуации (фотолюминесцентный)
Рисунок В.3 — Локальный план эвакуации для гостиничных номеров (несветящийся)
Рисунок В.4 — Пример выполнения текстовой части плана эвакуации
<< Планы эвакуации в зданиях Планы эвакуации в зданиях, приложение >>
12.01.2012
Эта статья еще не комментировалась. Инф-Ремонт будет признателен первому комментарию о статье
Из чего состоит план эвакуации
План эвакуации состоит из графической и текстовой частей.
В графической части отображают поэтажную или секционную планировку объекта (согласно п. 6.2.3 ГОСТ Р 12.2.143-2009). При этом обязательно указывают:
- эвакуационные пути и выходы;
- лестницы, лестничные клетки и аварийные выходы, предназначенные для эвакуации людей;
- места размещения самого плана эвакуации;
- места размещения средств противопожарной защиты, средств связи;
- способы оповещения о возникновении чрезвычайной ситуации (пожара и т. д.);
- порядок и последовательность эвакуации людей;
- обязанности и действия людей, в том числе порядок вызова пожарных подразделений и т. д.
Сколько планов эвакуации нужно разработать, если на этаже два лестничных прохода
Количество планов эвакуации не зависит от количества и расположения лестничных клеток.
Требования к изготовлению и утверждению планов эвакуации определены ГОСТ Р 12.2.143-2009.
Планы эвакуации могут быть этажными, секционными, локальными и сводными (общими).
Планы эвакуации должны состоять из графической и текстовой частей. Графическая часть должна включать в себя этажную (секционную) планировку здания, сооружения, транспортного средства, объекта с указанием:
- эвакуационных путей и выходов; лестницы, лестничные клетки и аварийные выходы, предназначенные для эвакуации людей;
- места размещения самого плана эвакуации;
- места размещения средств противопожарной защиты, спасательные и медицинские средства связи, обозначаемые знаками пожарной безопасности и символами ИМО.
Высота шрифта надписей на плане должна быть не менее 3 мм, а высота знаков безопасности и символов – в пределах 8–15 мм. На одном плане эвакуации знаки безопасности и символы выполняют в едином масштабе (ГОСТ Р 12.2.143-2009).
Внимание
При проведении работ по реконструкции или перепланировке объекта в план эвакуации обязательно вносят соответствующие изменения.
В текстовой части плана размещают пояснения смыслового значения знаков безопасности, символов и условных графических обозначений, а также перечисляют:
- способы оповещения о возникновении чрезвычайной ситуации (пожара и т. д.);
- порядок и последовательность эвакуации людей;
- обязанности и действия людей, в том числе порядок вызова пожарных подразделений и т. д.
Текстовая часть должна содержать инструкции о действиях в условиях чрезвычайной ситуации, дополненные знаками безопасности и символами.
План эвакуации размещают таким образом, чтобы правильно читалась его текстовая часть. Место размещения самого плана на плане эвакуации отмечают точкой «Вы находитесь здесь».
Ситуация
Должна ли быть дата разработки (не только год, но и число) на плане эвакуации
Да, на плане эвакуации в правом нижнем углу должна быть указана дата изготовления плана (только год).
Требования к изготовлению и размещению планов эвакуации определены ГОСТ Р 12.2.143-2009 «Национальный стандарт Российской Федерации. Система стандартов безопасности труда. Системы фотолюминесцентные эвакуационные. Требования и методы контроля», утвержденным приказом Ростехрегулирования от 23 июля 2009 г. № 260-ст.
Данным ГОСТом определено, что в левом нижнем углу плана эвакуации необходимо указать наименование организации – разработчика плана эвакуации. В правом нижнем углу плана эвакуации наносится маркировка в соответствии с требованием пункта 10.1 ГОСТ. В частности, там должно быть указано:
- наименование и торговый знак изготовителя;
- дата изготовления (год);
- яркость свечения в мкд/м через 10 и 60 мин после отключения источников освещения (накачки);
- длительность послесвечения в минутах.
Требования к составлению плана
Согласно установленным правилам по обеспечению пожарной безопасности, схему по организации эвакуации требуется отрабатывать как минимум каждые 6 месяцев.
Прежде всего, план используется для проведения тренировок. Раз в полгода руководство должно проводить учения, обучая людей действовать по заранее разработанному пути.
Составление схемы и размещение ее на видном месте не является окончательным действием. Сотрудники пожарной безопасности время от времени проводят проверки.

Это необходимо по той причине, что в зданиях периодически проводятся перепланировки, а также принимаются новые законы. Сегодня к эвакуационным схемам предъявляются следующие требования:
- Графическая часть схемы должна полностью отвечать всем поставленным нормам.
- На чертеже должны отсутствовать элементы, отвлекающие от основной информации.
- Главный путь эвакуации обозначается сплошными цветными стрелками цвета.
- Обязательно помечаются запасные пути. Их отмечают пунктирными линиями.
- Должна присутствовать информация относительно того, где размещаются телефоны, огнетушители, пожарные краны и места включения противопожарной автоматики. Эти вещи обозначаются специальными условными знаками.
В эвакуационных планах наряду с графикой присутствует текстовая информация. Прописывается имя исполнителя, его обязанности и то, как нужно действовать в сложной ситуации.
Это ответственный человек, который должен регулировать эвакуацию. К его основным обязанностям можно отнести:
- Оповещение о возникшем пожаре.
- Организация эвакуационного процесса.
- Проверка, все ли ушли с территории опасности.
- Проверка систем пожаротушения.
- Тушение пожара с помощью подручных средств.
- Эвакуация ценного имущества.
В нижней части схемы проставляются подписи лиц, составивших план. Также должны присутствовать подписи людей, что ознакомились с эвакуационным планом.
К эвакуационной схеме наряду с иными документами прилагается журнал отработки схемы спасения. План выхода из помещения нужно время от времени отрабатывать и вносить даты осуществления подобных операций.
Как развить кафе и получать стабильный доход?
Да, завоевать сердца клиентов не всегда легко. И если в первые несколько дней у вас будет множество посетителей, со временем их количество может уменьшиться. Поэтому нужно всеми силами поддерживать в них интерес.
Например, время от времени добавляйте новые блюда в меню, ведь со временем постоянным посетителям все приедается.
Кстати, можете организовать опрос, предложив клиентам заполнить анкеты, где они укажут, какие именно блюда или напитки хотят увидеть в вашем ресторане.
Можете обеспечить постоянных посетителей скидками или дисконтными картами — посещение вашего заведения будем им выгоднее. Не забывайте об организации банкетов, свадеб, дней рождений и т. д., ведь подобные мероприятия приносят действительно хороший доход.
Если вы интересуетесь вопросом о том, как открыть свой ресторан или кафе и развивать его, подумайте об организации празднований. Предлагайте своим клиентам развлечения к Новому Году, Дню Св. Валентина, Хеллоуину и т. д.
Кстати, время от времени можете устраивать веселые тематические вечера, например, вечеринку в стиле 20-х годов с соответствующим меню и музыкальным сопровождением. И помните, что только правильная организация, вкусная еда и приятное обслуживание могут сделать ресторанный бизнес более прибыльным.
Использование специальных программ
При наличии определенных навыков в процессе составления плана можно использовать специальные программы:
- Splan.
- AutoCAD.
- Photoshop.
- Специальная программа План эвакуации.
Это разные по сложности освоения и изучения программы. Есть такие варианты, которые можно освоить за один вечер, есть требующие обучения. Каждый пользователь может подобрать для себя оптимальный вариант.
После составления плана полученные навыки можно будет использовать при выполнении иных задач:
- Составление графического перечня зданий.
- Составление структурных схем.
- Выполнение чертежей.
- Рисование картинок.
Многие из современных программ настолько простые, что их можно охарактеризовать как линейка с карандашом в современной обработке.
Утверждение и ответственность
Ранее планы эвакуации в обязательном порядке согласовывались с инспектором ГПН, но с недавних пор, это требование отменили. По желанию, можно обратиться к инспектору, который работает в ближайшем территориальном отделении ГПН. На документе печатают специальные графы с местом для подписи согласовавшего и утвердившего лица.
План утверждает либо собственник здания, либо арендующее лицо. Ответственность и порядок действий прописывают в договоре аренды. Утверждают планы эвакуации руководители организаций, заверяя свою подпись печатью предприятия в предназначенном для этого месте.
За неправильное оформление плана эвакуации, Кодекс Российской Федерации об административных правонарушениях предусматривает административную ответственность и штраф.
Штраф за нарушение пожарной безопасности налагается на организацию инспектором Государственного пожарного надзора МЧС России в результате плановой или внеплановой проверки.
Более подробно узнать о составлении и утверждении планов эвакуации можно узнать из следующего видео:
При проведении плановой проверки, Государственный пожарный надзор обязан уведомить владельца объекта за несколько дней. Также, обязательным основанием для проверки служит письменное распоряжение или приказ руководителя территориального органа ГПН.
В свою очередь, внеплановая пожарная проверка может быть осуществлена при поступлении информации от третьей стороны о возникновении угрозы ЧС на объекте. Распоряжение руководителя территориального органа Государственного пожарного надзора также является обязательным условием для проверки.
В случае возникновения пожара на объекте налагаются следующие штрафные санкции:
- Нарушение требований пожарной безопасности, повлекшее возникновение пожара и уничтожение или повреждение чужого имущества либо причинение легкого или средней тяжести вреда здоровью человека:
- для должностных лиц и индивидуальных предпринимателей — от 40 000 руб. До 50 000 руб.;
- для юридических лиц — от 350 000 руб. до 400 000 руб.
- Нарушение требований пожарной безопасности, повлекшее возникновение пожара и причинение тяжкого вреда здоровью человека или смерть человека: для юридических лиц — от 600 000 руб. до 1000 000 руб.
В случае выявления административного правонарушения инспектором в порядке, установленном законодательством, составляется протокол как в отношении юридического, так и физического лица, допустившего нарушения.
Похожие
- Какие бывают сроки исковой давности?
- Виды исков в гражданском процессе
- Понятие и содержание права собственности
- Как добровольно отказаться от ребенка
- Закон «О недрах»
- Какие дома самые шумные
- Как оплатить ЖКХ через Госуслуги
- Может ли работодатель уволить сотрудников из-за коронавируса
- Как проверить готовность гражданства РФ?
- Как прописать ребенка: необходимые документы, основные правила, нюансы процедуры
Где размещают
Многих интересует, где должен висеть план эвакуации. Конкретных требований к выбору места размещения нет, но обычно его вывешивают на среднем уровне. Высота 1,2 — 1,8 м, позволяет хорошо разглядеть обозначения.Нежелательно вешать схему эвакуации возле лифтов, так как в горящих зданиях ими запрещено пользоваться.
Оптимальное место – холл, фойе, зона отдыха, ожидания. План должен подсказывать, где находится выход, когда его не видно. Можно повесить его в 3-4 метрах от входа или лестничной клетки.
Хотя бы раз в месяц план следует осматривать, протирать пыль, очищать от загрязнений. Яркостные свойства проверяют по эталонному образцу. Они не должны уменьшаться из-за недостатка освещения, механических или иных повреждений.
Составление плана эвакуации при пожаре
Есть шуточное руководство по составлению ПЭ: чтобы составить надежный план пожарной эвакуации, следует поджечь здание и посмотреть, откуда будут выбегать люди. Рациональное зерно этой шутки состоит в том, что в плане эвакуации указываются самые простые и надежные способы выбраться из опасной зоны в кратчайший срок.
Например, если сотрудники постоянно выходят на улицу через боковой выход, и он всегда открыт, нет смысла прописывать в ПЭ путь к центральному входу через пол-этажа. Целесообразнее будет одну часть сотрудников (из близко расположенных кабинетов) направить через боковой выход, другую – через центральный.
Требования к планам эвакуации устанавливает ГОСТ Р 12.2.143-2009. Необходимость составлять ПЭ прописана в «Правилах противопожарного режима в РФ». Они обязательно должны быть на:
- объектах с массовым пребыванием людей (ТРЦ, детсады, зоопарки, школы, др.). Причем в качестве такого объекта может выступать транспортное средство, какой-то нестандартный в понимании «здание/сооружение» объект;
- этажах, в пределах которых одновременно работает более десяти людей.
Для жилых домов составлять ПЭ законодательство не требует. Но это можно сделать в прямом смысле слова «для себя». Если здание перестраивается, проводится его реконструкция, перепланировка, то план эвакуации переделывается. Если же меняется собственник, директор, начальник пожарной службы, то переподписывать ПЭ не нужно.
ПЭ изготавливаются из белых, желтовато-белых фотолюминесцентных материалов. Буквы, цифры, графика наносятся черным, исключая те символы, цвета которых определены в ГОСТах (эвакопути – зеленым, стандартные символы – соответствующими цветами, например, электрический щиток – желтый треугольник с молнией).
План пожарной эвакуации включает:
- текстовую часть. Прописывается, в какой последовательности и что именно делать после обнаружения пожара, обязанности ключевых лиц, указываются «горячие» телефоны, поясняются спецобозначения, приводится другая полезная информация.
- графическую часть. Это поэтажные либо секционные планы объекта с указанием:
— эвакуационных выходов и путей к ним со всех рабочих мест, кабинетов, секций здания; — аварийных выходов; — лестниц, задействованных в ходе эвакуации; — где размещаются первичные средства пожаротушения, ПЭ, связь, др.
Однозначных требований к шрифтам, линиям, другим элементам чертежа законодательство не устанавливает. Есть такие требования к высотам графических элементов:
- шрифта – 3 мм и более;
- символов – 8-15 мм.
Единственное требование – в пределах одного чертежа ПЭ символы и шрифты выполняются в едином масштабе, чтобы план легко понимался. Чтобы читающий план эвакуации человек мог быстро сориентироваться по чертежу, место расположения этого плана пожарной эвакуации обозначается пометкой «Вы находитесь здесь».
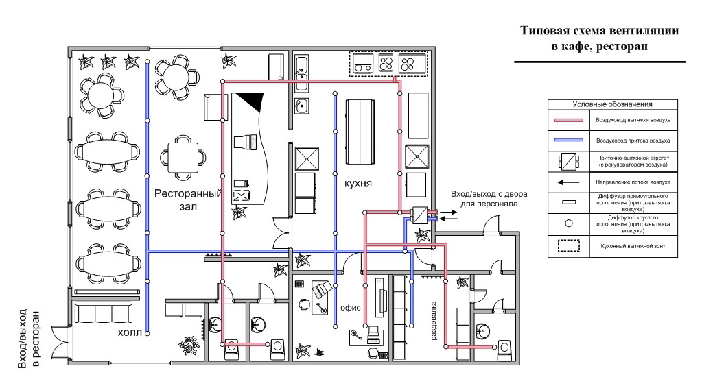
Особенности организации системы вентиляции ресторана или кафе
Система вентиляции на объектах общественного питания имеет ряд особенностей:
- Большое количество вытяжных систем. Помимо общеобменной вытяжки из зала и вытяжки из санузлов, присутствуют технологические вытяжки, обеспечивающие отвод воздуха от зонтов в зоне кухни, а так же из вспомогательных и подсобных помещений.
- Так как выброс воздуха от всех технологических вытяжек должен осуществляться выше уровня кровли здания, а кафе и рестораны часто расположены на первых этажах общественных и жилых зданий, то решением этой проблемы является установка воздуховодов по внешней стене здания. Во вновь строящихся зданиях, где предполагается обустройство предприятия общественного питания, воздуховоды для указанных систем прокладываются внутри здания, в предусмотренных для этого вентиляционных шахтах.
- Для компенсации вытяжек необходим приток свежего воздуха. В зале баланс должен быть положительным (свежего воздуха должно поступать больше, чем удаляться), в зоне кухни наоборот – отрицательным. Это необходимо для исключения распространения запахов из зоны кухни в обеденный зал.
- Объем удаляемого воздуха зависит от количества кухонного оборудования и размеров помещений. Соответственно и приточного воздуха требуется немало. Для подогрева этого воздуха требуется большое количество энергии (особенно в зимний период). Если количество энергии (электрической или тепловой), выделенной на вентиляцию ограничено, то применяют различные меры, направленные на экономию энергии – используют тепловые насосы, рециркуляцию (где возможно), каскадное регулирование.
- В летний период для поддержания комфортной температуры используют кондиционирование. Переохлаждать для этих целей приточный воздух нерационально, так как это вызывает дискомфорт у посетителей. Поэтому приточный воздух летом охлаждают до комфортоной температуры 20-22*С, а теплоизбытки удаляют с помощью кондиционеров. Для этих целей обычно применяют мультизональные системы (VRV или VRF) или системы чиллер-фанкойл с внутренними блоками канального или кассетного типа. В бюджетном варианте можно использовать сплитовые блоки полупромышленных серий.

Компания «Инженерные системы и технологии» готова выполнить все виды работ по оборудованию кафе или ресторана системами вентиляции и кондиционирования, согласно вашего проекта, или принять участие в разработке нового проекта.
Утверждение
Когда разработан и распечатан, многих интересует вопрос, кто должен его утверждать? Надо ли для этого обращаться в службу пожарного надзора? Закон отвечает на этот вопрос отрицательно.
Утвердить план обязан руководитель организации или объекта, подлежащего пожарной охране. Достаточно поставить его подпись в верхней части листа с указанием имени и должности. Такое требование неслучайно, поскольку руководитель входит в число лиц, ответственных за пожарную безопасность.
К пожарному инспектору можно обратиться за консультацией, чтобы он указал ошибки. Если же такой возможности нет, то необходимо изучить нормативные документы или попросить консультации более опытного человека, знакомого с требованиями пожарной безопасности. Гарантию правильности составления могут давать компании, которые непосредственно занимаются разработкой и печатью документа.
Составные части пожарной сигнализации
Комплекс пожарной сигнализации для кафе и ресторанов по составу оборудования ничем не выделяется. Туда входят:
- Контрольная панель (ПКП);
- Извещатели (автоматические и ручные);
- Оповещатели (звуковые, речевые, таблички);
- Система пожаротушения (при необходимости);
- Источник бесперебойного питания;
- Первичные средства пожаротушения;
- План эвакуации и пр.
Пожарные извещатели. В зале устанавливаются дымовые извещатели, они недорогие и быстро реагируют. А вот для зон готовки подойдут комбинированные извещатели (дым + тепло), датчики тепла или пламени. Потому что дымовые будут ложно срабатывать из-за дыма от плиты и пара.
Дополнительно лучше предусмотреть пару датчиков для мест с горючим декором (занавески, макеты, плакаты, украшения и т. д.).
На путях эвакуации устанавливаются ручные извещатели.
Система оповещения. Для общепита на первом этаже вместимостью до 50 человек, устанавливаются только сирены, от 50 до 200 — сирены и табло «Выход». Для подвальных и цокольных заведений вместимостью до 50 человек — сирены и табло «Выход», от 50 — речевое оповещение и табло «Выход».
Средства пожаротушения. Огнетушители, пожарные краны и модули с пожаротушащим веществом помогают локализовать и ликвидировать пожар.
Бесперебойный источник питания. Позволит системам продолжать работу при отключении электроэнергии.
План эвакуации. Разрабатывается для всех объектов с массовым пребыванием людей. Можно выбрать между обычным и фотолюминесцентным.
Инструкции для персонала. Размещаются на видных местах, содержат порядок действий при срабатывании пожарной сигнализации.
При необходимости пожарную и охранную сигнализации можно объединить в единую систему.
Нюансы проектирования
Проектируется вентиляция для ресторанов и кафе согласно техническому заданию, руководствуясь Справочным пособием к СНиП 2.08.02-89 в вопросах проектных работ предприятий общественного питания.
Если с монтажом справитесь сами, проектирование все же доверьте специалистам
Задание должно содержать следующие данные:
- предполагаемое число посетителей;
- количество персонала согласно штатному расписанию;
- число и вид источников, вырабатывающих тепло;
- технические данные оборудования для приготовления пищи, хранения продуктов, пр.
- планировка посадочных мест в зале;
- предполагаемый процент курящих гостей для разбивки зала на чистые зоны и места для курильщиков.
В обязательном порядке обустраиваются автономными вытяжными системами вентиляции такие помещения:
- Зал для банкетов.
- Коктейль-холл.
- Производственные помещения. Здесь можно соединять местные зонты-вытяжки над варочной поверхностью, мойкой, разделочным столом, пр. в одну вытяжную систему.
- Боксы для пищевых отходов.
- Санузлы, помывочные комнаты с раздевалками.
- Камеры с находящимися в них для охлаждения овощами, фруктами, зеленью.






























