Какие действия следует провести для постройки туалета на даче своими руками
![]()
Несмотря на первый взгляд, простоту конструкции туалета на дачном участке, он относится к основным постройкам. Самой главной постройкой на участке является санузел, многие подтвердят, что за городом, без него просто невозможно находиться.
Конечно, туалет, который построен на улице ничем не заменит комфортной уборной, он обеспечит лишь некоторые удобства. Но без него невозможно полноценно работать на приусадебном участке.
Санитарные нормы постройки туалета нужно знать и создавать постройку, заданную ими.
Строительство туалета не составляет особой сложности и не требуется привлекать специалистов.
Но в постройки нужно соблюдать некоторые особенности.
Основные нормативы:
- Удобное место под постройку туалета. Не удачное место может привести к загрязнению зоны вокруг сооружения, почвы, воды. Поэтому не соблюдение санитарных норм и незнание может привести к проблемам со здоровьем и к привлечению штрафов санитарной службы.
- Удостовериться что строительство не создаст неудобства соседям.
- Обдумать метод, как будет происходить опустошение выгребной ямы.
- Если уровень грунтовых вод высокий, то постройка туалета должна быть хорошо заделана, во избежание загрязнения воды.
Вариантов для выбора постройки туалета достаточно, но на выбор может повлиять:
- Бюджет, выделенный для постройки туалета;
- Частота использования данного сооружения;
- Уровень высоты грунтовых вод;
- Средства, выделенные на ремонт и утилизацию отходов.
Как построить туалет Теремок
На дачном участке можно построить туалет своими руками который по внешнему виду напоминает теремок из русских народных сказок. Крыша у такого теремка делается очень крутой, что придаёт ему необычный вид. Визуально кажется, что основным элементом такого теремка является крыша так как она занимает значительное место в конструкции.

Делая такой дачный туалет размеры его можно задать любого размера. Обычно делают туалет с выгребной ямой или устанавливают ёмкость с торфом или с химическими элементами. Иногда эти теремки утепляют чтобы посещая их в зимний период находится в более комфортных условиях. Из-за крутого ската крыши такого теремка зимой не скапливается на нём снег. Постройка туалета начинается прямо на выгребной яме или на ровной площадке с которой его потом переносят и устанавливают на яму.

Выгребную яму на даче можно сделать из старых автомобильных покрышек вкопав их в землю. Боковая стенка в туалете делается не вертикально, а с небольшим уклоном в целях расширения пространства в туалете. Крыша делается сильно заострённой и поэтому половина высоты теремка занимает крыша. Внутри можно поставить в туалет унитаз или сделать широкую лавку с отверстием.

Первым делом делается выгребная яма или закапывается ёмкость в которой будут скапливаться отходы вашей жизнедеятельности. Затем делают небольшой фундамент, ленточный шириной 0,25 м или столбчатый по углам 0,25 х 0,25 м. В глубину фундамент закапывают не глубоко около 30 см. На фундамент укладывают рубероид сложенный в два слоя чтобы поднимающая вода по фундаменту не переходила на деревянные конструкции. Из фундамента в нескольких местах должны торчать металлические штыри с помощью которых будет крепиться теремок к фундаменту. К столбчатому фундаменту сначала крепят лаги на которых будет строиться или крепиться к ним теремок.

Туалет собирают согласно чертежу туалета теремок. Согласно схеме туалета теремок сначала из брусьев собирают каркас всего туалета. Потом делают пол из досок и обшивают боковые и заднюю стенки.

После этого приступают к изготовлению стульчака, а если будет устанавливаться унитаз то нужно будет под пол установить дополнительные бруски к которым будет крепиться унитаз. Переднюю часть теремка не нужно закрывать всю, а нужно в верхней части оставить отверстие которое будет работать как вентиляция в уличном туалете, а в дневное время суток как подсветка для туалета.

На крышу обычно укладывают профлист но предварительно нужно будет прибить к стропилам обрешётку на которой будут крепится профлист. Сверху на профлисты устанавливают конёк чтобы вода во время дождя не попадала под профлисты. Выступающие профлисты с торца обиваются снизу наличниками чтобы закрыть щель между профлистом и стропилами. В последнюю очередь на туалет из профнастила устанавливают дверь закрепив её на шарнирах. Затем с внутренней и наружной стороны на двери крепится защёлка и ручка.
Постройка
Как говорилось, построить деревянный или какой другой туалет поможет проект. Пошаговая инструкция, которую должен иметь чертеж, следующая:
Определяются размеры: глубина – 1 м, ширина – 1,5 м, высота – не меньше 2,2 м. Далее, опираясь на проект, размечаем участок.
Готовится опора, которая может быть из деревянных или бетонных столбиков. Четыре асбоцементные трубы покрывают битумной мастикой и зарывают в землю на 0,5-0,7 м. Хотя этой глубины может не хватать, что непременно должен учитывать чертеж. Так, может потребоваться закапывание на глубину 0,9-1 м. Трубы на 1/3 заполняют цементным раствором, в них вставляются столбы-опоры. Для их закрепления доливается раствор цемента, если необходимо. Непременно заливаются бетоном и опорные столбики! Материал для каркаса и отделки выбирается в зависимости от пожеланий и возможностей.Схемы столбчатого фундамента под туалет
Что нам дальше велит делать проект? Конечно, изготавливать каркас. Данная конструкция может представлять собой коробку, сваренную из металлических уголков. Несущих уголка должно быть четыре. На эти уголки крепится деревянный стульчак. Аналогичный каркас может быть сделан из деревянного бруса 50х60 мм.
Теперь, пожалуй, самая емкая часть работы. Смотрим в чертеж, и делаем корпус (будку). Тут к деревянному каркасу туалета могут быть прибиты с помощью гвоздей доски, которые должны быть плотно пригнаны. Материалом замены может служить: шифер, профнастил, металлический профиль. Лист любого материала прикручивается при помощи саморезов. Если каркас из железных уголков, к нему удобнее крепить шифер или профнастил. В задней стенке будки туалета неплохо проделать два отверстия: вверху – для вентиляции; внизу – чтобы вытаскивать емкости с нечистотами.Разные дачные туалеты
Обшить будку можно: шифером, пиломатериалами, металлическими листами, профнастилом. Также можно по-морскому – шлюпочной доской. Эта доска лучше показывает себя в местности с обильными осадками, однако порывы сильного ветра она держит несколько хуже, чем шпунтовая.
Крыша туалета. Проект может предусматривать сразу несколько вариантов устройства крыши. Материалом кровли может быть: шифер, кровельное железо, дерево. Деревянная крыша туалета покрывается рубероидом для защиты от влаги. Наклон делается к задней стене.
Место для сидения. Для этого можно даже составить отдельный чертеж. Каркас сидения делают из деревянных брусков. Передняя часть получившейся конструкции ставится на пол, задняя крепится на уголки или деревянные брусья каркаса. Обивается каркас шлифованными досками. Далее вырезается «основное» отверстие. Углы непременно должны быть очищены от заусенцев! Место может быть окрашено или покрыто лаком.Каркас стульчака
Неважно, что подразумевает ваш проект — деревянную дверь или пластиковую покупную, над ней, на участке до крыши туалета, должно быть проделано отверстие для естественного освещения кабинки в дневное время. Механизмом закрывания двери может быть: защелка, шпингалет, крючок, простой замок. Защелки, кстати, должны быть и внутри
Защелки, кстати, должны быть и внутри.
Интерьер. В кабинке туалета на стену вешается деревянный короб для засыпки. В уголок ставится ведро или короб для использованной туалетной бумаги. Под стульчаком должна быть емкость для нечистот объемом 20-30 л, если нет выгребной ямы. В принципе, внутри туалета может быть даже умывальник, под который устанавливается ведро для грязной воды.
Теплый дачный туалет на зиму
Зимой бежать посреди ночи в туалет, пусть даже и построенный с любовью своими руками – удовольствие не для всех. Поэтому многие люди мечтают о теплом туалете.
Тут сразу следует оговориться – теплым он будет лишь условно. В лучшем случае, находясь в постройке, вы будете защищены от снега и ветра. Тепло здесь не будет. Если только вы не собираетесь подключить туалет к системе отопления дома, установить в нем электрический обогреватель или же поставить буржуйку, которую станете постоянно подкармливать топливом. Так что, постараемся обойтись минимумом удобств.
Главное утеплить туалет. Сделать это можно как в деревянной, так и в кирпичной постройке. Подойдут разные теплоизоляционные материалы, но проще всего использовать простой пенопласт. Он имеет множество достоинств:
- низкая стоимость,
- малый вес,
- легкость обработки и подгонки,
- высокая теплоизоляция.
Туалет обшивается пенопластом изнутри. Для этого материал нарезается на куски подходящей формы и размера – проще всего сделать это при помощи простой ножовки по дереву. При необходимости края можно обработать крупной наждачной бумагой или наждаком. Они должны быть ровными, чтобы при подгонке не оставалось щелей. К стенам пенопласт крепится при помощи саморезов с шайбами – последние снизят давление на хрупкий утеплитель. Кстати, сильно затягивать их вообще не нужно – благодаря легкости материала всего пара шурупов легко смогут удержать лист площадью в несколько квадратных метров. Утеплять нужно стены, дверь и особенно крышу – тепло поднимается вверх и на крышу приходится львиная доля теплопотерь.
Когда обшивка своими руками завершена, для большей привлекательности туалет обшивается изнутри ещё и фанерой. Она скрывает пенопласт и снижает риск его случайного повреждения. В качестве крепежа используются всё те же шурупы.
Если же вы хотите теплый туалет на дачу, то и на этот случай есть определенные идеи. Например, хорошим выбором станет установка инфракрасных ламп. Они потребляют сравнительно немного энергии и при этом способны быстро повысить температуру в небольшой постройке до более-менее комфортной.
Видео
Правила выбора места под туалет
Перед тем как установить туалет на даче, выбирают подходящее место для него с учетом типа сооружения, а также характеристик выгребной ямы
При поиске территории для строительства обращают внимание на следующие моменты:
Важно учитывать, насколько глубоко залегают грунтовые воды на дачном участке. При высоте УГВ более 2,5-3 м делать выгребную яму нельзя, подойдет только вариант уборной с обработкой отходов специальными порошками
В процессе выбора места для устройства туалета на даче учитывают расположение построек на соседских участках и собственной территории
Клозет возводят вдали от других сооружений. Обязательно учитывают действующие санитарно-гигиенические нормы и соблюдают нормируемые расстояния от других построек на даче. Сооружение возводят в таком месте, к которому несложно обеспечить подъезд машины ассенизаторов. При выборе места учитывают ландшафт территории. В случае размещения в самой низкой точке участка постройку будут заливать талые воды в осенне-весенний период. На возвышении часто присутствуют сильные сквозняки и ветра.
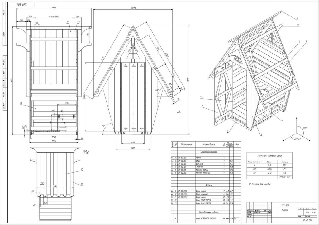
Туалет типа «Шалаш» (треугольный)
Эта туалетная кабинка имеет вид треугольника. Боковые стенки одновременно являются скатом кровли. Построить такой туалет своими руками можно за несколько часов. Чертежи с примерными размерами даны на картинке ниже. В них можно и нужно вносить корректировки: все габариты даны для людей средней комплекции.
![]()
Чертеж дачного туалета типа «Шалаш» (чтобы увеличить размеры картинки, щелкните по ней левой клавишей мышки)
Если нужны более широкие двери, можно не раздвигать основание, которое в данном проекте и так немалое, а сделать двери нестандартной формы — как на рисунке справа.
Обшивка отделочными материалами в туалетах «Шалаш» проводится только впереди и сзади. На боковые поверхности укладывают кровельный материал. Можно использовать любой, но неплохо смотрится мягкая черепица или полимерный шифер.

Имея чертежи треугольный туалет на даче построить проще простого
На фото справа обрешетка сделана под листовой кровельный материал — использовали шифер из пластика — он есть разных цветов, стоит относительно недорого, монтируется просто — гвоздями с прокладками.
Если использовать планируете мягкий кровельный материал — рубероид, битумную черепицу или что-то похожее, обрешетку делайте сплошную — из листа влагостойкой фанеры, ДСП, ГВЛ. Их крепят к каркасу саморезами, сверху настилают кровельные материалы.
Про вентиляцию в уличном туалете и душе читайте тут. О том, как избавится от запахов написано в этой статье.
Особенности теремка
Дачный туалет-теремок выглядит как домик с очень острой и высокой крышей, скаты которой доходят, как минимум, до середины строения. По фото готовых туалетов можно понять, что внутри теремка просторнее, нежели в обычном туалете прямоугольной формы. Это благодаря наклонным боковым стенам и скатам кровли, существенно увеличивающим внутреннее пространство теремка на уровне середины стен, пол, при этом, имеет тот же размер, что и в стандартной конструкции.
Получается, для строительства туалета-теремка не потребуется больше места, но внутри него будет просторно и уютно.
Есть еще несколько плюсов такого типа конструкции:
- Длинные скаты надежно защищают боковые поверхности туалета-теремка от сквозняков и сильного ветра. Рекомендуется располагать теремок так, чтобы одна из его боковых стен находилась с подветренной стороны.
- Туалет-теремок просторный, поэтому его спокойно можно утеплять с помощью любого изоляционного материала и использовать в зимнее время года – места в туалете-теремке достаточно.
- На сильно покатой крыше не будет скапливаться снег, там не застаивается вода, что сводит к минимуму вероятность протечек кровли и ее деформации вследствие нагрузки.
- Если украсить туалет-теремок красивыми деталями (коваными навесами, щеколдами, резным окошком) получится настоящий сказочный домик, который, действительно, не стыдно показать соседям и гостям.
- Туалет типа теремка подходит и для установки на обычную выгребную яму, и для современных торфяных и химических перерабатывающих систем.
Есть в конструкции туалета-теремка и некоторые недостатки, например, для кровли потребуется большее количество материала, а стоит он недешево. Зато стены туалета можно сделать практически из любого материала, вполне подойдет древесина, остатки кирпича, шлакоблока или пенобетона. Можно использовать даже толстую фанеру – все зависит от возможностей и фантазии мастера.
Очень важно во время строительства туалета такой сложной формы, как теремок, соблюдать все углы и точно вымерять размеры, иначе детали впоследствии не будут стыковаться между собой
Как сделать деревянный дачный туалет — процесс устройства
Непосредственно устройство туалетного домика начинается с разметки и бурения лунок, где будут расположены столбики, выполняющие роль опор.
Деревянный туалет на даче
Фундамент для туалета
В случае использования туалета в течение всего года надо делать фундамент, углубленный ниже точки, до которой промерзает земля. Обычно применяется форма прямоугольника.
Строим деревянный туалет на даче
Каркас для туалета
В нашем случае, монтируется из дерева, предпочтительнее всего из бруса, подобранного по предварительно определенным размерам. Внешней обшивки сооружения может оказаться недостаточно, поэтому необходимо усиление каркаса изнутри раскосами или косынками.
Деревянный туалет на даче
Крыша для туалета
Так как туалет имеет небольшие габариты, поэтому можно настилать крышу без применения лаг. Для кровли можно использовать материалы практически без ограничений. Единственное соображение, которое следует брать в расчет, заключается в том, что желательно создать на участке единый архитектурный ансамбль. Тогда для крыши туалета надо использовать тот же материал, что и для дома. Последнее замечание касается черепичного покрытия, для которого требуется укрепление кровельного каркаса.
Деревянный туалет на даче
Обшивка стен и устройство полов
Для обшивки туалета внутри и снаружи вполне подойдет обычная вагонка или любой другой имеющийся материал. Далее навешивается дверь, и настилаются полы, которые на свой вкус можно сделать деревянными с последующим окрашиванием или уложить на бетонное основание керамическую плитку.
Вытяжная вентиляция
Обычно располагается на задней стенке сооружения, вентиляционная труба должна быть выведена выше уровня крыши. В круглогодичном туалете сегодня даже обустраивают маленький пятачок для обогрева.
Устройство вентиляции для уличного туалета пошаговоВентиляционный стояк для дачного туалета
Не стоит пренебрегать правилами во время строительства дачного туалета, пусть это и несложная постройка, тем не менее, очень важная.
Как показывает практика, построить туалет на дачном участке можно своими силами, не прибегая к посторонней помощи.
Виды и габариты «кабинетов задумчивости»
Размеры дачного туалета бывают разными. На эти параметры влияют особенности строения, его расположение, наличие либо отсутствие выгребной ямы. Основные типы конструкций:
- Традиционное «деревенское» сооружение, оборудованное выгребной ямой.
- «Люфт-клозет». Здесь тоже присутствует яма для нечистот, но она абсолютно герметична. Такой туалет обязателен, если место, отведенное для него, располагается близко к источнику воды, жилью. Если уровень грунтовых вод высок, «люфт-клозет» — единственный вариант.
- «Пудр-клозет» — санузел с домиком, но без ямы. Ее заменяют пластиковым баком, бочкой либо ведром. С неприятными запахами воюют с помощью адсорбентов — припудривают содержимое емкости древесной золой или опилками, песком, торфом.
Обычные размеры туалета: высота от потолка до пола — 2000-2100 мм (для «шалаша» — 3000), там, где находится стульчак — 1900-1950. Сиденье унитаза возвышается над полом на 400-500 мм. Глубина строения — 1500 мм, ширина — 1200. Эти величины для домиков «шалашей» — 1500, 2000, для «избушки» — 1500, 1000 соответственно. Самая популярная модель «скворечник», она имеет односкатную крышу. Высота «фасада» — 2300 мм, задней стенки — 2000. Ширина и глубина — 1000 мм, это минимум.
Строительство деревянного туалета своими руками, чертежи

Основное предпочтение отдается постройкам из дерева. Стоимость постройки не большая и не требует особых навыков. Деревянный туалет можно построить в стиле бревенчатой избушки или маленького домика. Если чертеж дачного туалета придумать самостоятельно, то можно получить не только нужную, а еще и постройку, которая украсит ваш участок. В качестве отделки можно взять вагонку. Достоинством деревянного туалета является то, что его можно легко переставить на новое место.
Недостатки деревянных построек.
- под влиянием солнца древесина деформируется, быстро высыхает и лопается;
- выгорание дерева от действия ультрафиолета;
- влажность и сырость способствует деформации каркаса постройки;
- вследствие сырости образовываются грибки, которые разрушают древесину, и она начинает гнить и выделять неприятные запахи.
Для того чтобы продлить срок службы постройки, ее необходимо обработать специальными средствами в виде пропитки. Дерево можно обработать грунтовкой и покрыть краской.
Особенности теремка
Дачный туалет-теремок выглядит как домик с очень острой и высокой крышей, скаты которой доходят, как минимум, до середины строения. По фото готовых туалетов можно понять, что внутри теремка просторнее, нежели в обычном туалете прямоугольной формы. Это благодаря наклонным боковым стенам и скатам кровли, существенно увеличивающим внутреннее пространство теремка на уровне середины стен, пол, при этом, имеет тот же размер, что и в стандартной конструкции.
Получается, для строительства туалета-теремка не потребуется больше места, но внутри него будет просторно и уютно.
Есть еще несколько плюсов такого типа конструкции:
- Длинные скаты надежно защищают боковые поверхности туалета-теремка от сквозняков и сильного ветра. Рекомендуется располагать теремок так, чтобы одна из его боковых стен находилась с подветренной стороны.
- Туалет-теремок просторный, поэтому его спокойно можно утеплять с помощью любого изоляционного материала и использовать в зимнее время года – места в туалете-теремке достаточно.
- На сильно покатой крыше не будет скапливаться снег, там не застаивается вода, что сводит к минимуму вероятность протечек кровли и ее деформации вследствие нагрузки.
- Если украсить туалет-теремок красивыми деталями (коваными навесами, щеколдами, резным окошком) получится настоящий сказочный домик, который, действительно, не стыдно показать соседям и гостям.
- Туалет типа теремка подходит и для установки на обычную выгребную яму, и для современных торфяных и химических перерабатывающих систем.
Совет! Еще больше увеличить свободное пространство внутри теремка можно, установив унитаз вместо привычного для дачи стульчака и лавки.
Есть в конструкции туалета-теремка и некоторые недостатки, например, для кровли потребуется большее количество материала, а стоит он недешево. Зато стены туалета можно сделать практически из любого материала, вполне подойдет древесина, остатки кирпича, шлакоблока или пенобетона. Можно использовать даже толстую фанеру – все зависит от возможностей и фантазии мастера.
Очень важно во время строительства туалета такой сложной формы, как теремок, соблюдать все углы и точно вымерять размеры, иначе детали впоследствии не будут стыковаться между собой
Строительство туалета для дачи: чертеж с размерами для конструкции типа «Скворечник»
Конструкция «Скворечника» состоит из древесины, которая может быть ообшита любым другим видом материала. Допускается строительство одно- или двускатной крыши. Данный вид клозета монтируется в качестве надземной постройки над выгребной ямой.
Типовый проект «Скворечника» с размерными параметрами:
| Элемент конструкции | Размер, м |
| Задняя стенка (высота) | 2 |
| Ширина | 1 |
| Передняя стенка (высота) | 2,3 |
| Площадь основания | 1х1 |
При установке конструкции деревянного туалета необходим обязательный контроль размещения поверхностей по вертикали и горизонтали. Для этих целей рекомендуется использовать строительный уровень.
Чертеж туалета «Скворечник»: 1 — обвязка, 2 — стойка, 3 — дверь, 4 — ручка, 5 — поперечина двери, 6 — передняя стенка, 7 — стропила крыши, 8 — кровля, 9 — вентиляционный стояк, 10 — дефлектор, 11 — боковая стенка, 12 — крышка выгребной ямы, 13 — кирпичные опоры, 14 — задняя стенка
Материалы для строительства «Скворечника»
Для проведения работ позаботьтесь о наличии:
- рубероида — в количестве 2 м?;
- бетонного бордюра (2 шт., длина – 2 м) или песчано-цементного блока (4 шт.);
- дверного блока (2000х900 мм);
- песка;
- вагонки (40 шт., 87х3000 мм);
- обрезной доски (4 шт., 50х100х6000 мм; 3 шт., 32х90х6000 мм);
- профильного листа из стали с оцинковкой (2000х1520х0,4 мм);
- деревянного бруса (1 шт., 50х50х600);
- комплектующих к двери (шпингалета, петель, ручки);
- крепежных элементов (саморезов, гвоздей);
- материала для финишного покрытия (лакирующего или красящего состава).
Туалет «Скворечник», фото 1: подготовка материалов и монтаж каркаса
В целях утепления конструкции следует приобрести пенопласт. После окончания строительства каркас обшивается им изнутри. Вы можете выполнить внутреннюю отделку красивыми материалами (по желанию).
Как построить туалет на даче своими руками: поэтапное строительство «Скворечника»
Инструкция к строительству «Скворечника» (пошаговое руководство):
организация выгребной ямы. Минимальный размер резервуара составляет 1х1х2 м. На дне выполняется подушка из щебня или битого кирпича;
Туалет «Скворечник», фото 2: устройство технологического отверстия в полу
- строительство фундаментной части. Для этого бордюр из бетона устанавливается так, чтобы края ямы располагались от него на расстоянии не более 0,2 м. Бордюр будет играть роль перекрытия. Процесс монтажа бордюра предполагает вкапывание таким образом, чтобы бетонное основание возвышалось над уровнем почвы не более чем на 0,1-0,15 м. Если используются песчано-цементные блоки, их следует вкопать по углам. На них в будущем будет установлен весь каркас;
- монтаж рубероида. Материал укладывается поверх основания в 3-4 слоя в качестве изолятора от влаги;
- строительство надземной части (каркаса из дерева), его отделка. В качестве обшивочного материала для каркаса может использоваться деревянная доска или вагонка. Настил для пола делается из толстых досок. Минимальная толщина для напольного покрытия составляет 4 см. Рекомендуется использовать породы дерева, обладающие повышенными прочностными характеристиками. К таким породам относится лиственница, бук, дуб и т.п.
Туалет «Скворечник», фото 3: обшивка внешних стен конструкции
Заключительные работы по созданию «Скворечника»
К заключительным работам относятся следующие этапы:
- формирование отверстия в полу. Форма прорези в этом случае может быть произвольной (круглой, ромбовидной, овальной, в виде сердечка), главное, чтобы диаметр его составлял не менее 30 см;
- монтаж дверной конструкции. Для удобства в полотне двери можно выполнить небольшую прорезь в виде окошка, чтобы солнечный свет мог проникать внутрь каркаса. Это оконце можно оставить свободным или остеклить;
- обустройство кровли. Крыша «Скворечника» может укрываться различными видами материалов. Лучше всего для этих целей подходит асбестоцементный лист, рубероид, профильный лист, изготовленный из стали;
- нанесение финишного слоя. Поверхность изделия следует обработать лакирующим составом или краской. Рекомендуется использовать масляный краситель.
Туалет «Скворечник», фото 4: монтаж вентиляционной трубы и обустройство кровли
При обустройстве туалетов не стоит забывать об организации вентиляции. Достаточно будет даже простейшего варианта. Эта система предназначена для вывода воздуха из ямы с отходами наружу. В качестве материала для изготовления вентиляции может быть использована труба. Минимальный диаметр изделия – 10 см.
Для установки трубы в подиумной части туалета, а также в его крыше выполняются прорези соответствующего диаметра. Труба должна возвышаться над крышей минимум на 0,2 м.
Туалет «Скворечник», фото 5: дачный туалет, построенный своими руками
Проекты душа и туалета для дачи
Перед планированием хозблока изучают правила СНиП. Затем выбирают участок, в соответствии с параметрами:
выгребную яму обустраивают на расстоянии 20 м от колодца и на расстоянии 5 м от жилого дома;
Важно! Этим правилом пренебрегают, если обустраивают пудр-клозет или биотуалет, т. к. нечистоты не имеют прямого контакта с почвой
нечистоты не имеют прямого контакта с почвой.
4 м от насаждений; 1 м от хозяйственных построек; 2 м до забора; 10 м от водопровода.
Помимо СНиП, учитывают возможность подвода воды и электричества. Кабинки должны освещаться, чтобы в темное время суток была возможность принять душ. На крышу душа устанавливают бак для забора воды, поэтому подвод воды необходимо продумать еще на стадии проектирования. Некоторые дачники обустраивают обогрев, поэтому необходимо запланировать электронагревательные элементы и утеплительные стройматериалы.
Проект хозблока для дачи можно обустроить в нескольких вариантах. Первый – строение прямоугольной формы длиной 4 м и шириной 2 м. Помещение разделено на три отсека:
- туалет;
- кладовая;
- душ с раздевалкой.
Каждый отсек оснащен дверью, а сарай – окном. Размеры туалета и душа 1,05 м*2 м, общей площадью 1,61 м2. Длина кладовой 2 м, ширина 1,9 м, общая площадь 3,23 м2.

Второй вариант – бытовка для дачи прямоугольной формы высотой 2,5 м, длиной 5,8 м, шириной 2,3 м. Строение оснащено одной входной дверью и двумя окнами. При входе в хозблок попадают в коридор, из него две двери напротив друг друга. Одна ведет в санузел, оснащенный душевой кабиной и туалетом. Вторая дверь ведет в комнату. Этот отсек можно использовать как кладовую или как жилую комнату на время строительства основного дома. Бытовка позволяет обустроить теплый душ и туалет на даче, поместив систему отопления в коридоре.

Третий вариант проекта – хозблок с туалетом и душем шириной 2,3 м, длиной 5 м, высотой 2,5 м. Помещение разделено на три: туалет, душ с раздевалкой, сарай. В каждый отсек ведет своя дверь. Туалет длиной 2,3 м и шириной 1,1 м, общей площадью 2,53 м2. Душ длиной 2,3 м, шириной 1,8 м, общей площадью 4,14 м2. Душевая оснащена раздевалкой и лавочкой. Кладовая длиной 2,3 м, шириной 2,1 м, общей площадью 4,83 м2.

Следующий вариант – проект хозблока с двускатной крышей, отличается тем, что вход в санузел осуществляется с одной стороны, а в кладовую – с противоположной. Общая площадь постройки 11,15 м2, ширина 3 м, длина 4,5 м. Душ и туалет для дачи имеют отдельные комнаты, каждая из которых оснащена дверью и слуховым окном. Площадь туалета 1,75 м2, ширина 1,23 м, длина 1,475 м. Площадь душа с раздевалкой 2,1 м, ширина 1,47 м, длина 1,475 м. Сарай общей площадью 7,3 м2, шириной 3 м и длиной 2,725 м оснащен входной дверью и окном.

Интересный вариант – угловой хозблок и душ с туалетом для дачи общей площадью 13,68 м2 длиной 5 м. Имеет три отсека:
- туалет общей площадью 1,98 м2 с входной дверью и слуховым окном;
- душ с раздевалкой, площадью 3,06 м2 с окном и дверью;
- комнатой площадью 8,64 м2 с входной дверью и окном.

Выбор подходящего проекта для туалета
Прежде чем покупать материалы и приступать к строительству, нужно выбрать готовый проект или создать его самостоятельно. Это может быть классический сортир, с выгребной ямой или оригинальный туалет с био-септиком. Если грунтовые воды подступают близко к поверхности, то выкапывать выгребную яму не стоит – лучше остановить собственный выбор на модели септика с поверхностной емкостью. Но, классический вид клозета проще и удобнее.
На заметку! В отдельных случаях можно совместить септик с компостной ямой – содержимое можно использовать как удобрение для огорода.
Классический клозет с выгребом

Самый простой и распространенный вид деревенского туалета – классический сортир с выгребной ямой. Такую конструкцию строят в удалении от источников воды. По нормам, его можно ставить не ближе чем в 1 м от края участка, и в 25 м от колодцев, погребов или водоемов. Все отходы попадают в яму, расположенную под «домиком» — выгреб должен быть достаточного объема, в особенности при постоянном использовании такого туалета. Главные преимущества:
- простота конструкции;
- длительность заполнения;
- многофункциональность ямы.
При условии подготовки выгреба большого объема, многие стараются совместить проект классического сельского сортира с душевой кабиной. В таких случаях яму расширяют до максимальной вместительности и строят двойной каркас. Будку, расположенную сверху удлиняют и делят на два помещения с общим сливом. Как недостаток совмещенной конструкции можно выделить присутствие неприятных запахов в душевой.

Вас может заинтересовать:
Поэтапная постройка практичного сарая с односкатной крышей Чтобы самостоятельно построить односкатный сарай на даче, нужно иметь под рукой четкие понятные чертежи, расчеты,…Читать далее…
Устройство пудр-клозета

Присыпной клозет – сортир без выгребной ямы, который имеет упрощенную конструкцию. В таком туалете присутствует емкость, размещенная непосредственно под сидением. После использования будки по назначению, нужно присыпать нечистоты адсорбентом. При заполнении емкости ее освобождают. В зависимости от адсорбента, отходы можно использовать как удобрение.
В качестве присыпки обычно используют такие вещества:
- песок;
- зола;
- опилки;
- торф.
Используя один из наполнителей, избавляются от неприятных запахов в туалете и сопутствующих насекомых. Если в качестве адсорбента применен торф, то такой вариант сортира можно назвать аналогом промышленного биотулета. В них также используют такой наполнитель. Отходы можно применить как удобрение высокого качества, но его количество строго ограничивают
Главный недостаток пудр-клозета – важность частой очистки емкости
Сортир с компостной ямой
Туалет, совмещенный с компостной ямой – один из самых лучших вариантов. За счет особенностей такой конструкции можно ускорить перепревание компоста и созревание удобрения. Подобное дополнение позволяет не только улучшить качество грунта на участке, но и сократить количество непригодных к использованию отходов. Для такого сортира подготавливают выгребную яму с такими параметрами:
- Выгреб с уклоном при максимальной глубине, ограниченной 1,5 м.
- Яму обязательно снабдить вентиляционной системой в 2 точках.
- При подготовке перекрытия заранее продумывают расположение 2-х люков.
- Для рыхления компоста и насыщения его кислородом ставят рычаг.
- Яму делят на 3 отсека – туалетный, компостный и выгребной.
Внимание!
Соединение отдельных частей ямы обеспечивают небольшими пролетами в нижней части. Жидкие отходы будут стекать в самый нижний отсек, а сухой остаток перепревать в ускоренном режиме.
Особенности построения чертежа
Дачный туалет – не такая простая конструкция, как склонны думать многие начинающие строители
Существует ряд особенностей, которые важно учитывать при разработке проекта и построении чертежей
Правила устройства туалета:
Размеры. Учитывайте размеры внутреннего помещения уборной. Минимально допустимая площадь – 1 х 1 м. Если сэкономить и сделать кабинку меньше, пользоваться ей будет неудобно
Также особое внимание стоит уделить выбору дачного унитаза.
Высота. Имеется и ограничение по высоте
Нежелательно строить сортир меньше 2 м в высоту. Входить в него, согнувшись, очень скоро надоест.
Уклон крыши. При устройстве односкатной кровли задняя стенка проектируется несколько ниже передней. Это делается для формирования уклона крыши и стока дождевой воды за постройку.
Освещение. Если вы не планируете проводить электрическое освещение, обеспечьте попадание дневного света в ваш туалет даже при закрытой двери. Если нет желания возиться с окнами, вырежьте хотя бы небольшое отверстие в верхней части двери.
Вентиляция. Дачный сортир – постройка плохо вентилируемая. Чтобы это исправить, по задней стенке пускают вентиляционную трубу.
Тень. Чтобы в дачном туалете было не душно летом, разместите его в тенистом месте.
Место на участке. Еще один совет по выбору места постройки: избегайте соседства септика или выгребной ямы с источниками водозабора, колодцами, скважинами. Это делается из санитарно-гигиенических соображений.
Если принять во внимание все эти рекомендации, составить проект дачного туалета самостоятельно будет на порядок легче






























